而进入2021年,南通楼市的产品争霸赛已经正式打响。在这个阶段,项目要是没亮点,很难满足买房人挑剔的口味。
所有落差,都是比较出来的。
效果图
当你住惯了老城区老破小住宅时,突然有一个非常亮眼的项目摆在面前,不管是谁,都会心动。
伴随着人居环境的不断升级,越来越多人关注城市界面的焕新、居住水平的提升、品牌开发商的加持……
这一次,万科·半岛国际涵园正式面世,带来了全新的产品,给海门的居住品质和生活方式,也带来了很多新概念。
效果图
话不多说,我们一起来先睹为快~
NO.1|壹
全新产品面世 演绎迭代新坐标
说起万科·半岛国际,很多人对其初步的印象便是卖的超好的豪宅。
2021年初,万科·半岛国际泓园开盘劲销9成,刷新海门热度。即便是建面约315㎡的超大平层,也是瞬间秒空。
如此火热的万科·半岛国际开辟了一条独特的热销之路。很多买房人看中的,正是其产品力的打造。
而今万科·半岛国际涵园产品正式面世,更是全新居住体验。
效果图
项目与海门河保持着恰到好处的距离,润而不湿,共享海门河的优质生态景观资源。
临水而居,举目远眺是风景,身临其境可休闲健身娱乐。
早晨,和家人在海门河边晨练、慢跑;晚饭后,迎着夕阳,陪家人、孩子在公园或河边悠闲散步……
效果图
整个万科·半岛国际涵园打造11栋楼,整体错落排布,每栋楼的视线相互错开,尽量让更多业主能俯瞰公园美景。
社区园林以“一轴一核三脉五园”为空间结构,打造当代酒店式生活方式、奢华归家动线、度假式泳池、圈层会所,形成从未有的生活体验。
“五感园林”是万科·半岛国际涵园园林设计的理念,融合触觉、味觉、听觉、嗅觉、视觉,达到康复身心的作用。
效果图
万科·半岛国际涵园与万科·半岛国际泓园更大区别,便是其在整个社区中放进了一座建筑面积约6800㎡的“超级游轮”,融入多元空间体验,赋予空间更多可能。
以“水韵交织-衍生-渐变”提炼设计元素,打造复合型商业街区。

效果图
在万科·半岛国际涵园,享受到的更是少数人的圈层风云场域。
万科深知塔尖家族的圈层社交需要,以“家与社交-人与自然-品质显贵-文化情怀”打造海门文化馆,改写海门峰层人群的社交模式。
在这种模式下,私宴厅、茶室、棋牌室、健身房等多重想象,让居住在这里的生活充满无限种可能。
对于高净值人群而言,这既是个人身份的象征,更是真正奢宅标准的呈现。
效果图
NO.2|贰
全能理想户型 沉浸式改善体验
除了社区内部配套的升级,万科·半岛国际涵园也带来了全新的户型设计,放眼整个南通楼市,堪称罕见。
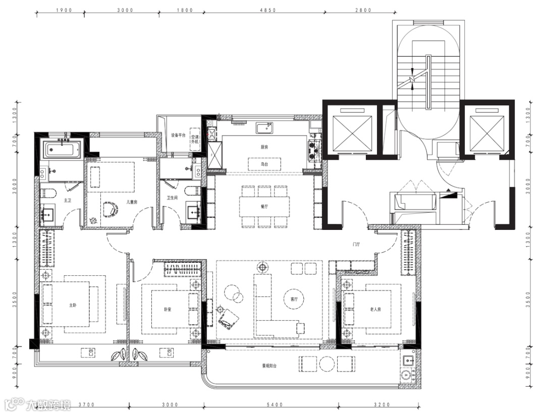
今天给大家展示的,便是万科·半岛国际涵园这套建面约155㎡户型。
建面约155㎡户型图
这款刚刚亮相的全新户型,尺度奢侈,舒适感在整个南通的新房市场能排在前列。
整体来看,整个套内打造了四室两厅两卫的居住空间,能满足一家三代人同时居住的需求。
四开间朝南,面宽做到了约15.3米,采光面十足;而且,进深做到了约9.2米-10.8米之间,尺度控制得比较合适,避免进深太短不便摆放家具的尴尬。
同时,这款户型直面一线河景,也是万科·半岛国际涵园的头排观景房源。
示意图
接下来,观察君就对这套建面约155㎡户型,做各功能区的细致拆解,让大家更能理解这套户型的绝妙之处。
近年来,电梯已经成为现代城市人居的标配。而不同的电梯户数比,不同的电梯空间,直接影响未来生活的居住品质。
这套户型两梯两户的布局,使得每栋楼的电梯使用效率大大提升,高峰期乘梯也不会拥挤。
独立的电梯前室作为半开放式空间,承接过渡居室内空间的功能。
示意图
入户大门采取的是外开的方式,这也充分保障的套内的使用空间不受一点浪费。并且正是因为拥有独立的电梯厅,入户门即便是外开,也不会被别人一览无遗。
进入户内,进门处便有独立的入户玄关。
未来业主可自行打造玄关柜,无论是放置帽子、包包、雨伞、钥匙等物品,还是换下外出穿的鞋子,都很方便。
示意图
这套户型的餐厨区与客厅的关系处理的非常好。为什么这么说呢?
厨房、餐厅、客厅一体化,让目光能够覆盖到这三个空间,你能看多远的距离,你跟家庭成员之间的交互频次就可能多频繁。这又叫「LDK 一体化 」,L 是客厅,D 是餐厅,K 是厨房。
示意图
厨房与餐厅之间设计推拉门,关上拉门,炒菜不会散出油烟;打开拉门,就和餐、客厅融为一体。
而且,餐厅+厨房约有4.85米宽,餐厅两侧墙做餐边柜,也不影响中间摆放一张大餐桌。
厨房内的岛台是点睛之笔,岛台有什么用?简洁概括,它能够消除厨房的孤独感。关上推拉门时它是厨房的操作台,打开后就变成整个空间的中心操作台。
一个人可以坐在吧椅上吃个简餐、喝杯咖啡,一群人则可以围站着包饺子、做烘焙,社交属性极强。
示意图
客厅整体开间约5.4米,布局方方正正,是普通客厅的1.5倍面宽。
并且客厅部分根据不同需求,可划分多个子功能区,打造多种生活场景。
无论是聚会待客、休闲娱乐,还是饮茶品酒、舞文弄墨,甚至健身运动、弹琴舞蹈,都有足够的空间“折腾”。
示意图
穿过客厅,进入阳台,约8.6米跑道式双阳台,这样的尺度,在整个南通楼市特别罕见。
值得一提的是,阳台靠近客厅区,设置了转角玻璃栏板。
可别小看这一细节,对玻璃的生产工艺、建筑的施工工艺要求都很高,却能实现真正的广角观景视野。
屋顶架构效果图
靠近次卧的一侧阳台,可设置为盥洗区,无论是衣服的盥洗还是晾晒,都可在此完成。
在这样的大玻璃窗下,躺在舒服的躺椅上,晒着慵懒的阳光打个盹,再舒服不过了~
入户靠近玄关一侧,一扇卧室门通往南次卧。
这个房间非常适合三代同居家庭的老人使用,与主卧被客厅分隔,不同作息的两辈人互不干扰。
另一侧是一条走廊,串联起一间南次卧、一间北次卧、次卫以及主卧。这三个卧室全都自带飘窗,与房间内的面宽同样大,保障了空间的延展性。
示意图
走廊尽头,是主人独享的主卧,尺度已胜过同面积段大部分竞品。
并且这个主卧,打开卫生间内的淋浴隔断门及卫生间门,即可形成主卧内的空气对流,从而南北通透。
主卧的飘窗,同样也设置为尺度观景飘窗,窗前的视野一览无遗。
衣帽间设置为步入式衣帽间的尺度,男女主人的衣物,都有随心安置的地方。
主卫内,玻璃隔断分隔出独立淋浴房和洗漱区;靠窗的浴缸增加了生活情趣,让业主在家也能享受一次舒服的SPA。
示意图
写在文末:
万科不愧是楼市的课代表,每一次产品的面世,皆能搅动市场。
而这一次,万科·半岛国际涵园产品的全新推出,无论是社区打造还是户型设计,都进行了一次华丽升级。
一直以来,海门这座城市的富庶与购买力,对塔尖人居的追逐从不厌倦,而万科·半岛国际以超群的眼界与理念,真正读懂了海门人。
效果图

