


就在这周,南通金沙新区R2020-004地块成功拍出,成交楼面价约14095/㎡,一举刷新整个通州楼面价!
这宗土拍在成功点燃南通楼市的同时,也让许多仍在观望的买房人大梦初醒,有的甚至直接打消了置业想法。
今天,我整理了目前南通市区总价200万还能入手的15家楼盘,供买房人参考。
碧桂园都会星宸共规划23栋17、18层小高层,总户数为1637户,容积率2.12,绿化率约为35%。
项目紧邻开发区能达板块,周边交通、商业等各项配套基本齐全,同时,通过高架道路可快速抵达中创区,共享区域高端配套。
就目前区域新房来说,远创宸樾小高层精装均价为21800元/㎡,星湖泮洋房精装放风24000元/㎡。

就在前段时间,项目每天有将近10套以上的销售量,尤其是推出19号楼房源当天,销售额直接破亿元!
图源:置业顾问朋友圈
近期动态:项目整体处于平推阶段,一期楼栋仅剩23号楼未加推,建面98-148㎡,精装限价1.7万/㎡。
恒大云锦华庭自去年11月底一期开盘以来持续热卖,推出630套房源,如今已悉数售罄!

图源:恒大云锦华庭官微
时隔4月余,项目二期新品迎来开盘。开盘当日售楼处人气十足,一次性水杯更是用到断货...
恒大云锦华庭规划52栋6-11层洋房及小高,容积率1.6。
社区内部坐拥约73000㎡欧式风情园林、约3400㎡私属内湖,配备儿童游乐区、水钵广场、亲水栈道、休闲平台等多功能玩乐设施。

项目实景图
项目部分户型图:
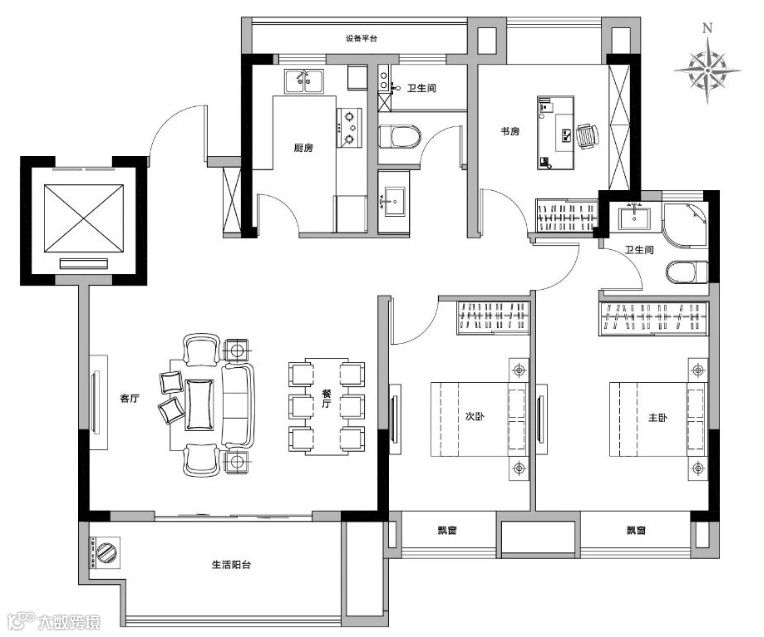
▼约121㎡三室两厅两卫
近期动态:项目在售二期部分房源,建面约85-127㎡,精装均价13350元/㎡,同时还将推出部分特供房源。
项目洋房建面约116-136㎡,毛坯均价1.67万/㎡。所以,总价在200万以内,买房人可选择116㎡户型房源,为193万元。
华山朝霞里共规划10栋11-18层小高层,总户数为721户,与安置房华山花苑6期一起,且为现房销售,于2016年建成。
项目不远处有南通高新区小学、金郊初中、通州区人民医院、中医院等教育和医疗资源;自带约6000多方商业,辅以沿街商业、农贸市场等。
目前,项目放风价1.1万/㎡,在总价200万以内,可选择项目建面约73-142㎡房源,毛坯交付。
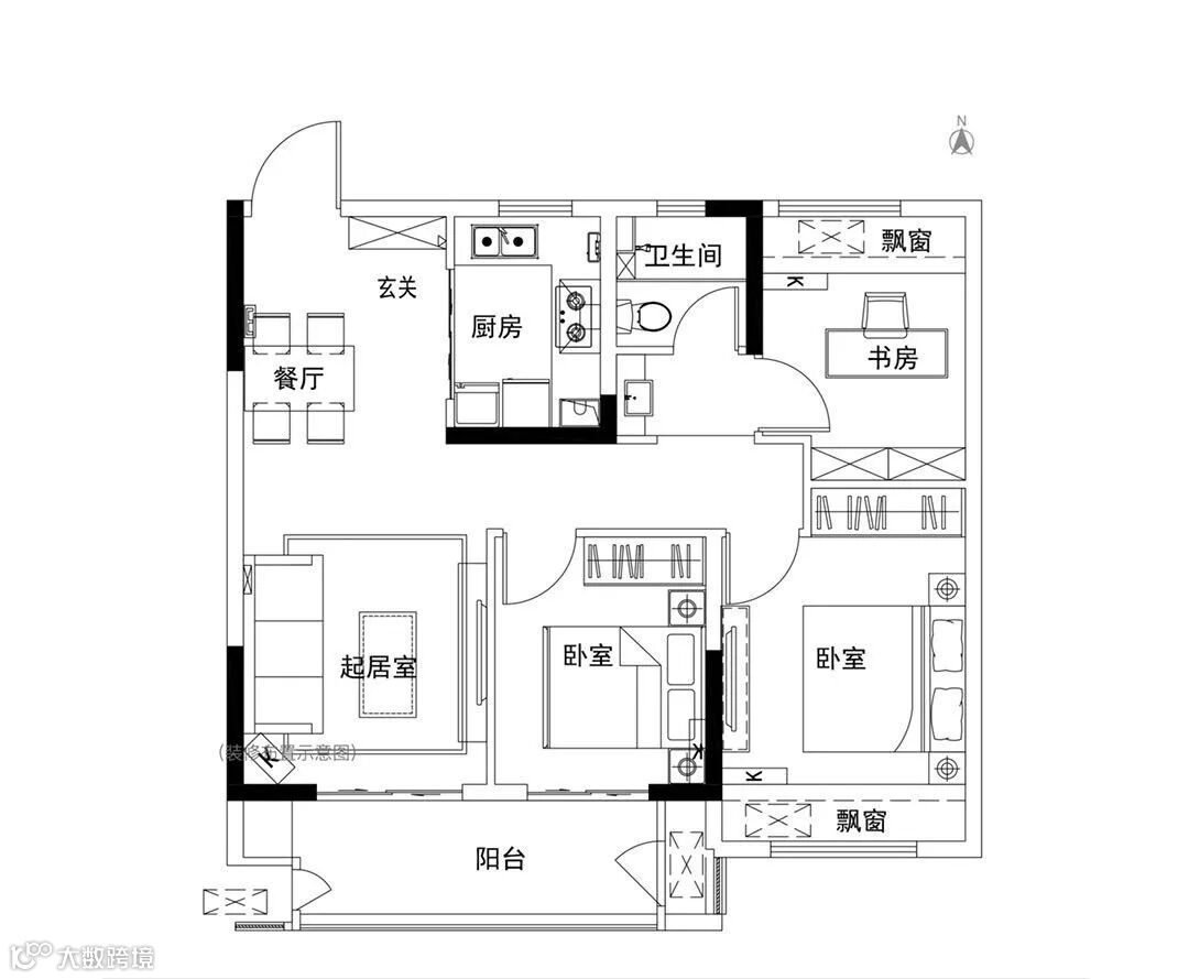
▼约95㎡三室两厅一卫
▼约142㎡三房两厅两卫
近期动态:项目已于3月13日开启三期预约,全款购房验资达100万元。
项目目前精装均价为1.63万/㎡,在200万预算当中,可以选择建面约95㎡、105㎡房源,总价155万元起。

据了解,项目三期毛坯放风价1.55万/㎡,在总价200万以内,可选择建面约95㎡、125㎡的房源。
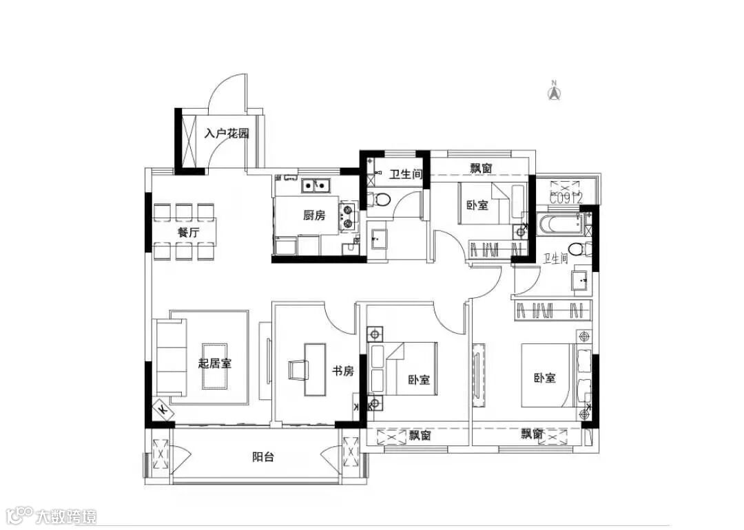
▼约125㎡四室两厅两卫
近期动态:项目即将推出三期房源,楼栋号为10#-13#,共358套房源,建面90-127㎡,放风价为1.55万/㎡,毛坯交付。
捂地8年、超神秘零宣传、毛坯改精装、无样板间...这些都是大唐锦绣豪庭的专属标签。
据了解,项目共规划12栋18层小高层,共计792户,容积率1.8,绿化率约30%,自带商业。
项目目前在售均价为1.62-1.65万/㎡,在200万预算内,可选择建面约105㎡房源,总价170万元起,精装交付。
如今,南通整座城市更新速度快,房价格局可谓日日新,还在观望的刚需人群还是趁早上车吧。

补充说明:1/本文来源南通楼市观察,仅供参考和交流,不构成直接投资建议;2/任何投资行为均有不同程度风险性,投资需理性;3/添加微信nt365222,观察君拉你进买房交流群。


➤南通热门在售楼盘推荐
卓越华耀时代 | 滨江道&玺 |卓越府 |海纳春江 |华宇锦绣澜湾 |卓越华宸世纪 |东时区 |恒大云锦华庭 |弘阳大唐时光峯汇



