
日前,南通创新区发布金融商务中心启动区项目施工招标资格预审公告。

本招标项目 B大道以北、湖东路以东地块(暂定名金融商务中心启动区)项目 已由南通市行政审批局批准建设,项目业主为 南通市中央创新区科创产业发展有限公司 ,招标单位为 南通市中央创新区科创产业发展有限公司 ,招标代理机构为 江苏新世纪工程项目管理有限公司 ,建设资金来自 自筹资金,项目出资比例为100%。
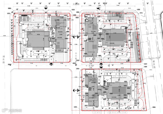
项目概况
建设地点:南通市B大道以北、湖东路以东


建设规模:总用建筑面积约22万㎡,其中地上建筑面积约13万㎡、地下建筑面积约9万㎡。总投资额约24亿。

工程建安投资额:约18亿元。
工期要求:1000 日历天
计划开工日期:2021年8月,竣工日期:2024年4月。
金融商务中心项目

其中金融商务中心启动区占地面积约5.12万平方米,包含金融办公建筑以及配套商业建筑,建设的招银大厦、中银大厦、基金大厦、金融大厦位于核心区域。

疑似中银大厦、基金大厦、金融大厦鸟瞰图
C21002地块项目
据了解,C21002地块项目(中银大厦、基金大厦、金融大厦),位于湖东路东、文兴路南、静海大道西、B大道北侧地块,总建设用地面积39721m²,地上建面约13.34万方。

其中,B地块容积率2.5,建筑高度90m;C地块容积率4.1,绿地率16%,建筑高度130m;E地块容积率3.5,建筑高度110m。(高度:室外地坪计算至幕墙顶)
中银大厦效果图 丁从容摄

当前,紫琅科技城、大剧院、美术馆等一批标志性项目,已经或者即将建成使用;

北京大学长三角光电科学研究院、上海电气南通中央研究院、上海交大南通基地等一批科研院所,也陆续签约落户,“三年见雏形”的目标如期实现。
-END-
世茂璀璨未来 中海翠湖溪岸 中铁逸都 美的云筑 祥生云境 滨江道&玺 万科揽境 华宇锦绣澜湾 北纬31度 五龙云璟 长泰滨河国际
开发区/苏锡通
通州区/通州湾

购房咨询添加微信nt36522
观察君拉你进买房交流群

免责申明:1/本文来源南通公共资源交易网、南通发布,不构成直接投资建议;2/任何投资行为均有不同程度风险性,投资需理性;3/添加微信nt36522,观察君拉你进买房交流群。




