
“山沟天黑的早,
黄昏已经冷瑟瑟地降临了。
暮色苍苍,
从夕晖晚照下覆盖着皑皑白雪的远方群山那边,
悄悄地迅速迫近过来。”
----川端康成《雪国》

△山语湖高尔夫球场
当业主找到设计师,有趣的灵魂相遇;
业主亦有见天地,耳顺之年,已然见过众生的诗和远方。
追求简约、舒适和功能性的完美结合,
共同演绎优雅与摩登并存、复古与当代融合的理想家。
第壹章
互动
人与人、人与空间、空间中的空间...
挑空互动、书房步入客厅、捧书走入书房...
空间服务于人、人又和空间在共同成长交流。


△通过建筑引光;
原本局促黯淡的二层空间变身开阔明亮的空间

△保留挑空空间,增加互动;
流动着简单交流的素美与日常的感动。


△黑色是一位细腻的沉静的思考者;
在空间的感受中;
心之所动的提供人为感官;
细腻,沉静,优雅的感受。


△到底是在什么时候成为自己的呢?
或许是在书房里的书被一本本更换的时候吧。
灯光暗下来,一间属于自己的书房,是边界,也是容器。

△房子是生活的载体;
承载着我们的快乐,勇气,安全感,和爱;
见证我们的欢笑,泪水,挫折,成功。

△
一千把椅子,有一千种故事;
在平淡的生活中我想以散淡的姿态执一本书;
静静等待落日余晖…

△用一件件温暖的家具来对抗生活的沉闷;
坐在客厅的懒人沙发望向窗景,享受悠闲下午时光。


第贰章
星空和思绪
茶室是后期加建,设计师想象业主在这个场景阅读,赏月夜星空之感,也将茶室作为一个自由的可变的承载业主思绪的空间。
业主喜爱书法,大墨;所以茶室的茶台设计没有采用以往传统的茶台,而是用书法台和茶桌功能场景切换使用。让一个空间不局限,不设限,自由自在而有怡然自得之乐。


△
你不再需要任何人的对话;
你只需要和书籍,星空交流。
书页一翻,山川湖海就在眼前;
抬头构思,穿越逆境扺达繁星。

△设计师除了考量功能的规划,人文感受;
更是思考这个建筑更多的与环境对话的可能性。
第叁章
烟火
山中何事,
松花酿酒,
春水煎茶。
----元 · 张可久《人月圆·山中书事》

△胡桃色是厨房的主色调没有大面积纯黑的严肃感;
更柔和地将高柜,油烟机、灶台等色融入;
柔和地温暖你的情绪。


△阳光闪络到地面;
墨色的山水纹餐桌散发着东方雅致;


△寻找平衡点;
就像宁静中迸发的真情实感。
驱使生命的各种力量;
去解开空间的诗句。
第肆章
淡雅
枕上诗书闲处好,门前风景雨来佳
----宋·李清照


△卧室剔除琐碎,
在基本元素的设计演绎下;
充沛的自然光线;
素朴的墙面;
细腻的床品家居;
营造舒适淡雅的憩息空间。
卸下疲惫;
一天的喧嚣和烦恼俱消。



第伍章
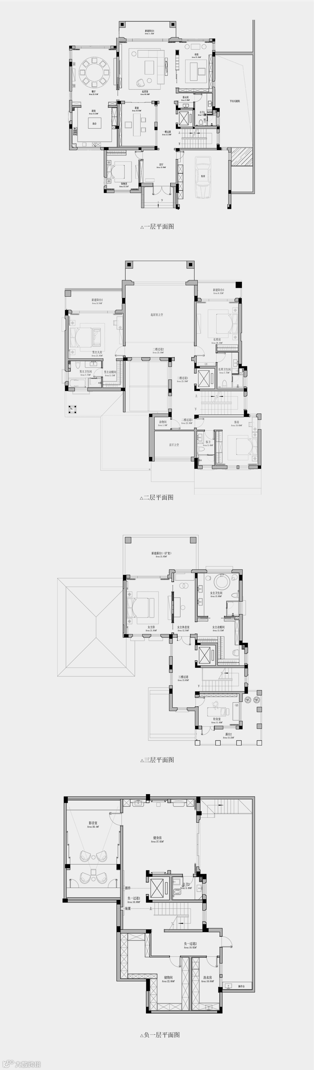
平面方案

项目名称:山语湖 王女士官邸
项目地址:中国 广东 佛山
设计机构:广州大朴设计
设计内容:全案设计
项目面积:643㎡
完工时间:2024年
空间摄影:蔡启伦
主材品牌:图森TUCSON、NOVACOLOR涂料、VESCOM维诗康、佤臣柚木
家具品牌:MANITTA曼尼特家居



hr_dapudesign@163.com
推荐阅读
▽
大朴设计丨感知温度 回归生活
大朴设计丨梦回岭南 诗意盎然

欢迎大家将广州大朴设计设为‘星标’公众号
以便第一时间接收内容推送
—— 广 州 大 朴 设 计 ——
THANKS




