◤公众号对话框回复楼盘名称,查楼盘、加买房群◢

2022年12月5日,南通本土国企科创产发拿下位于创新区金鹰世界南侧的R22026地块。
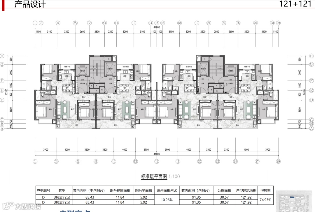
日前,南通公共资源交易中心发布了《R22026地块建设项目精装修设计(资格后审)》,项目更多详细信息曝光。

根据设计方案,R22026地块主打创新区板块内不多见的滨水景观楼盘,外立面规整、内部景观设计层次丰富、入口处设计更是大气磅礴,改善属性强烈。





项目外立面采用金属+玻璃+一体板配置,颜值靓丽,在整个板块内属于头部位置。



户型方面,项目主要户型分别为建面121㎡、130㎡、168㎡和188㎡四种户型,大面宽的设计让其在市场中更具竞争力。




根据此前的招标信息,南通市R22026地块建设项目为集品质、生态于一体的现代化居住小区,社区局部楼栋首层设置架空层,架空层按泛会所进行设计。
R22026地块位于创新区南区内,周边遍布有通沪大道高架、通盛大道高架及在建中的南通地铁1号线,出行非常方便。

此外,地块北侧即为在建中的金鹰世界地标、西侧不远处为紫琅新天地商业,周边更规划建设邻里中心,生活将会非常便利。
城市公共配套方面,南通大剧院、南通美术馆、望山公园、紫琅湖实验学校均在步行可达的范围内,这些配套放诸整个南通也可以说是相当抗打了。

你对于这个项目怎么看?欢迎在评论区留下你的看法。
-END-
公众号对话框回复楼盘名称,
一键查楼盘详情、加买房群

免责申明:1/本文来源南通楼市网,仅供参考和交流,不构成直接投资建议;2/任何投资行为均有不同程度风险性,投资需理性;3/添加微信nt36522,观察君拉你进买房交流群。


