今天偷闲翻了下江北新区管委会的公示文件,还正巧有了个小发现,估摸着应该没有人注意到就写下来给大家乐呵乐呵,尝尝凡尔赛的味道。
启迪水木滨江这个盘是很有意思的,拿地拖了十年才开始动工住宅,虽说没啥亮点但位置和价格摆在这里,个人认为是2020年闭买榜TOP10的水准。
80米的间距、苏宁檀悦同款的排列方式造就了核心区独一无二的整体花园,开发商也很有意思的在第一排的顶层做了瞰江大平层,基本上算是160+98户型的合二为一并增加了南向的超大露台,几乎每次开盘都会被土豪瞬秒。

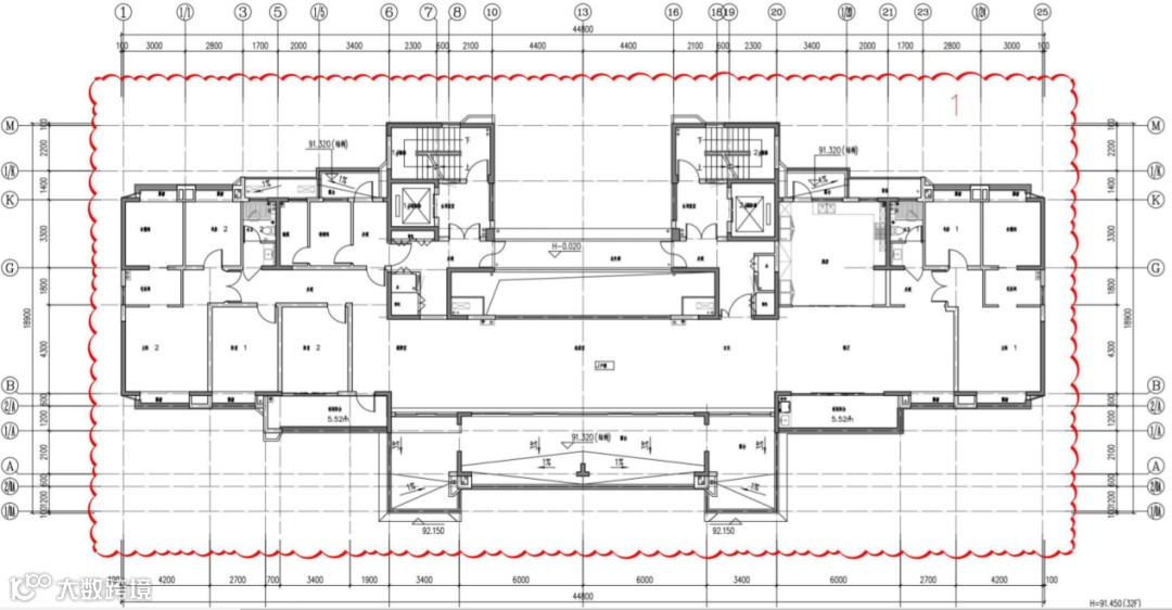
启迪水木滨江住宅鸟瞰图
220平650万总价就弄拥有一套可以从北向南眺望巍巍金陵的房子,确实值得一生珍藏。
并且这套平层由于这一层的电梯只服务于这一位尊贵的业主,理论上公摊面积全是自己独享,加上超大赠送面积(粗略算了下大概是35平的露台全赠送+10.8平半赠送封闭阳台),几乎得房率可以接近100%。

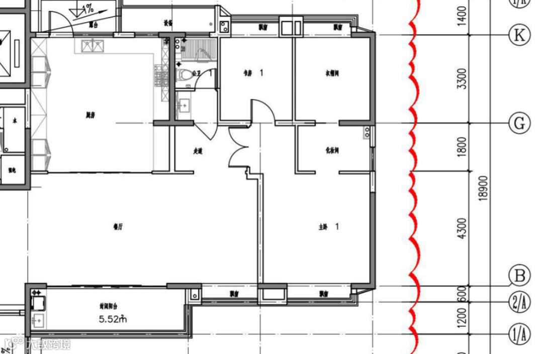
上图就是220平大平层的户型图,主卧套间设计整体突出一个大,遗憾就是主卫小了点,距离豪宅标配的双台盆+干湿分离座便器隔间+淋浴房+浴缸的四件套设计少了点壕气。
餐厅+起居室8.7米的超大开间在这种刚需改善盘真是过于奢侈,右侧的三个小房间正好可以够家里两个小朋友居住,整体来看的话槽点不多,650万的价格土豪们冲鸭!
就在上个月的15号,江北新区管委会公示了启迪城的规划变更批前公示,我点开前还以为是滑雪场终于来了呢,结果看到是住宅部分就还挺扫兴的。
不过定睛一看简直我勒个大槽,启迪把D-1号楼(第一排最靠长江的一栋)两个226户型合二为一做成了450平的超大平层,如果按照之前顶楼价格售卖的话总价预计突破1300万,毫无疑问的江核王中王。下面就给大家欣赏下充满了凡尔赛味道的户型图。

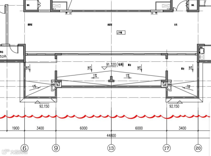
450平整体平面图
首先便是整体户型图,基本上就是160+98+98+160的集合体,那么有聪明的小同志可能要问了,怎么面积不是520平啊,其实原因很简单啊,多出来的70平都是送给你啦!
南侧星空露台直接来到了3.9*18.8=73.32平,这个是全赠送面积!73正好对应上面多出来的70平,所以相当于送了200万,但是前提条件是你得有1300万,此话充满了凡尔赛的气息。

左侧细节放大图
这个左侧主卧就槽点颇多了哈,这种豪宅的套间怎么能没个大主卫呢,个人感觉把衣帽间改成主卫应该更为合理,但估计楼下兄弟就想诅咒你了。
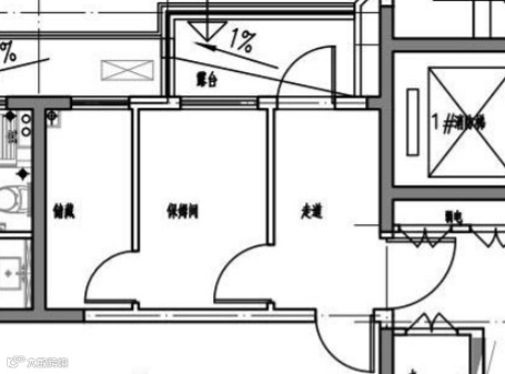
左侧保姆入户门及保姆间
这个设计很合理,由于是两个户型拼凑出来的大平层,一侧为主人入口一侧为保姆入口,豪宅标配。

右侧细节图
右侧主卧和左侧主卧一样的槽点不多说了,5.4*5.1的厨房尽显阔气,8.7*4.3的餐厅可以喊上高管们一同来家里享受大餐。

好了,循序渐进,到最后当然是凡味高潮了,18.8米超宽起居室+棋牌室+玄关,南京目前的平层产品中应该独一无二了,80平的超大连通空间带来的舒适是我这种刚需没办法想象的。
450平,1300万,如果这套房源公开销售的话将会创造江北核心区新的新房总价记录,独一无二的户型、独一无二的江河汇位置、独一无二的价格,多年以后这位幸运的业主在一个普普通通月明星稀的夜晚端着一杯八二年的拉菲望着滚滚江水哀吾生之须臾羡长江之无穷,那个幸运的家伙会是正在看这篇文章的你吗?
本文为网友投稿,感谢分享!
如果你要在南京买房,请抓紧添加楼市主编微信,评估楼盘价值排名,获得优惠买入工抵房、特价房的机会。



