万众期待!
1.0<容积率<1.79
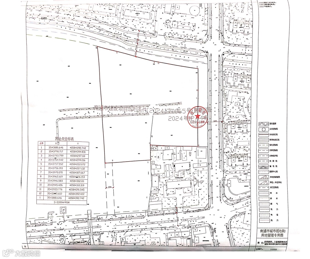
南通主城青年路旁、圆融商圈内
南通职大北侧再添重磅宅地!
就在刚刚,南通市自然资源和规划局官网发布《校西路西、三里墩路南地块规划条件批后公布,主城圆融商圈再添重磅住宅。

主要内容:用地性质为居住用地,用地面积约33994平方米,建筑面积≤60800平方米,1.0<容积率<1.79,建筑密度≤25%,绿地率≥35%,建筑高度≤60米。
并且要求住宅建筑层次为3层及以上,现代风格,与周边环境相协调。

该地块位于南通主城核心位置,南侧为南通职业大学,南通地铁2号线、青年路、通京大道高架、工农路等交通干线环伺,学田中学、城中小学三里墩校区都距离不远,荷兰街、学田路、圆融金鹰广场等网红商业街区近在咫尺,生活氛围相当浓厚。

地块周边的次新二手商品房云集,如远创樽樾、濠悦府、中海铂樾府、九玺台、华润静安府等高端住宅云集,挂牌均价基本都在3万/平上下,堪称南通塔尖区域。



⬇️左下角点击关注公众号,对话框内回复楼盘名称,一键查楼盘、加买房群。
免责申明:1/本文来源南通楼市网,仅供参考。如因阅读文章,对您购房行为产生损失,平台不承担相关责任;如果您继续阅读文章,则视为已知晓认可该声明。2/添加微信nt36511,拉你进买房交流群。


