大校场,渐进高潮!

NO.1|壹
刚刚,有多位买房人向本平台反馈,称他所在的某楼盘意向群,被紧急解散了!(各位,不要慌,是要开盘了,想买的朋友尽快准备好钱。)

据统计,大校场两盘即将开盘:
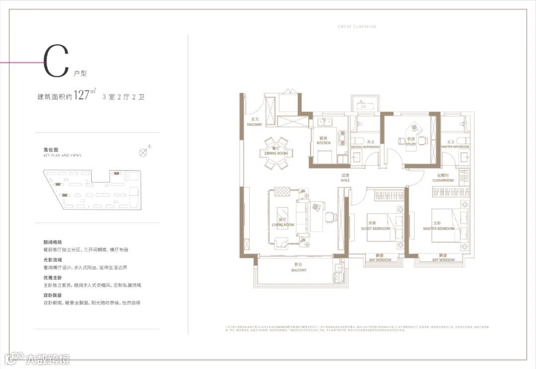
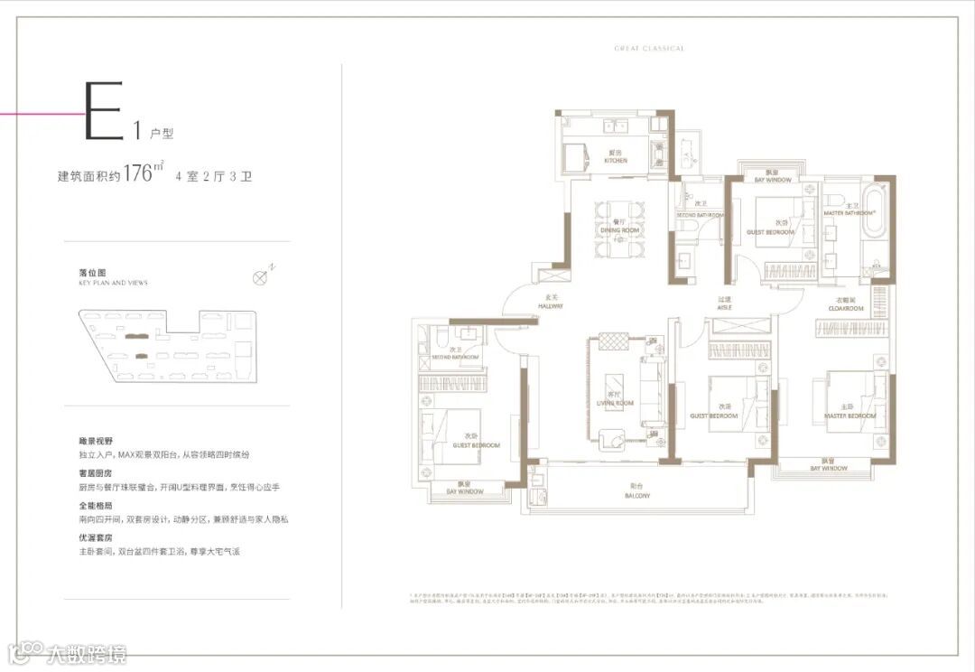
1、金地大成雅境:预计4月首开612套,放风价近5万/㎡(含升级装修包,以销许为准),升级包预计3500元/㎡,建面约105㎡和125㎡三房两厅两卫、约143㎡四房两厅两卫、约176㎡四房两厅三卫。
2、金陵华夏中心:预计4月加推1、2#,总高31F,两梯四户,建面约103㎡三房、130、143㎡四房,共约246套,前期4.48万/㎡(另有2500元/㎡升级装修包)。
划重点:大校场越来越壕,小面积低门槛价重点关注!两家楼盘这次都要推出105㎡/103㎡左右三房户型,投资自住两相宜。
交代下位置,金地大成雅境位于板块西侧,地铁6号线和10号线二期交汇处;金陵华夏中心位于5号线和10号线二期大校场站交汇处,统称为机场双兄弟,两个项目都是综合体,除了住宅还有商办、购物中心等!

添加楼市主编,进大校场交流群,每天分享不同的新鲜资讯↓↓

金地大成雅境预计4月首开推出13# 、14# 、17#、 18# 、19# 、21#的612套,将成大校场单次推盘量最高的楼盘,放风价近5万元/㎡(以销许价格为准),含升级装修包,升级包预计3500元/㎡。

户型包括建面约105㎡、125㎡三房两厅两卫、约143㎡四房两厅两卫和约176㎡四房两厅三卫。
其中,建面约105㎡三房和金陵华夏中心约103㎡户型布局相似,双阳台双卫。





目前,项目已公开176㎡装修样板间,需提供400万验资证明才能预约参观。
金地大成雅境升级装修包(预计3000元/㎡)
设计全屋收纳空间约超7000L,全龄化设计,覆盖6大主体柜成品交付,包含玄关柜、橱柜、镜柜、衣帽间、餐边柜、过道柜等全屋收纳系统。
NO.2|贰
金陵华夏中心示范区重新开放,近期加推2栋住宅,户型面积约103-143㎡,价格参考前期4.48万/㎡(另升级装修2500元/㎡),总价或将485万起!
项目预计4月加推1、2#,总高31F,两梯四户,建面约103㎡三房、130、143㎡四房,共约246套。

目前其103、130㎡户型图已曝光,143㎡户型还未最终确认,近期将公开。
建面约103㎡3房2厅2卫↓↓

建面约130㎡4房2厅2卫↓↓

金陵华夏中心升级装修标准:

NO.3|叁
大校场这个板块,其实也没有什么好纠结的,有钱就买。不少读者在咨询,金地大雅和华夏中心,这两个盘都摇到的话,到底选哪个比较好?其实这是个伪命题,金地商置和华夏幸福的两个盘,位置在整个大校场区域堪称一流,能买到哪就买哪,大概率都买不到。
就学区来说,金地很稳,基本上就是游小+钟英的组合。这个组合,以前在大校场属于最好的选择。现在大校场表示要引入南外、南师,所以很多人在猜测,是不是华夏幸福的学区预期更高?这就有一定不确定性了。
到底是稳稳的抓住金地,还是想惦记华夏有点风险的南师南外预期,成为很多自信心爆棚买房人的一大难题。其实,无论买入哪个,学区预期都没有太大问题。
之所以大家对于金地的学区有一点点怀疑,主要是区域内的楼盘(老破小)比较多,可能会影响生源的整齐性。

尤其附近还有一个秦淮第二实验小学,施教学区面积非常大,未来可能会到钟英初中入学,这是一个风险点。
我查了一下,秦淮二实小2020年施教区范围为——果园村、夹岗村、保利堂悅、复地宴南都、汇景家园:汇平苑、汇安苑、汇吉苑、汇祥苑、汇幸苑、汇福苑、汇满苑、汇美苑、景文苑、景明苑、景富苑、景裕苑、景乐苑、景康苑、景泰苑。
目前板块内部的商品房双杰:保利堂悦、复地宴南都学区在秦淮二实小范围内,目前正在争取进入游小+钟英的双学区施教区,具体能否成功,还有待教育局公布。
而复地和保利的成交价格节节攀升,涨幅不小,背后的原因当然是南部新城的快速发展,还有一点就是会划入双学区的预期。尽管初中有可能与汇景家园共享,但其实最近汇景的业主也置换了不少,未来学生的素质还不错。挂南外南师虽然听起来高大上,但未必能干的过游小+钟英,毕竟这是秦淮区的王牌。南外南师能否导入实质性的教育资源,还不好说。
NO.4|肆
最后说一点,为何这些热盘,最后的结局总是解散微信群?这个没办法,这都是一种策略。原因有三。
第一,热盘的热度很高,很多消息在微信群里一传播,容易形成舆论事件。反正也不缺客户,开发商并不想炒作太多;
再者,热盘的目标很明确,就是把精装包卖出去。南京之前有多家楼盘就是因为卖精装包的问题搞得鸡飞狗跳,群里吵来吵去。不买精装包的被踢掉了,或者干脆不通知,影响很坏。现在解散群之后,一对一沟通,谁买包谁不买包,置业顾问做出判断。买包的给发链接报名,不买包的嘛,直接改名说不干了...最后达成卖包的目的。
最后,买包可能降首付,但这事不能明说,一对一是最好的选择。怎么说呢,你可以说这是套路,也可以说是一种潜规则。
不过,如果是自住,不缺钱的话,精装包还是推荐买的。
如果你要在南京买房,请抓紧添加楼市主编微信,评估楼盘价值排名,获得优惠买入工抵房、特价房的机会。



