SOS!大校场机场跑道双兄弟,都要开盘了!
1、金地大成雅境:预计4月首开612套,放风价近5万/㎡(含升级装修包,以销许为准),升级包预计3500元/㎡,建面约105㎡和125㎡三房两厅两卫、约143㎡四房两厅两卫、约176㎡四房两厅三卫。
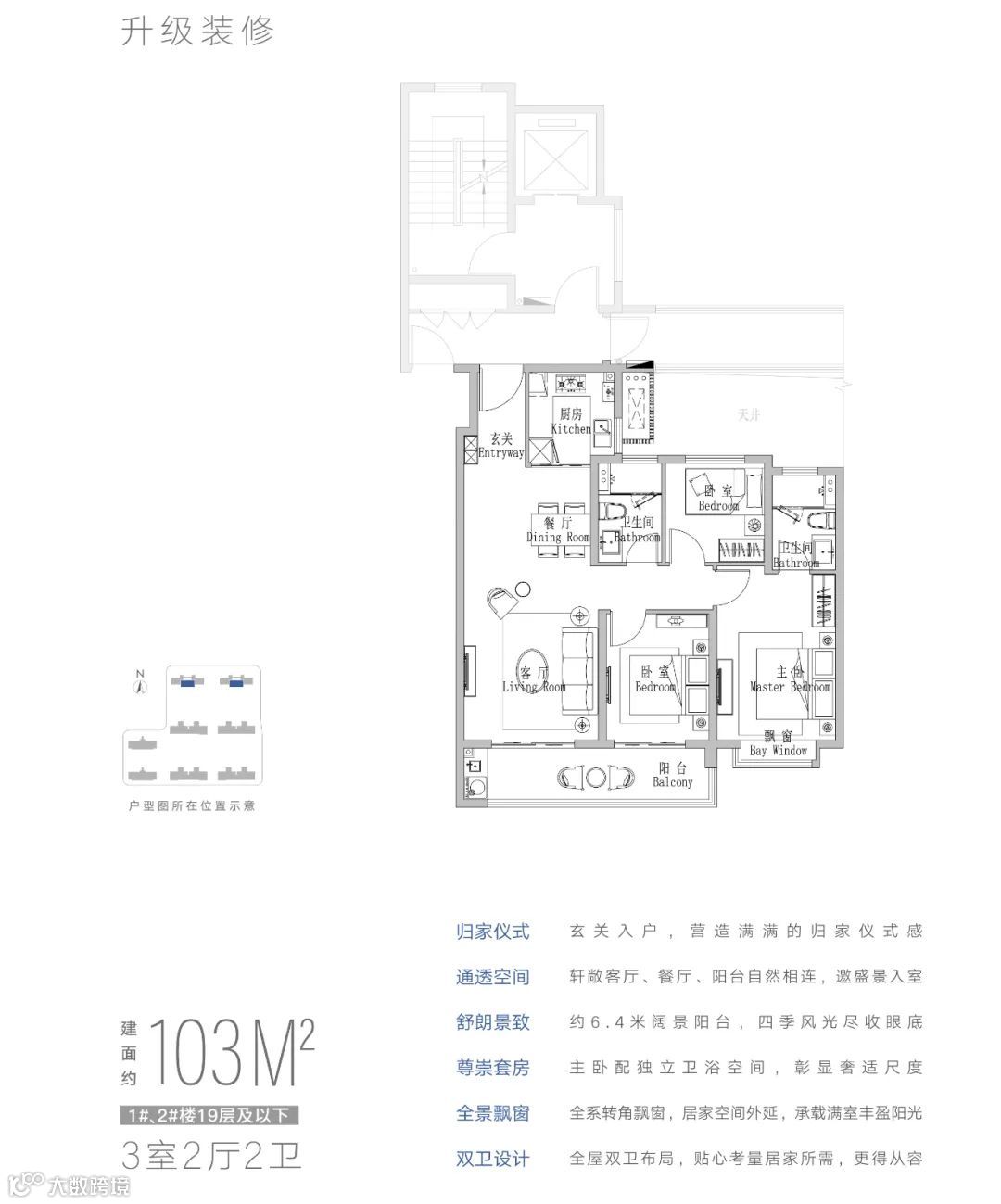
2、金陵华夏中心:预计4月加推1、2#,总高31F,两梯四户,建面约103㎡三房、130、143㎡四房,共约246套,前期4.48万/㎡(另有2500元/㎡升级装修包)。
划重点:大校场越来越壕,小面积低门槛价重点关注!两家楼盘这次都要推出105㎡/103㎡左右三房户型,投资自住两相宜。
交代下位置,金地大成雅境位于板块西侧,地铁6号线和10号线二期交汇处;金陵华夏中心位于5号线和10号线二期大校场站交汇处,统称为机场双兄弟,两个项目都是综合体,除了住宅还有商办、购物中心等!

添加楼市主编,进大校场交流群,每天分享不同的新鲜资讯↓↓

NO.1|壹
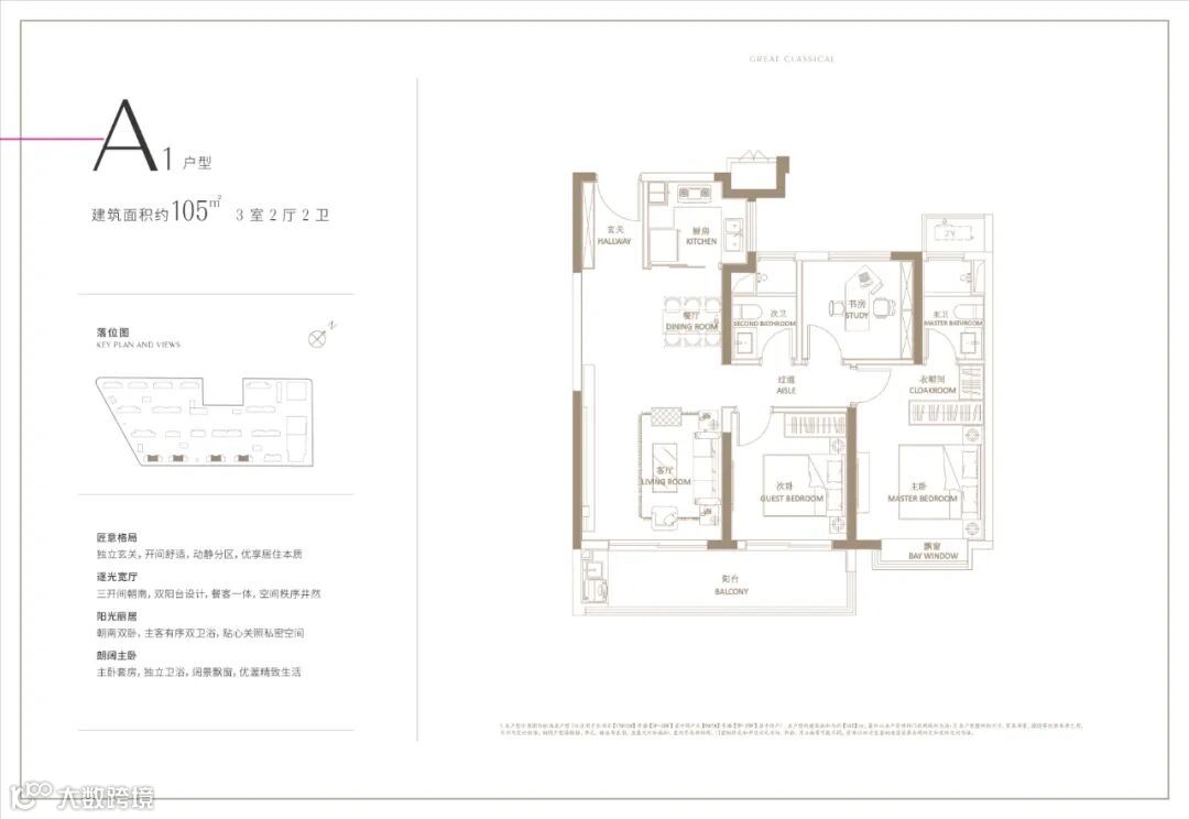
金地大成雅境预计4月首开推出13# 、14# 、17#、 18# 、19# 、21#的612套,将成大校场单次推盘量最高的楼盘,放风价近5万元/㎡(以销许价格为准),含升级装修包,升级包预计3500元/㎡。

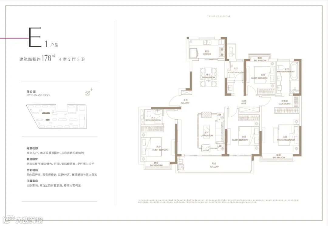
户型包括建面约105㎡、125㎡三房两厅两卫、约143㎡四房两厅两卫和约176㎡四房两厅三卫。
其中,建面约105㎡三房和金陵华夏中心约103㎡户型布局相似,双阳台双卫。





目前,项目已公开176㎡装修样板间,需提供400万验资证明才能预约参观。
金地大成雅境升级装修包(预计3000元/㎡)
设计全屋收纳空间约超7000L,全龄化设计,覆盖6大主体柜成品交付,包含玄关柜、橱柜、镜柜、衣帽间、餐边柜、过道柜等全屋收纳系统。

NO.2|贰
金陵华夏中心示范区重新开放,近期加推2栋住宅,户型面积约103-143㎡,价格参考前期4.48万/㎡(另升级装修2500元/㎡),总价或将485万起!
项目预计4月加推1、2#,总高31F,两梯四户,建面约103㎡三房、130、143㎡四房,共约246套。

目前其103、130㎡户型图已曝光,143㎡户型还未最终确认,近期将公开。
建面约103㎡3房2厅2卫↓↓

建面约130㎡4房2厅2卫↓↓

金陵华夏中心升级装修标准:

获取最新项目信息,预约看样板间,可以添加置业顾问微信,耐心周到。

如果你要在南京买房,请抓紧添加楼市主编微信,评估楼盘价值排名,获得优惠买入工抵房、特价房的机会。



