注意,正方新城地铁口即将上新!
01.
本周,南京公布了三季度开盘计划,我注意到,正方新城纯新盘上宸云际预计将推出504套房,毛坯房限价2.41万/㎡,这个上市量还是比较大的。
上宸云际前身是正方新城G03地块,今年2月由旭辉摇号拿下,由旭辉、新城和天安联合开发,打造3大户型,分别是建面89、100、120㎡,全装修限价2.61万/㎡。
上宸云际目前已在景枫公开城市展厅,项目正在建设中,预计下月公开售楼处及样板间,最快9月开盘!正方新城地铁口位置,终于要上新了!

上宸云际交通十分便捷,毗邻正方大道、将军大道等城市主干道,距地铁S1号线正方中路站仅200米,正儿八经的地铁盘。
项目周边规划有幼儿园和小学教育用地,自带幼儿园。
商业方面,上宸云际自带商业,而绿地理想城也带有商业,可以互为补充。同时,正方新城地铁站周边也规划有商业地块,未来将方便板块业主。
此外,上宸云际所在的正方中路地铁口位置,距离上秦淮非常近,3号线三期将南延至秣陵,从正方新城出发去砂之船,也是非常便捷的。
02.
根据规划,正上宸云际打造9栋高层住宅及幼儿园,从曝光的效果图来看,小区的景观还是不错的,堆叠的比较有层次,具体得等到售楼处公开才能看到具体细节了。

大面积玻璃窗,这个楼盘外立面有点好看,可能要刷新一下正方新城的颜值天花板了。

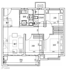
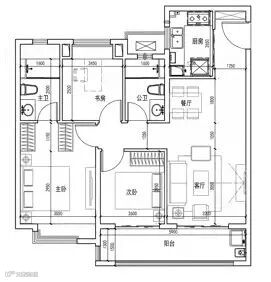
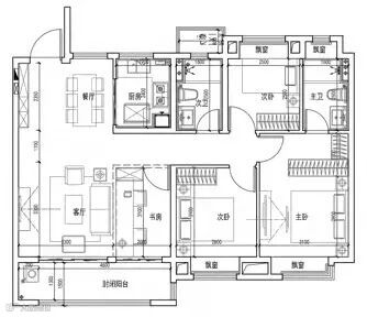
上宸云际打造三大户型,分别为89㎡三房两厅一卫、约100㎡三房两厅两卫、约120㎡四房两厅两卫,都是双阳台户型。
户型图如下:
建面约89㎡三房两厅一卫↓↓↓

建面约100㎡三房两厅两卫↓↓↓

建面约120㎡四房两厅两卫↓↓↓

03.
正方新城这个板块其实很有意思,江宁在过去两年的操盘中并没有重点支撑它,而是疯狂在青龙山、禄口、汤山等拍地,导致这些板块集中度过高。
从正方中路站搭乘S1号线,4站可达南京南站,软件大道一带工作的产业打工人,在正方新城居住生活无压力。
以正方中路地铁站为中心测距:
①直线距离不到14公里的南站板块,目前二手房最贵已破6.5万/㎡;
②直线距离不到10公里百家湖金鹰,周边二手房最高已破5万/㎡;
③直线距离不到8公里的三山板块,周边二手房最高破4万/㎡(不含别墅);
④直线距离不到8公里的九龙湖板块,诚信大道周边新房冲4万,二手房最高4.5万/㎡;
⑤直线距离约3.6公里的上秦淮,新房放风3.8万/㎡,二手房最高破4万/㎡。
当然我是直接拉到3号线秣周东路站来测距的,3号线三期将南延到秣陵街道,正方新城其实和上秦淮直线距离不超2公里。

正方新城测距图
正方新城与上秦淮直线距离不超2公里,地缘优势让正方新城有足够底气成为承接上秦淮外溢需求的第一站。
要知道,上秦淮洋房价格在3.6万/㎡,当然洋房本身就比高层溢价更高,正方中路地铁站附近的新房,毛坯限价2.42万/㎡,精装卖2.7万/㎡是可以期待一下的。
地铁口地块的出让直接拉升了正方新城的热度,确实,正方新城本身位置就比禄口近,与上秦淮板块直线距离不超过2公里,但房价差了一截,还能低到哪里去呢?
整个正方新城围绕正方中路地铁站有一片核心居住区域,全装修+升级装修后均价或可达2.7万/㎡,围绕江苏软件园也有一片集中的住宅开发,目前精装均价在2.3万/㎡左右。

随着正方中路地铁站新盘的上市,2021年正方新城的节奏,开始起来了!
买房优惠,请找楼市科学家主编,给你带来实实在在的价值!


