南京楼市,风向大变!
01.
今年下半年的楼市格局与以往相比,有了较为明显的变化,应该说,南京楼市的基调基本敲定了:
投资客全面离场,楼市得靠自住客户撑场子了;
地段和产业带来的人口夯实,重要性显著增加;
房价尺度要合理,市场愈发敏感,装修包的性价比也很重要。
正方新城,紧靠上秦淮,4站南京南,也是继百家湖、九龙湖、上秦淮之后,江宁下一个重点发展的红利热土,不仅有地铁,价差拉得足够大:
上秦淮二手房高层单价破4万/㎡,正方新城地铁口均价折后2.5万/㎡左右(无升级装修包),价差达1.5万/㎡,开车10分钟出头的距离;
南站二手房单价捅破6万/㎡,正方新城地铁口均价2.5万/㎡左右(无升级装修包),价差达3.5万/㎡,地铁4站的距离;
对于刚需来说,本来预算就紧张,现在还有机会薅开发商羊毛,省下来的钱买车/买家具,不香吗?
首付60万起,300米地铁站,4站南京南

02.
当然,仅仅是便宜,已经不能完全打动买房人,现在买房是多维度的PK,包括外部的情况,内部的产品力。我们先来看下外部情况。

正方新城的产业,真的不错。
正方新城沿将军大道分布了中电国基南方集团有限公司、南瑞继保智能化电气装备产业园、大唐(南京)科技产业园等产业项目,都是实打实的产业项目,意味着未来的接盘动力较强,产业人口充沛。
不仅如此,我发现正方新城产业项目还在进一步充实,也注定了这个板块是一座产业与居住共融的区域。
地铁已经开通,S1号线四站可达南京南。
三江学院迁建已经立项,板块人气将进一步夯实!

相关配套正在兑现中。
据官方回复,正方大道以北道路,正在随楼盘开发和中小学项目同步建设,确保能在住宅和配套设施启用前率先开通。
正方大道以南片区已有700亩用地正开展征地工作,包括四条路:上宸云际以东锗矿路(正方中路以南段);前尚北路西延至锗矿路;凤高路西延至将军大道;以及规划创新大道;预计2022年年底启动建设。(以上内容来源于正方新城一家亲,在此表示感谢)
地铁口300米
上宸云际距离S1号线正方中路站仅约300米,是纯正的地铁盘,4站南京南。对于大多依赖地铁出行的上班族而言,这是一个杀手锏了。

自带幼儿园、商业
上宸云际自带幼儿园,有部分商业配套,小区南侧是规划的商业街区,未来购物也是比较方便的,开车到上秦淮砂之船也OK的。

无升级装修包,三大件配齐
项目无升级装修包,但是配齐了三大件,中央空调(海尔或海信或同档次品牌)、地暖(德国威能或博世或同档次品牌)、新风(狄耐克或中科睿赛或同档次品牌)。
厨房:油烟机和灶具(方太或老板同档次品牌)、抽拉式水龙头和不锈钢水槽(摩恩或欧琳同档次品牌)
卫生间:洗手、台盆、淋浴花洒和坐便器(科勒或TOTO同档次品牌)
台面配置挡水条,灶台后面有不锈钢横纹拉丝背板、厨房预留双开门冰箱位置,欧普的凉霸、室外驱蚊防虫灯、无障碍入户等。
小区景观+物业不错
单元入户门厅尺度奢阔,归家仪式感十足;高窗墙比;小区内绿植丰富,层次分明,每一次归家都成为一场穿越花园的旅行。

园林景观效果图
上宸云际还规划有阳光草坪、下沉艺术花园、花园式单元、萌宠乐园、夜光跑道等景观,营造极具观赏性的景观美学。

宠物公园效果图
物业公司是旭辉永升物业,口碑不错。
首付60万起,300米地铁站,4站南京南

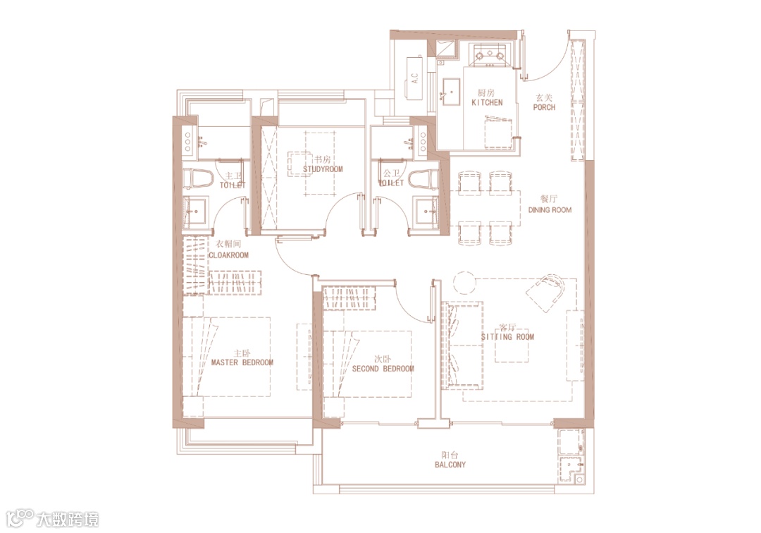
上宸云际打造建面约89㎡三室两厅一卫、约101㎡三室两厅两卫、约121㎡四室两厅两卫三款户型,全系双阳台,建面约101㎡户型双卫,建面约121㎡四开间朝南。
建面约89㎡,三房两厅一卫:布局方正,三开间朝南,起步就是双阳台,首付3成60万就能拿下。

建面约101㎡,三房两厅两卫:南北通透,三开间朝南、南向双阳台,主卧还采用了套房和飘窗设计,两个卫生间的配置也非常实用。

建面约121㎡,四房两厅两卫:全明户型南北通透,四开间朝南、南向双阳台,大开间短进深,非常适合改善型大家庭。

我们看下建面约89㎡样板间:
客厅开间3.3米,客餐厅一体。进门右手边就是厨房。

U型厨房,方太油烟机和灶具,抽拉式水龙头。厨具背后看上去光滑发亮,其实墙壁做了横向拉丝不锈钢设置,有效改善做饭体验。

南向双阳台,进深1.3米,开间6米,阳台中间的玻璃非常大,视线效果更好。

南向主卧,可以放下1.8米的床。嵌入式衣柜的设计也节省了空间。

南向儿童房,与阳台串联在一起。

卫生间采用TOTO、科勒等品牌,整体搭配不错,设计了较多的储物空间。

北向书房,有飘窗的设置,空间看上去并不局促。

上宸云际首付60万拿下三房一卫,首付不到70万买下三房两卫,没有升级装修包,三大件都有,开车到上秦淮10分钟,地铁4站直达南站,欢迎扫码预约看房!




