桥林的规划,变了!
刚刚,江北新区控制详情规划中部分地块规划出现了较大的变化:
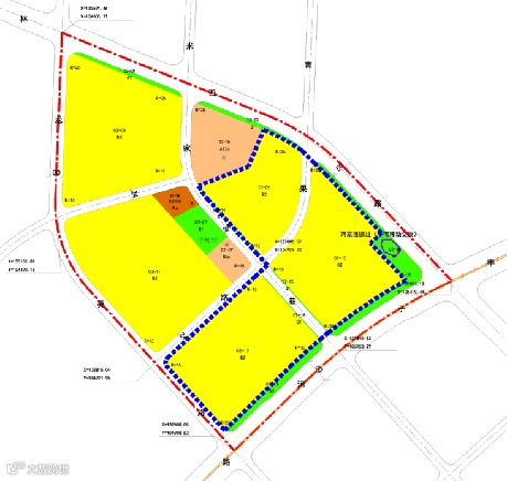
《南京江北新区控制性详细规划》NJJBg060-02、09管理单元
(林山雅苑安置房地块)图则修改(批后公布)
1
区位范围
NJJBg060—02图则修改范围东至丰子河路、南至龙葵路、西至青果路、北至林西路,用地面积约17.76公顷;
NJJBg060—09图则修改范围东至林西路、南至木槿路、西至龙葵路、北至丰子河路,用地面积约16.52公顷。
修改范围内以居住小区、村庄和农林用地为主,北侧为林山雅苑一期安置房,南侧为林山花园村


2
修改情况
《南京江北新区NJJBg060控制性详细规划》02、09图则单元:
( 1 )02-05、02-10、02-12等5个二类居住用地容积率由≤1.8调整为≤ 2.0,高度由≤ 35米调整为≤ 60米,其他控制指标保持不变;
( 2 )米家巷路、木槿路打造为生活性特色街道空间,两侧预留2米绿带,优化后公园绿地增加0.3公顷,二类居住用地面积减少0.3公顷。
调整前

调整后



另外一块地也出现了变化:
《南京江北新区控制性详细规划》NJJBg050-05 规划管理单元
图则修改(批后公布)
1
区位以及范围
拟修改范围位于桥林新城老集镇片区,东至百合路、南至桥河北路、西至水杉路、北至秋江路,拟调整地块面积约9.65公顷。
拟修改范围内现状为空地;地块周边以居住功能和空地为主,西侧为在建中心城3号地安置房、东侧为已建中心城1号地安置房


2
修改情况
将05-24二类居住用地容积率由≤1.8调整为≤2.1,建筑高度由≤35米调整为≤60米,其他控制指标保持不变
调整前

调整后



前面一堆内容,大家可能没心思看得太细,其实大的变化没有,就是容积率变了。以前的居住用地,容积率是1.8,现在变成 2.0了。同样的土地,能增加11.1%的土地面积,对于节约土地比较有利,土地的价值更高了。代价是容积率变高,居住的舒适性没有那么高了。
趁着这个机会,简单的聊聊桥林。

桥林这个板块,现在地铁已经有了,学校嘛,也快挂牌了,南师大体系学校,牌子还是会有的。目前这个额区域大部分还处于待开发状态。近期坐着宁和城际走了一圈,最直接的感受是:这个地区的地,实在太多了。
兰花塘三剑客,目前几个楼盘都在如火如荼地建设过程中。

科学城的建设,有模有样。


地铁口周围,大片的土地有待开发。


其实,在晴朗天空的映衬之下,桥林的自然环境优势一下子显出来了。这个板块,北面是五桥,江对岸是雨花经济技术开发区,斜对面是河西南,优势还是比较突出的。而桥林地铁线路两侧空地大概是4公里,南北长度约12公里,总面积高达50平方公里左右,相当于3个河西南,5个大校场(不算军事用地),1.5个核心区(扩大版)。这么大的面积,增加100万人在这里居住,问题不大。
以前我们总说南京缺地,其实现在看来,地确实不太缺,地很多,就看怎么开发,何时开发,这个很重要。
桥林新城,今年计划出让7幅,拟出让总面积550.1亩。(具体指标以实际出让公告为准)


不过实话实说,这7块地在桥林新城的位置,不算核心区,距离地铁比较远。可见桥林新城今年的重点,还是在老镇和外围区域。地铁口已经有三剑客竞争了,不再给这个区域施加过大的压力。
目前桥林新城主打的几个概念是:
1、地铁小镇:地铁S3号线对桥林意义重大,从兰花塘·南京科学城站上车,4站就能到河西南;后期还有地铁11号线经过,预计2026年建成;
2、南京科学城:2018年初,南京(浦口)科学城正式挂牌成立,现聚集了台积电、清华紫光、中脉科技、百度、雨润等大型企业;
3、南师教育:今年3月中旬,浦口区人民政府与南京师范大学、南京地铁集团举行合作办学签约仪式,板块内还有南京书人实验学校、南京苏杰学校两所私立学校;
4、TOD:除丝兰湖商业中心外,未来兰花塘站将以TOD模式建设,以及S3号线双垅站大型商业综合体也在规划当中;
5、V—PAKE:江北新区最大生态公园(仅此于玄武湖、仙林湖、百家湖,南京第四大湖泊资源);
6、“九大新城”之一:桥林,江北南部新中心,南京重点规划打造的“九大新城”之一,板块内规划的居住用地面积1122.9公顷,规划形成“一带四廊”布局,未来拟引入35万人口。
对于桥林新城,简单的做一个总结:
1. 房价方面,非地铁口楼盘,2万左右,有波动,随行就市。地铁口的品质商品房,价格要贵一些了。2.5-2.6万左右。环顾南京各个板块的价格分布,实话实说,价格偏高了一点。
2. 土地方面,桥林根本不缺地,大片的土地有待开发,未来的路还有很长。目前相关配套还比较薄弱,人口还未有效导入。
3. 买房投资方面,一般般吧。
综合自南京江北生活圈、乐居网等

