


-
YQ原因,南站的整体客流量有所下降,整体经济活跃度,略有下降; -
南站的高铁站的属性,及板块联动的特质,决定了这个区域想建成区域商业中心,有一定难度; -
南站的优势是商务中心,即在这个区域搞产业,搞总部,非常好。但政府的相关规划层级,没有提上来; 再一个就是学区,本来雨外+雨花台中学无敌了,但现在搞了三个本部,资源稀缺性降低了..
但南站的优势也非常突出,包括南站的客流量,马上就会提升,这个板块位于江南主城的中心位置,比南站位置更好的板块,其实不太多。主要是最近土地不多,新盘非常少,炒作的热度一下子下来了,媒体也不吹了,略显落寞。
上一个热炒的板块,清盘后没人炒的板块,就是鼓楼滨江。但无论是鼓楼滨江,还是南站,底子还在。你住在南站,其实可以辐射的范围很广,在河西上班,在江宁上班,在软件谷上班,在新街口上班,都能住在南站。而且随着YQ改善,你在上海张江高科上班,在杭州未来科技城上班,也可以住在南站。我其实认识一些跨城市工作的群体,周一去外地,周五回南京,在南站附近置业,也比较方便。
就像一些在南京南工作的马鞍山青年,也有住在马鞍山东站附近小区的。
另外,南站区域的土地,在2023年,会稍微热一点。江宁片区去年已经推出了一块地,还有一块老地块,传出了新消息。
这块地,在2016年南京最火爆的时候,被万科拿下,当时为万科G46地块,后来又传出一些退地的传闻,各方面不置可否。现在来看,已经很明确了。

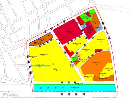
MCd080-10规划管理单元东至双龙大道、西至明城大道、南至秦淮新河、北至宏运大道,用地面积约103.43公顷。

修改地块东至中驰路、西至明城大道、南至规划支路、北至宏运大道,用地面积约2.53公顷。

该幅地块原本为商住混合用地(Rb),现调整为二类住宅用地(R21),容积率由≤3.2调整为≤2.1,建筑密度≤40%调整为≤20%,建筑高度≤120米调整为≤60米,绿地率≥25%调整为≥30%,取消配套公共厕所。
调整前▼

调整后▼

那么这块地,为什么调整,意味着什么?这给我们透露了几个关键信息:
1. 地价变化很大。当年楼面价高达2.7万,妥妥的南站地王。现在你重新拍,你能拍2.7万?够呛。说明南京2016年到2023年,7年了,南京地价没涨,还降了。这是南京地价的大趋势。
2. 为什么要调整?以前这块地设计为120米以内,容积率3.2,非常密集。现在控制在60米,容积率2.1。这意味着土地出让金会损失很大,由高密度商住地块,变成一个中密度的小高层小区,白白损失这么多钱,可能是因为限高问题不好搞,120米实在上不去。当时觉得土山机场很快搬迁,限高问题很快解决,从2016年到2023年,到现在还是没解决,但又想推地,最后只能妥协,把楼高降低。
3.商住用地,变成住宅用地。可以想象,2016年确实是南京巅峰,地价太残暴,商住地块价格都这么高,如果当时容积率低点,纯住宅,我感觉3.2万的楼板价都能拍上。但现在行情不同了,南站区域商业部分搞得一般,为了顺利出让,还是变成了纯住宅地块。
该地块前身就是万科G46地块,2016年该地块被万科拿下,楼面价27168元/㎡,2019年该地块的规划出炉,拟建4栋27-32F高层住宅及商业、办公。
时隔7年该地块迟迟未上市,本次规划调整,大家有点疑问:
是继续由万科来操盘?还是重新土地出让?我觉得从程序的要求来看,应该是要重新土拍了,具体怎么玩,还得知情人士来透露。

原规划
最后说一下,南站这个板块吧,优势是区位。劣势呢,就是这几年资源导入没有新的层次了。之前规划的350米摩天楼啥的,应该是泡汤了。现在就是踏踏实实过日子,不吹牛逼。地铁、学校、基本的商业都有,去哪都方便,这就够了。未来几年,南站也不是南京最火的几个板块,媒体的舆论声音,不会太强。这个没办法,楼盘越多的地方,广告越多,广告越多,曝光量就大。反之,楼盘少的板块,媒体没有义务,也没有动力帮你吹,因为吹牛逼其实也挺耗费脑细胞,不如搞点房价暴跌的新闻,流量更大一些。
就是这样的板块,整体上南京一线的咖位,还是能保住的。
部分材料参考辉哥说楼市,感谢!

