高端!刚刚,南部新城金基G25户型曝光...
楼市科学家
南部新城,最近火爆异常。在保利文华、润鸿府等楼盘去化加快之时,同时期拿地的金基G25姗姗来迟,现在终于传出了新消息。

这其实是金基第一次进入南部新城南侧片区,之前金基在北侧已经开发多个楼盘,口碑积累不错,也维持住了高端豪宅的人设。现在在南部新城创新街区来操盘,更受关注。
毕竟,相对于大校场北侧地缘客户主导的市场,创新街区吸引的全城客户群,可能更广泛。
项目分为两个小部分,一块是小高层,一块是洋房,与保利文华结构类似。值得注意的是,洋房部分的户型不大,小高层的户型主打大平层,这种设计在周边比较稀缺。


102平米的三房两厅双阳台,洋房配置,稀缺性很大。无论是年轻幼稚刚需,还是老人养老,这个户型很有吸引力。北侧卧室全部配置了飘窗,电梯厅私密性很好。

130㎡的三房两厅两卫双阳台,改善属性比较突出。房间呈四叶草分布,餐厅客厅一体化,位居中间。宽厅+双阳台,采光非常不错,主卧的套间尺寸较为奢阔。

171㎡的大平层设计,两梯两户,四房两厅两卫双阳台。三个卧室朝南,厨房和餐厅部分空间比较突出,中西餐厨都能够轻松配置。各个方面尺度比较开阔,确实是改善的好户型。
金基出品,必出精品,品质肯定高出一块,价格也会更贵一点,适合对品质要求比较高的客户群体。
在22年7月12日,金基、南部新城开发建设集团联合竞得G25地块,成交总价为27亿元,楼面地价29960元/㎡,未来毛坯限价4.75万/㎡。
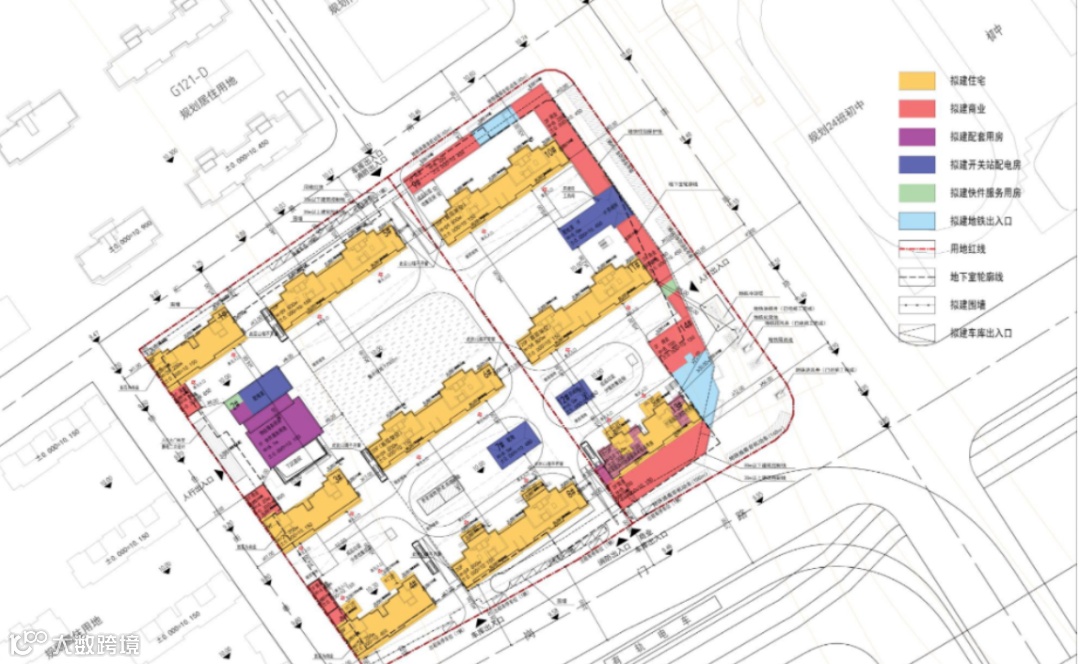
根据规划方案,G25总用地面积32301.32㎡,将分为A、B两个分区打造,其中A分区用地性质为R2二类居住用地,用地面积18912.42㎡,建筑高度≤60m;B分区用地性质为Rb商住混合用地,用地面积13388.9㎡,建筑高度60m。

-
西侧的1、4号楼为8F洋房,3号楼为9F洋房,搭配1F商业配置用房;剩下的5、6、8、10、11号楼为20F高层住宅,配备2F商业配置用房;
-
设计,视野更加开阔,也更加人性化,同时在1、3号楼中间做了下称庭院,让空间变得更加丰富有层次,视觉感更强烈的同时,增加了不少韵味;
-
5、6号楼中间预留了一块超过2000㎡的集中绿地,6、7号楼中间设置了养老绿地和养老活动场地,相信以金基的实力,能够打造出不俗的社区景观。




楼市科学家
南京楼市大脑,科学研究楼市