南京江北新区NJJBb020单元控制性详细规划
14规划管理单元图则修改公众意见征询
自《南京江北新区NJJBb020单元控制性详细规划》批复以来,城市开发建设得到了有效的指导。现为提升片区整体形象品质,拟对《南京江北新区NJJBb020单元控制性详细规划》14规划管理单元图则进行修改。
1
项目概况

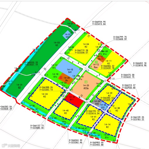
2
修改地块现状
拟调整地块现状对外交通主要依靠盘城新街,现状主要为工业及居住用地

3
修改内容
修改前


修改后:主要增加了几块居住用地的容积率。


南京江北新区NJJBb060单元控制性详细规划
05、08规划管理单元图则修改公众意见征询
自《南京江北新区NJJBb060单元控制性详细规划》批复以来,城市开发建设得到了有效的指导。现为促进工业经济高质量发展,拟对《南京江北新区NJJBb060单元控制性详细规划》05、08规划管理单元图则进行修改。
1
项目概况

2
修改地块现状
拟调整地块现状均为空地。地块周边骨架性干道基本已建成,交通便利。

3
修改内容
修改前


修改后:
05-03地块增加了容积率

8-19地块由科研用地调整为工业用地


