最近几天,南京楼市异常热闹!南部新城开盘、河西开盘...高端客户的选择越来越多。
就在众多顶豪激烈博弈的关键时刻,河西南纯新盘发布了新户型,客户竞争瞬间白热化。没有人能想到,大平层的户型还能这么做...
这就是奥体建设河西南G72项目,户型一出,瞬间在各大平台引发强烈关注,对户型最为挑剔的网友也达成一致:挑不出一点毛病。

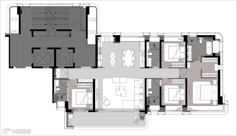
那么这个大平层户型,到底是怎么设计的?约198㎡的四房两厅两卫的布局,创新点太多了!
奥体建设G72户型图,具体以开发商合同约定及实际交付为准
四开间朝南,南向面宽超20m,超强采光面;
多套房设计,全系改善,四卫全明;200㎡以内配置了4个卫生间,非常罕见;
约9.45m跑道观景大阳台,视野无敌;
全居室均带飘窗或阳台设计,卫生间均带飘窗,甚至餐厅北向也有超大飘窗,空间感非常好;
超36㎡大主卧,约4米面宽+独立衣帽间+双台盆+270°转角飘窗+大浴缸;
约6.2m大横厅设计,与餐厅南北呼应,空间感强;
2梯2户,电梯背靠背设计,类独立门厅,互不干扰,归家仪式感及私密性强,优于周边项目;
LDKB一体化布局,增强采光,改善通风,提升空间利用率,营造N种居家场景。
效果图非交付标准,具体以合同约定和实际交付为准
超6m高度,气宇非凡;
酒店设计,超大尺度门庭,仪式感十足;
外立面以大面积玻璃窗+铝板+金属格栅为主,融合阳台圆角设计,大气典雅,美感在线;
从公示的效果图来看,项目拟建4栋高层住宅,项目外立面以铝板、大面积玻璃窗、金属格栅为主的现代简约建筑风格。
(图片来源:南京市规划和自然资源局官方网站。效果图仅供示意,建筑方案以方案审定为准,具体景观以专项景观设计为准)

“植物园”系列航拍图
据悉,奥体建设G72的入户大堂,高约6米,非常气派。此外,G72配置了会所,面积约1800㎡,还是非常奢阔的。
在景观方面,由于采用围合式排布,地块中间有足够的空间交给设计师研发打磨,视野很开阔。



