众望所归的南师附中江北校区,设计规划图出炉!
注意,这个公示的名称是:南京师范大学附属中学江北新区学校新建工程设计方案,主体是南师附中江北学校。

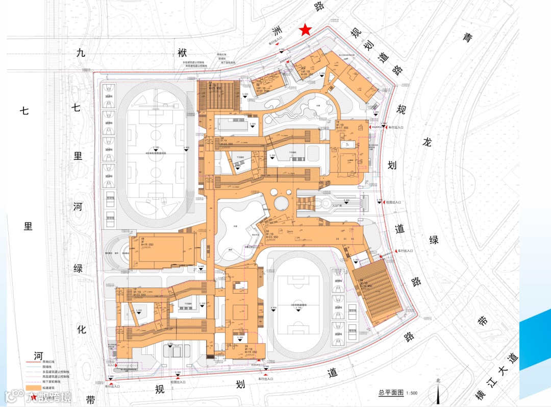
项目位于江北新区顶山街道,北邻九袱洲路,东临七里河大街,南临横 江大道,西靠七里河。中学规划用地性质为 A33 中小学用地,用地面积约 130819.39 平方米,容积率≤1.5,绿地率≥35%,建筑高度≤60 米,拟建总建 筑面积约 19.7 万平方米,其中地上建筑面积约 13.9 万平方米,地下建筑面积 约 5.8 万平方米,主要建设内容为风雨操场、食堂、礼堂、教学楼、行政图书 楼、艺术楼、学生宿舍。

明确就是中学+小学的模式,学校规模相当之大。包含两个操场(应该是中学小学分开使用)

效果图更是气势恢宏,紧邻七里河,风景优美,确实是学习的好地方。整体建设风格现代,颇有设计感。

学校内部绿树成荫、芳草萋萋,环境一流,江北新区的业主们有福了。孩子在这样的现代化学校上学,条件一流。

目前南师附中江北新区学校还没有公布学区,留有一丝悬念,周边的小区众多,大家都有机会成为南师学区,算是一个重大利好!
最近江北新区的士气,很低落,不少业主带头反水,对江北新区的建设比较悲观。其实在火的时候,不要那么上头;在不火的时候,也不要如此悲观。江核虽然建设的慢,但有几点基础相当不错,不宜过度看轻:
1. 区位不错,去江南一脚油的功夫,哪怕堵车,20-30分钟也基本上能到江南,尤其河西的一些就业岗位多的地区;
2. 环境不错。以这所中学为例,硬件设施确实很强,旁边就是七里河,如此优美的环境,看习惯了就忽略了?不是挺好嘛。3-4万的价格在这样的地方居住,问题不大;
3. 不要看规划,看落地。比如学校、医院、商场,这些关乎到吃喝拉撒睡的东西,是不是在逐步落实?是不是也可以在这边生活了?地铁慢一点,等两年就是了,都等了这么多年了,不差这两年,怕啥?
4. 降低预期,比如500米高楼,即便没有,又能如何?有了就飞起来了,没有就掉下来了?500米高楼没那么重要,直接忽略它的存在
其他的关键的东西,比如产业,慢慢积累吧,整个南京都玩不好,你让江北突飞猛进,也不太现实,苟住就可以了。


