燕子矶,城北唯一的大片开发板块,上新了!
就在刚刚,保利·国贸璟上,建面约89、99、115、135㎡四种户型图首曝光!
项目的前身事燕子矶G20地块,在今年5月的土拍中,燕子矶G20触顶摇号,成交楼面价21253元/㎡,引发全城关注。燕子矶,从此进入一个新的阶段。
据悉,保利·国贸璟上,是由厦门国贸携手央企保利,带来全新的“上”系产品,值得期待!
项目拟配建11栋29-32层住宅,预计将打造89-135㎡户型,自带下沉式庭院,预计最快将于9月份公开!
如今建面约89-135㎡的户型图曝光,非常有特色!

功能性很强,三房两厅一卫的格局,LDK一体化设计,双联宽景阳台,卫浴干湿分离,U型厨房设计。

三房两厅两卫格局,南向双阳台,两个卫生间均为全明设计,主卧套房带飘窗,有一定改善属性。南北共有4个飘窗,赠送面积较多。
建面约115㎡的三房两厅两卫户型:

三房两厅两卫+大宽厅的格局。面宽约5.2米的横厅设计,搭配约8.2米的南向双阳台,尺度优越,有点大平层的气势。飘窗也是大亮点!
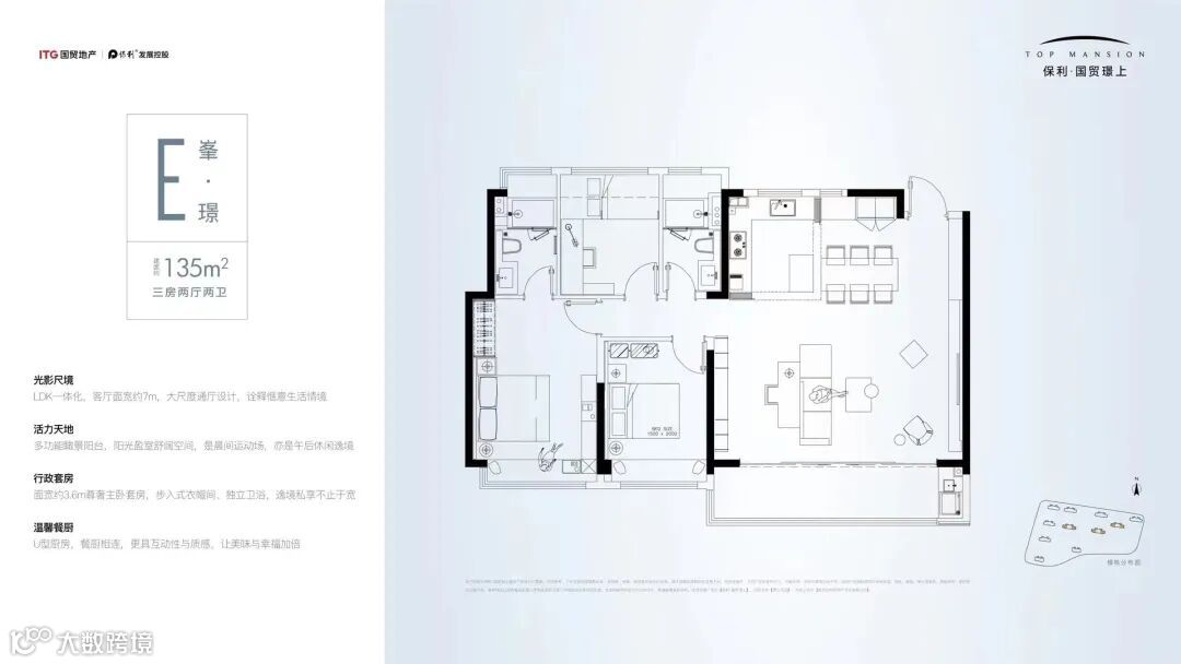
建面约135㎡的三房两厅两卫户型

改善属性浓烈,LDK一体化设计,客厅面宽约7米,主卧套房开间约3.6米,U型厨房设计,尺度惊人。
保利·国贸璟上位于栖霞区燕子矶街道,西临和燕路,南至晓庄街,北至宜春街东至燕春路,用地面积53773.16平方米,规划用地性质为R2二类居住用地(100%),1.0<容积率≤2.8,建筑高度≤100(m),建筑密度≤20%,绿地率>35%。
规划设计方案总建筑面积约20.94万平方米,其中: 地上建筑面积约15.06 万平方米,主要功能为住宅、物业、养老及配电房等相关配套设施;地下建筑面积约5.88万平方米,主要功能为地下车库、其他配套设施等。
该地块紧邻晓庄国际广场,同时紧邻地铁7号线晓庄站和和燕路快速路,交通便达。项目200米范围内有仙林外校燕子矶校区等,地块北侧即为保利燕璟和颂,周边还有在建的燕子矶新城综合医院、体育公园和年底将开业的万象综合体,周边的生活配套十分便利。
地块东南角规划一处12班幼儿园,200米范围内已有仙林外校燕子矶校区、晓庄小学及伯乐中学,可充分满足片区教育配套需求。
马上周边还有一块地要拍,燕子矶的竞争,更加激烈。也期待保利·国贸璟上在产品方面给我们带来更多惊喜!
