7月17日,南京就要进行第四轮土拍了。由于第三轮土拍组织得不太成功,3块好地没有顺利出让,所以大家对于第四轮8块地格外关注。
今年我们就把这8块地的情况展示一下,各大房企还是要抓紧关注,该买就买,好地不多了!hhhh...
地块名称:雨花台区赛虹桥街道丁树路以东、安凤路以南地块
地块四至:东至星博路;南至公园绿地;西至丁树路;北至安凤路。
最高楼面限价:28220元/㎡
地块位于河西新城连接软件谷小行跨线桥的西南侧、机场二通道西侧,北侧软件大道可通达河西新城、南部新城以及凤台南路、绕城公路快速路,北侧邻近地铁10号线小行站,出行十分便捷。地块紧邻仁恒城市星光和万科朗拾、朗拾二期。

地块所在片区近年来市场热度十分高,去年成交的朗拾(G04)、今年成交的朗拾二期(G06),均触顶摇号成交,朗拾开盘日光成为常态。本地块为该片区中最后1幅住宅用地,同时也是规模最小、离南侧公园更近的地块,低总价优势或将引发更激烈的争抢。

目前,地块东侧机场二通道、南侧规划一路、西侧规划二路均正在建设中,预计2023年建成通车。地块东南侧有两处规划幼儿园和一处规划九年一贯制学校,东北侧有现状小行幼儿园和中南幼儿园。地块南侧在建城市星光项目内有一处居住社区中心,目前正在同步建设,预计将与城市星光项目同期交付,形成区域内的公共生活配套中心。
地块名称:江宁区青龙片区麟岗大道以南、东流路以西地块
地块四至:东至东流路;南至福宁路;西至一帆路;北至麟岗大道。
最高楼面限价:17182元/㎡
地块位于环紫金山科创带中心区,所在片区将规划形成“一脉一带两心三环五版块多组团”的空间结构,其中“脉”为中央绿脉;“一带两心”为CAZ中央活力带、东流中心孟北中心“三环”指景观道特色链(Parkink)、水绿环;“五版块”为袁家边版块、东流版块、山北部版块、孟北版块、锁石版块;“多组团”即在板块内部以城市绿廊(风廊)划分多个组团”。
据南京日报最新消息,城东将打造“公园中的城市”,青龙地铁小镇是最具条件成为南京城市东部龙头的发展片区,低密度的开发模式和山水资源是其最具特色的宜居价值所在。本地块北侧紧邻龙王山,东侧紧邻中央绿脉,容积率低至1.2,可充分发挥自然资源禀赋的人居价值优势。
目前,片区内大批小区已交付,居住氛围逐渐成熟。有中南山锦花城、恒大龙珺、招商正荣东望府、深业青珑上府、阳光城文澜府等小区。
青龙地铁小镇是南京的首个TOD小镇,全市第一个地铁先行的板块,五线地铁交汇。目前地铁2号线(南大仙林校区站)、地铁4号线(东流站)已建成,这里还规划有地铁8号线、15号线、16号线。
教育方面,除了预计今年开学的江宁高级中学外,还有南外仙林紫东江宁分校、福宁路幼儿园、同舟路幼儿园等配套均已投入使用。

地块名称:六合区雄州街道北外街以西、园林西路以北地块
地块四至:东至北外街,南至园林西路,西至学东路,北至教育西路。
最高楼面限价:7287元/㎡
地块位于六合主城区,紧邻凤凰山绿心、园林路景观轴,地段十分优越,可零距离享受城市中心的稀缺自然景观资源。地块两侧分别为龙湖兴邦揽境、卓越蔚蓝时光,区域市场价值认可度和市场关注度都较高。
地块紧邻凤凰山公园、六合实验高中,可享有地铁S8号线凤凰山公园站、方州广场站地铁双站的便捷轨道交通,以及体育中心、体育场等公共健身配套资源,相邻地块配建有社区中心,公共生活配套十分成熟。地块是主城核心区中非常优质的居住用地,可有效提升老城区的人居品质和形象。

地块名称:六合区雄州街道芳棠路以南、龙马路以东地块
地块四至:东至现状;南至现状;西至龙马路;北至芳棠路。
最高楼面限价:7239元/㎡
NO.2023G32(9号地块)位于滁河以东、雄州中心区二期范围,该片区为雄州中心区跨滁河发展的核心区域,将打造成为六合“新街口”,集商业娱乐、旅游休闲、创意文化、总部办公等多样功能为一体。
NO.2023G32(9号地块)北侧紧邻新篁河,交通便捷、自然资源较为优越。地块为雄州中心区二期“四区”中人才精英社区的重要组成,将开发建设亲水宜居、环境优越、配套完善的高品质生活社区,轻松尽享雄州中心区城市客厅的完善配套。地块周边规划有一定比例的商业,满足居住组团内居民日常的生活消费需求。地块南侧规划有小学和医疗用地,未来的公共配套将较为完善。


地块名称:六合区龙池街道沿河路以南、龙池东路以东地块
地块四至:东至府东路;南至现状;西至龙池东路;北至沿河路
最高楼面限价:8003元/㎡
两幅地块紧邻江北大道快速路、龙池湖绿心,位于滁河沿岸东南侧生活组团,周边环境优美,滁河水道蜿蜒尽收眼底,宜打造高品质的水景社区。
两幅地块紧邻沿河花园小区、荣盛龙湖半岛等多个小区,靠近时代广场商圈,拥有六合区较好的配套教育资源金陵中学(龙池分校),公共生活配套非常完善。多幅地块的开发建设,将快速提升该居住组团的居住品质和城市人居形象。去年10月,NO.2022G96顺利出让,未设毛坯限价。

地块名称:六合区龙袍街道龙袍大道以南、公园路以西地块
地块四至:东至公园路;南至振兴路;西至通洲路;北至龙袍大道。
最高楼面限价:8861元/㎡
地块位于龙袍新城“一心、五轴、一带、两片”中的活力城市片,东侧紧邻杨庄河路功能轴,南侧邻近龙余路功能轴。地块东侧规划有小学、幼儿园、城市绿地,周边还有多幅医疗、教育配套用地,未来的新城生活配套将十分完善。
去年第三、五批次中,龙袍新城顺利出让4幅地块,未设毛坯限价。今年3月又顺利出让1幅地块。
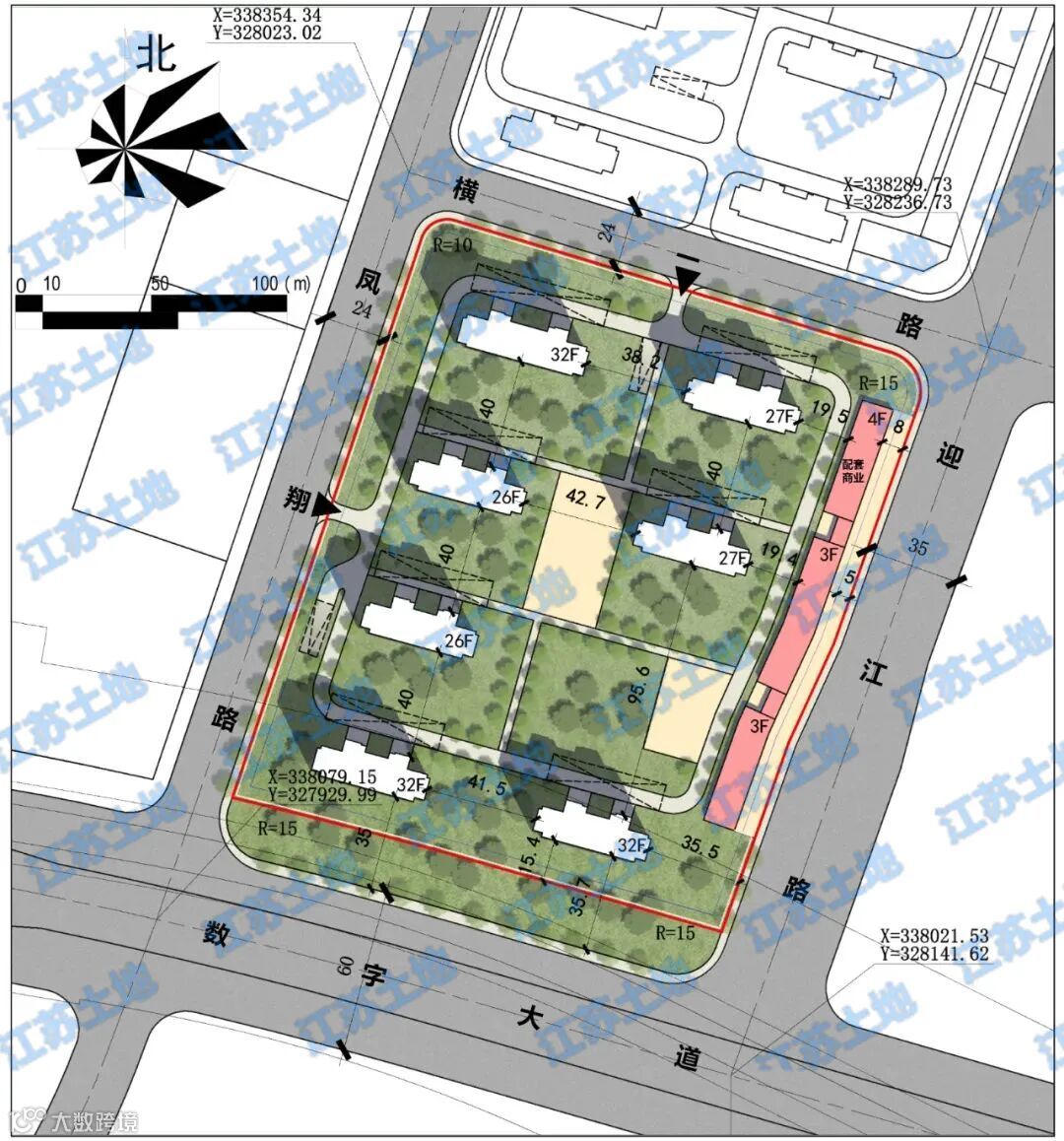
地块名称:雨花台区铁心桥街道数字大道以北、迎江路以西地块
地块四至:东至迎江路;南至数字大道;西至凤翔路;北至横一路。
本地块十分方正,为数字大道东段十分优质的住宅用地,将接续雨花数字城土地市场的高热度。东侧规划建设小学、初中、幼儿园各一所,其中初中已开始建设。地块西南侧已建成铁心桥小学,西侧及西南侧还将规划建设两所幼儿园。
地块东侧紧邻片区配套建设的居住社区中心,配套较大规模的社区商业,可形成片区内的公共生活配套中心。西南侧为商办用地,规划建设社区型商业。
地块紧邻数字大道、花神大道等城市主干道,可快速通达主城核心区、河西新城、南部新城以及南京南站。地块位于地铁S3号线景明佳园站与铁心桥站之间,居民可慢行、公交、机动车多种交通方式便利出行。
地块南侧靠近秦淮新河百里风光带,东侧规划建设景观公园,西侧正在建设占地约290亩的雨花城市公园,周边环境十分优越。

地块内可建7栋26-32层的高层住宅,沿迎江路可布局3-4层的沿街商业,作为片区社区生活配套的补充。

地块名称:江宁区江宁高新区竹山路以东、横二路以北地块
地块四至:东至兴民北路,南至横二路,西至竹山路,北至新亭路。
出让面积:62024.62㎡(含仅出让地下2022.99㎡)
最高楼面限价:21507元/㎡
NO.2023G39地块位于主城东山老城中心区,区位优势十分显著:临近在建地铁5号线站点,龙湖天街、万达商业广场、江宁杨家圩市民中心、市民广场等均在地块周边。据悉,该地块未推先热,已有部分未能摇中G08、G16地块的房企展开了地块的深度研究,表示出了强烈的拿地意愿。

地块西北角规划有一幅商办混合用地,为5号线地铁新亭路站地铁上盖,未来将进行居住、商业、办公等混合功能开发,将提升片区形象。
土地内容来自江苏土地,感谢!
