之前有楼盘宣称,拿地13天出规划,已经成为神话。
而保大哥告诉你,其实可以更快的。
就在刚刚,位于软件谷核心区的凤起云台南侧的G38地块,拿地一周就出规划了,就是这么快。而且从内部情况了解到,这个盘未来的销售均价,将超过4.4万/㎡!
买到凤起云台的朋友们,恭喜了!

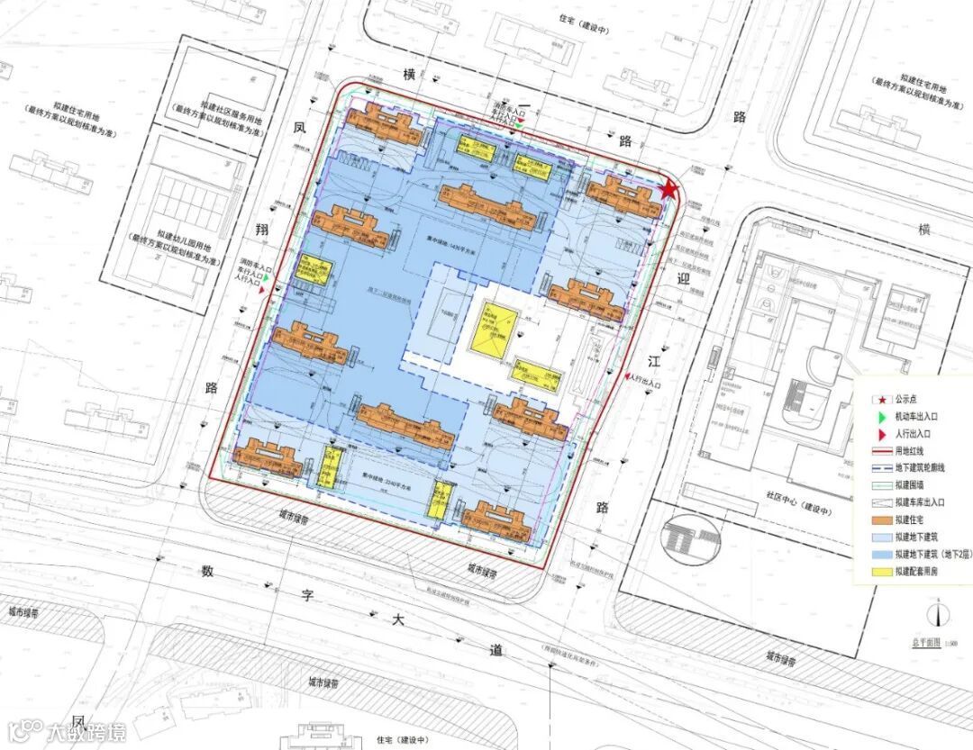
公示显示,保利G38 地块项目位于雨花台区铁心桥街道,东至迎江路、南至数字大道、西至凤翔路、北至横一路。总用地面积约 42609 平方米,地块规划用地性质为 R2 二类居住用地,1.0<容积率2.8,建筑高度2100m,建筑密度 22%,绿地率=35%。

项目规划总建筑面积约 168920 平方米,其中地上建筑面积约 119307 平方米,主要建设 10 栋高层住宅、7 栋低层配套用房等,地下建筑面积约 49613平方米,主要建设 2 层地下室,包含人防设施、配建停车库及其他辅助设施。

10栋高层,小区不算小,中间的中央景观,应该还是不错的。

从楼栋排布来看,中央景观的南北侧,有两栋楼王,尤其北侧的是楼王中的楼王,看情况应该有较大的户型出现,当然,绝大部分户型,应该主打小户型,小户型卖的快嘛!
外立面采用当下流行的展现方式,不出意外的话应该是铝板一体板啥的,窗墙比较高。
这块地,怎么看?
1. 这块地面积适中,利润有较大空间。其他房企不敢拿,但保利敢拿,保利心里有数,可以先借用凤起云台售楼处,先跑起来,成本比其他房企要低一些。
2. 这块地,还是主打小户型。凤起云台已经证明了,89的小户型跑得比较快,购买力旺盛。所以这块地,我认为就是主打小户型,89-99左右的供应,占主导,户型方面再做个革新,就很好了。(我自己猜的,不代表保大哥观点)
3. 软件谷的市场,行不行?行。但无法容纳3个+以上的楼盘竞争,到年底的时候,区域内其他盘卖的七七八八,G38的时间窗口还是可以的。码农买房,未必量很大,但一定会有量,谁抓住就是谁的。
4. 房价这块,地价比凤起云台低,房价就要比凤起低?不会的,这个其实没有太大关系,卖什么价格,真的看市场,能赚都是自己本事。据说,要卖4.4万/平米!
5. 这块地,之所以保利这么快出规划,是因为早就规划好了,早有预谋,早就打算拿这块地。所以工作都做在前面了。
现在房企拿地,都是这个套路,看中的地块,提前做好规划。看不中的地块,根本不会去研究,保利作为南京土地市场的榜一大哥,听说还要继续拿地,比如南部新城的新地,要拿,燕子矶的新地块,可能还是要拿!
保大哥,是真有钱!


