大数跨境
0
0

好消息!又一所一中分校来了!

好消息!又一所一中分校来了! 楼市科学家
2023-09-30
3
导读:关注楼市科学家
近日,惠泽路小学新建工程项目、南京市第一中学江北新区分校胡桥路校区工程项目发布批前公示,一起来看看吧!



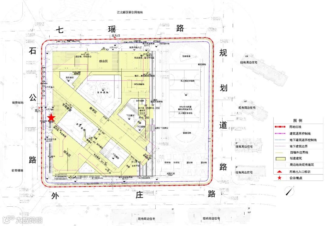
1.南京市第一中学江北新区分校胡桥路校区工程

项目概况



项目位于南京江北新区顶山街道,用地西侧为石公路,东侧为规划道路,南侧为外庄路,北侧为七瑶路。规划用地性质为初中用地,用地面积约39646.47平方米容积率≤1.0,绿地率≥35%,建筑高度≤24米。拟建总建筑面积约4.7万平方米,其中地上建筑面积约3.5万平方米,地下建筑面积约1.2万平方米。主要包括教学、办公、图书阅览、食堂、报告厅、游泳馆、风雨操场等功能。



▲项目区位图


▲总平面示意图

以上项目各项指标符合设计要点,并满足规划法则规范要求。根据南京市建设项目规划公示相关规定,对该项目进行批前公示,征询公众意见。如有意见者,请向相关单位反映。

建设单位



南京市第一中学江北新区分校


公示方式



1.项目建设现场
2.南京江北新区市民中心四楼规划展览馆
3.南京江北新区官网(http://njna.nanjing.gov.cn)


效果示意图




公示时间2023年928日至2023年1011

批前公示旨在征询公众意见,并非最终审批结果。如您对该规划项目有意见表达,请在公示期内将书面意见邮寄、电子邮件或者传真至南京江北新区管理委员会行政审批局(请注明“公示反馈意见”),公众意见将作为审批决策的重要参考依据。

地址:南京江北新区滨江大道292号
邮编:210031
邮箱njsjbxqgs@163.com
传真:025-68110784

(复制网址进浏览器,可查看公示公告原链接
→http://njna.nanjing.gov.cn/njsjbxqglwyh/202309/t20230928_4023719.html)




2.惠泽路小学新建工程


项目概况



项目位于南京江北新区,和旭路以东,万和路以西,惠泽路以北。小学规划用地性质为A33a用地,用地面积约37272.85平方米,容积率≤1.0,绿地率≥35%,建筑高度≤24米,拟建总建筑面积约4.44万平方米,其中地上建筑面积约3.65万平方米,地下建筑面积约0.78万平方米,主要建设内容为普通教学楼、专业教学楼、图书馆、报告厅、风雨操场等教学用房。


▲项目区位图


▲总平面示意图

以上项目各项指标符合设计要点,并满足规划法则规范要求。根据南京市建设项目规划公示相关规定,对该项目进行批前公示,征询公众意见。如有意见者,请向相关单位反映。

建设单位



南京江北新区管理委员会教育和社会保障局


公示方式



1.项目建设现场
2.南京江北新区市民中心四楼规划展览馆
3.南京江北新区官网(http://njna.nanjing.gov.cn)


效果示意图




公示时间:2023年9月26日至2023年10月9日

批前公示旨在征询公众意见,并非最终审批结果。如您对该规划项目有意见表达,请在公示期内将书面意见邮寄、电子邮件或者传真至南京江北新区管理委员会行政审批局(请注明“公示反馈意见”),公众意见将作为审批决策的重要参考依据。

地址:南京江北新区滨江大道292号
邮编:210031
邮箱:njsjbxqgs@163.com
传真:025-68110784

(复制网址进浏览器,可查看公示公告原链接
→http://njna.nanjing.gov.cn/njsjbxqglwyh/202309/t20230926_4020619.html)




来源 | 江北新区行政审批局


【声明】内容源于网络
0
0
楼市科学家
南京楼市大脑,科学研究楼市
内容 7769
粉丝 0
楼市科学家 南京楼市大脑,科学研究楼市
总阅读7.0k
粉丝0
内容7.8k