没有想到,楼盘卖到一半,规划还能改!
刚刚,南京规划和自然资源局网站发布《NO.2023G20地块项目规划许可变更批前公示》,燕子矶保利国贸璟上项目迎来一波重磅规划调整。
为进一步提升居住品质,现将住宅 1#、2#、5#、7#、11#楼的飘窗、空调搁板、立面形式及部分建筑功能等进行优化调整,6#楼(非住宅功能)底层增设局部架空功能,原养老用房功能调整至 1#楼首层,同时11#楼户型全面调整。

该项目位于栖霞区燕子矶街道,西临和燕路,南至晓庄街,北至宜春街东至燕春路。2023年7月,项目取得建设工程规划许可证(建字第320113202300437 号、建字第 320113202300484 号),住宅共 11 栋,其中 1#、2#、5#、7#、11#、12#楼未领取商品房预售许可证。
项目区位图:

总平面图(调整前):

总平面图(调整后):

单体变更内容——
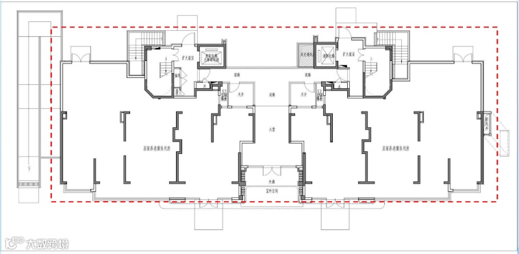
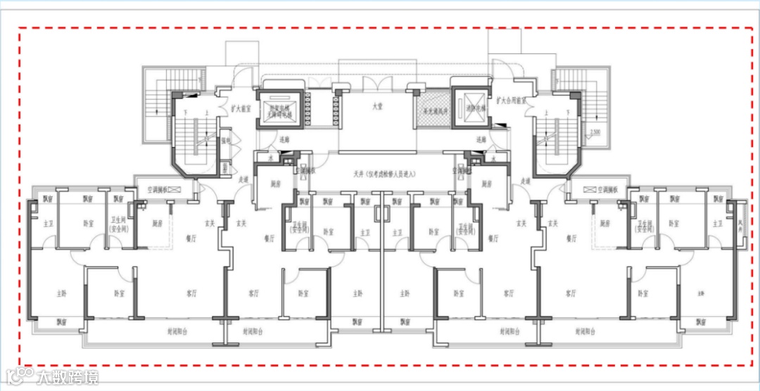
01#楼:
①首层增设养老用房功能,各层飘窗进深由600mm调整为750mm,端户空调板尺寸调整。
②建筑首层轮廓调整,立面开门开窗形式调整
③空调搁板尺寸调整;
一层平面(调整前)↓

一层平面(调整后)↓




02#楼:各层飘窗进深由 600mm 调整为750mm,端户空调搁板尺寸调整。


05#07#楼:各层飘窗进深由 600mm 调整为 750mm,端户空调搁板尺寸调整,端户主卧增加转角飘窗。


7#楼效果图(调整前)↓

7#楼效果图(调整后)↓

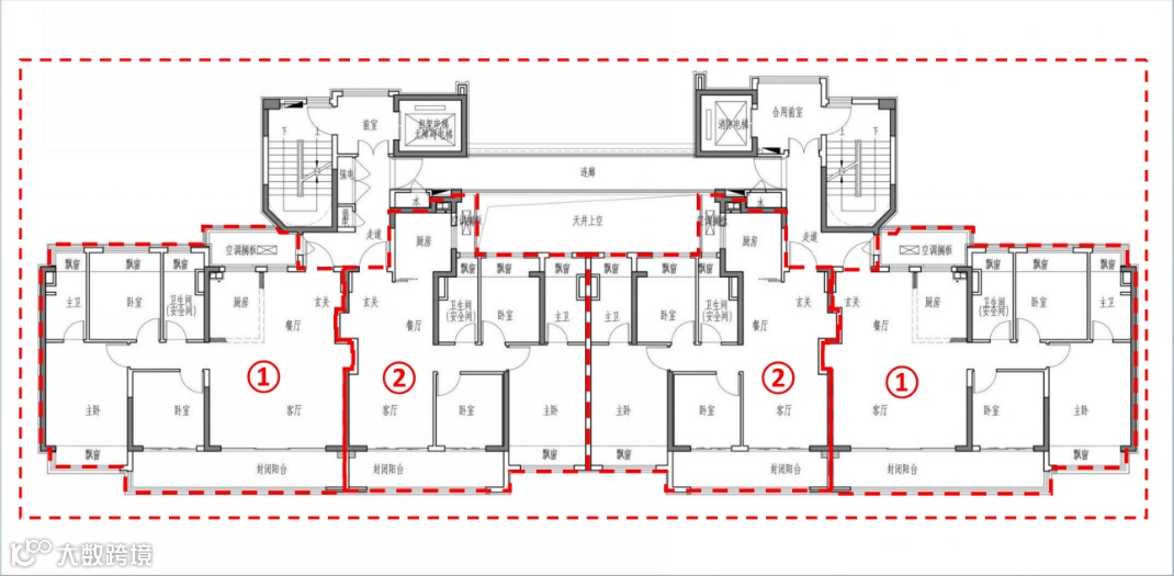
11#楼:取消原消防控制室和物业用房功能,建筑户型调整。
①端户约89㎡三室两厅一卫调整为约118㎡三室两厅两卫;
②中间户约89㎡三室两厅一卫户型调整为约99㎡三室两厅两卫;
一层平面(调整前)

一层平面(调整后)

标准层平面(调整前)

标准层平面(调整后)

约89㎡三室两厅一卫端户平面(调整前)

鸟瞰图(调整后)

