刚刚!南站、南部新城、江宁核心区低密地块上架,供应潮来了!
楼市科学家
怕啥来啥,马上到年底了,国土局开始冲指标了。其中,南站和南部新城,首当其冲!
南京市规划和自然资源局官网发布了一个消息:《南京市铁路南站地区控制性详细规划》MCd080—08规划管理单元图则修改(公众意见征询)。这个规划,就涉及到南站的一块住宅地块。

这块地,位于南站西南侧,秦淮新河的北岸,环境还是非常不错的。
这块地调整的重点是:一些功能发生了改变,更重要的是,容积率大降!从原来的3.0左右,一下子降到了1.8,小高层走起。

另外我们看到,这块地的西侧,多了一点绿地,地块的面积稍微缩小了一点。
我们知道,一般规划做了调整,意味着这块地距离上市已经不远了,而且已经找好了下家。
今天下午,我去拜访南京一个活跃的开发商,负责人正好跟我聊起了这块地,说8月份有关部门就找他们托底,后来这事不了了之。没想到还没聊完,这块地就要上市了,很明显,这块地不是这家房企托底,应该是找到其他房企了。
现在的南站,目前格局比较明朗,三家争霸,其中悦著九章势头很猛,最近几个月成绩很好,格外亮眼。另外两家目前去化一般。
这块地面积5公顷左右(5万㎡),容积率1.8,未来平均户型130㎡的话,会为板块提供700套房子左右,体量还是相当大的。
南站的楼盘,还是要抓紧去化,后面新的产品上来,大家都不容易,还是要警惕了!
除了这块地之外,南站片区前期还推出一块低密别墅用地,
这块地位于双龙大道西侧(7-08地块),容积率1.1,推了很长时间了,无奈还没有找到下家,所以最近动静不大。
有家住双龙别墅的的粉丝跟我说,他住双龙别墅已经厌倦了,能不能直接换到旁边空地上的新房子?以旧换新,或者干脆拆迁也行...

只能说,这位粉丝想得很美。新楼盘的品质,跟老楼盘,已经有本质的区别了!
不管怎么样,反正明年南站保底有1-2个新盘,这一点问题不大,大家可以小小地期待一下了。
这块地拿出来,意味着南部新城东侧的几块地,全部出来了。从最南侧的润鸿府,到博雅和著,到奥体建设G77,再到要推的新地块,然后就是文渊府,南部新城东片区就闭环了。
这块地,位置还是相当不错的,唯一的问题是,与G77和博雅太近了。博雅应该还好,等这块地上市,博雅大概率已经卖完了。
这块地的杀手锏是:容积率1.2,应该都是纯洋房产品。而且ZF已经把未来的规划给你搞好了,这个规划也有可能改,但八九不离十。
为什么?因为南部新城既限高,又有其他红线,你能发挥的空间很少。其实容积率1.2能做的产品形态很多,做叠墅不行吗?是可以的,但条件有限制,想来想去,还是洋房合适。

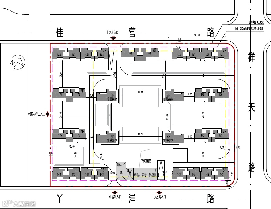
那么这块地,做多大的洋房合适?有关单位也给出了意见:这张图已经很清楚了。
外围的4栋楼,全部是143㎡,占比极高。(契税分界线是140㎡,略尴尬),这说明即便是容积率降低了,未来市场上还是存在不少的143洋房户型。
两侧的4栋楼,全部是175㎡户型,而中间的4栋楼,直接210㎡,一层一户。而北侧中心位置,配置的是195㎡户型。
你看,服务就这么到位 ,你还没开始拿地呢,人家把设计方案都给你安排得明明白白。另外有人问这些洋房几层?大概6-7层!
这个排布,应该是兼顾了限高、容积率等各种因素。南部新城的低密洋房,肯定是受欢迎的,唯一的悬念是:预算1000多万后,是不是一定要在南部新城买?这一点是一个问题。
另外给大家透露一个消息:东山中心位置的,文靖路地铁口的一块地,名花有主了。
这块地在 9月份改了规划,位置极为优越,在老东山算是一个非常好的区位了,土地面积也不小。

现在这块地应该也快端上货架,就等着走流程了,反正有人要了!
今年以来,南京核心地区的土地供应很少,尤其是中产盘太少,导致一些买房人慌了。目前看南京确实在有意无意地压缩中产房源的供应,但也不是完全没有。今年年底到明年1季度,南京还是有一些好地要拿出来的。
另外从部分房企的反馈来看,8月份是南京土地最卑微的时刻,那时候态度很好,什么都可以谈。9-10月份,南京整体去化还不错,有关部门的信心又起来了,土地价格的谈判,态度又有点强硬了...
你看,形势比人强,市场好了,卖方强势;市场差了,买房强势;一切都跟着市场走,谁也别说谁。而买房人也在经历这个过程,8-9月份,很多价格都可以谈,可以随意压价,只要不随意打骂销售就行,现在一些盘明显收回优惠,态度也开始强硬。已经有多个楼盘的负责人向我反馈:
那些就想捡漏、就想抄底、就想着压价、光看不买的老baby们,一律标注为劣质客户,不在他们身上浪费时间了...
楼市科学家
南京楼市大脑,科学研究楼市