就在刚刚,南京顺利拍出9块地,非常丝滑,全部顺利成交,稳中向好!南京赢麻了!
这些地块出让之后,那么南京今年的土拍金额,突破了500亿,现在手上有钱了。
从地块上看,有两块地还经历了激烈争夺,氛围燃起来了!
让人没想到的是,被激烈争夺的,不是安德门,不是南站,而是偏远的板块。江宁滨江G75和江宁未来科技城G76两幅地块溢价成交,其余9幅地块火速底价成交,上演“一轮游”,颐居拿下安德门地块。
大家注意,被争夺的地块,江宁滨江被徐州房企争夺;而上秦淮G76呢,被盐城房企拿下。着实令人意外!苏北老乡给南京送钱,欢迎!

图源:凤凰网南京站
素材来自江苏土地!
11月21日,南京土地市场网发布2024年宁出第20号出让公告,挂牌推出9幅涉宅用地,包含纯住宅用地7幅、商住混合用地2幅,总用地面积约41.24公顷,起拍总价82.54亿元。其中雨花台区1幅、栖霞区1幅、浦口区2幅、江宁区5幅,涉及城南安德门、南京南站,城北兴智以及江宁的高新园、紫金山科技城、滨江新城,浦口桥林7大片区。
值得关注的是,安德门、南京南站两幅低密宅地有着较高的市场关注度,江宁主城东山、紫金山科技城、滨江新城3幅地块内所建房屋部分或全部将由指定单位定购。
该批地块将于12月20日上午9:30开始网上限时竞价。
地块四至:东至迭翠路,南至映红路,西至丽泽路,北至莺啼路
地块所在的江宁高新区方山南部片区,将规划打造“一带两链三区”的规划空间结构,北侧为方山风景区,生态环境优美;西侧为上秦淮湿地;吉印大道、弘景大道、正方大道等主干道环绕,对外交通便捷。G65地块西北侧紧邻今年9月成交的NO.2024G33地块,该地块由南京苏城地产集团有限公司以9.4亿元摘得。
地块紧邻江宁大学城,南外方山校区、天印山医院等,公共配套设施齐全,周边有中海方山印、中海观山樾、中海和山、远洋方山望等多个已建成高品质住宅区,周边生态环境优美,人文气息浓厚。北侧不远的商业地块是大型仓储式连锁超市开市客,今年5月28日已正式营业,极大地丰富片区内的商业配套。
地块名称:浦口区桥林街道景天路以南、双峰路以西地块
地块四至:东至双峰路,西至沧浪路,南至兰北路,北至景天路
地块中商业建筑面积占地上总建筑面积10%-20%。商业须独立设置,不得设置于住宅建筑底层,不得配建酒店式公寓。
地块名称:浦口区桥林街道兰北路以南、双峰路以西地块
地块四至:东至双峰路,西至沧浪路,南至兰花塘路,北至兰北路
地块中商业建筑面积占地上总建筑面积10%-20%。商业须独立设置,不得设置于住宅建筑底层,不得配建酒店式公寓。
G66、G67两幅地块所在的桥林新城是南京市国土空间总体规划确定的九大新城之一,地块临近地铁S3号线兰花塘站,周边有芯城汇商场,有规划中学、小学及幼儿园等教育资源。地块周边拥有丝兰湖公园、百合湖公园等绿色景观,未来生活配套丰富。
两幅地块周边西侧为丝兰湖芯城汇商业,北侧为开发区智慧谷,东侧为大吉铁塔制造公司,南侧为配套规划初中、小学、幼儿园及基层社区中心。片区有已建成交付的商品房时代艺境、水沐云筑,以及近两年出让的NO.2023G58、NO.2024G41住宅地块,这两幅地块均由芯源地产摘地。G41地块为今年9月12日成交,成交总价6.1亿元。
地块名称:江宁区滨江开发区长兴大街以西、昌顺路以北地块
地块四至:东至长兴大街,南至昌顺路,西至嘉业路,北至普惠路
该地块内所建房屋全部由南京江宁滨江经济开发区管理委员会(或其指定单位)定购,竞得人须在签订土地出让合同前与江宁区人民政府、南京江宁滨江经济开发区管理委员会签订《房屋定购协议》。
地块位于江宁滨江开发区,为省级经济开发区,片区承接河西,雨花台,具有对接长江经济带战略和长三角一体化战略的重要价值。去年12月底,江宁滨江商品房房票安置启动,鲁能硅谷公馆、中北三盛汝悦铭著、大华锦绣前程、新城云漾滨江经两轮房票安置工作,新房库存告急,在今年南京全市整体平淡的市场情况下,江宁滨江去化流速、周期等均优于全市平均水平。
片区上一次出让宅地为今年9月29日,中建国际以总价15.86亿元竞得江宁滨江G35、G36、G37共3幅地块,首入南京。与上述3幅地块同样的是,本地块内所建房屋也将全部由南京江宁滨江经济开发区管理委员会(或其指定单位)定购。
地块名称:江宁区未来科技城凤仪街以东、明关路以南地块
地块四至:东至现状,南至现状,西至凤仪街,北至明关路
该地块内所建房屋全部由南京江宁经济技术开发区管理委员会(或其指定单位)定购,竞得人须在签订土地出让合同前与江宁区人民政府、南京江宁经济技术开发区管理委员会签订《房屋定购协议》。
地块位于南京紫金山科技城,本月初,根据江宁区政府官网发布《关于南京未来科技城名称变更的公示》,其中明确,据相关规定,因管辖范围发生变化,拟将原“南京未来科技城”更名为“南京紫金山科技城”。片区地处南京南站至禄口机场发展“金轴”与东南科技创新环“银带”的交汇点,距高铁、机场均只有十五分钟车程。地铁3号线、机场高速、绕城高速、双龙大道快速路环绕,区位交通条件优越。
地块紧邻上秦淮生态湿地,自然环境优越,周边有砂之船奥特莱斯、上秦淮小学东外分校、未来科技城初级中学(拟建)、江宁妇幼保健院(江宁国际医院)(在建)、地铁三号线和风路站(在建)、电影小镇街区,生活配套完善;周边已建成紫郡府、铂悦府、芳原等多个高品质项目。该地块内所建房屋全部由南京江宁经济技术开发区管理委员会(或其指定单位)定购。
地块名称:江宁区东山街道文靖路以南、东沟巷以东地块
地块四至:东至东园路,南至芙阁路,西至东沟巷,北至文靖路
(1)地块内所建部分住宅(239套)由南京江宁国有资产经营集团有限公司(或其指定单位)定购,竞得人须在签订土地出让合同前与江宁区人民政府、南京江宁国有资产经营集团有限公司签订《房屋定购协议》。
地块位于主城东山片区,距离重要交通核心节点南京南站直线距离4.4km,车程10分钟,距离禄口机场、新街口商圈、夫子庙等均在半个小时车程,交通便利。
地块紧邻城市主干道文靖路,距离南京支线绕城高速入口5分钟车程。地块紧邻在建5号线文靖路站,未来公共交通便捷。地块临近江宁区政府,公共配套完善周边有实验小学、秦淮高级中学等优质教育配套,南侧为江宁医院,西南侧为万达广场。同时,地块周边拥有东山公园、竹山公园等景观资源,生活氛围浓厚。
该地块内所建部分住宅(239套)由南京江宁国有资产经营集团有限公司(或其指定单位)定购。
地块名称:江宁区东山街道宏运大道以南、绿都大道以西地块
地块四至:东至绿都大道,南至滨河路,西至农花路,北至宏运大道
地块位于南京南站片区南端,紧邻秦淮新河,步行1公里内可尽享南站商圈百万商业繁华,楼下即滨水绿地公园、秦淮新河百里风光带,自然环境优越,坐拥南站板块重要的文化、生态、休闲长廊,同步享有自然景致和城市生活带来的美好体验。
地块西侧有现状社区服务中心,北侧有万科都荟天地城商业综合体、绿地之窗、证大喜玛拉雅商业中心,可为周边居民提供便利的公共生活服务配套。地块所在片区已建成宏运幼儿园、滨河幼儿园、南京晓庄学院滨河实验学校(小学部、初中部)、南京市东山高级中学(南站校区),教育配套资源十分完善。
地块邻近高铁南京南站,地铁1号线、3号线、S1号线、S3号线在此交汇,轨道交通出行优势显著,可快速通达全市各片区。地块北侧为宏运大道快速路,东侧为主干路绿都大道,西侧为农花路,南侧为映淮街,居民可慢行、公交、机动车等多种交通方式便捷出行。
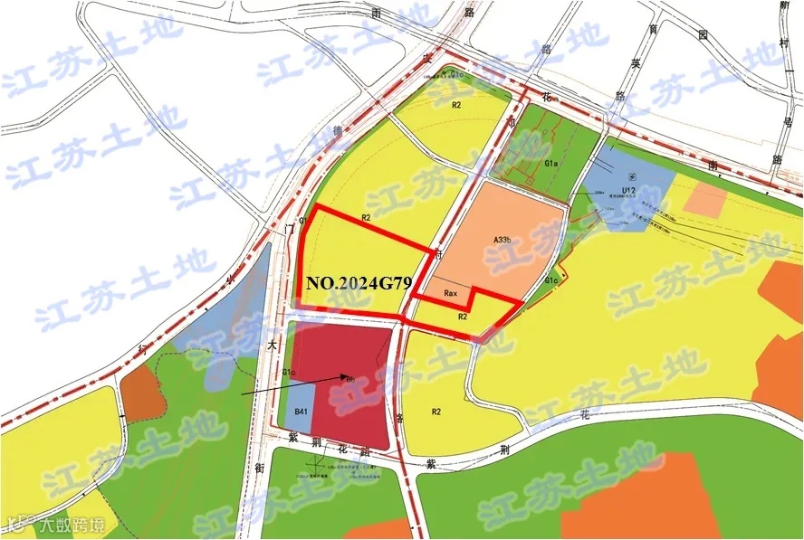
地块名称:雨花台区赛虹桥街道安德门大街以东、规划支路以北地块
地块四至:东至现状,南至规划支路,西至安德门大街,北至现状
出让面积:53944.39㎡(含仅出让地下1363.88㎡)
地块位于雨花西路人文发展轴、雨花台区北门户,北侧2公里范围内有虹悦城,南侧2公里范围内有雨花客厅、宜悦城,西侧3公里范围内有金鹰世界、河西金融城等众多大型商业综合体;东西两侧紧邻雨花台、菊花台公园,东北侧将打造邓府山文化公园。
地块所在的安德门组团地块将配建一所30班初中,已引进金陵中学,计划 2026年完工;配建9班幼儿园、24班小学各1所。本次挂牌的G79地块为安德门组团地块中率先出让的住宅部分。地块紧邻地铁换乘枢纽安德门站,三条轨道交通线路在此交汇,其中:地铁1号线、地铁10号线已通车,地铁10号线二期在建。
地块周边具有产业高端集群化、人口年轻化等健康发展趋势。住房功能上,向南可承接软件谷溢出的改善需求;周边配套上,向北可弥补老城南等老城板块的品质居住要求;购买力优势上,向西能填补河西新城科技园、金融城等价格差异化的需要;资源稀缺性上,向东可与南部新城、南站等板块形成优势竞争。
地块名称:栖霞区燕子矶街道兴智中心西片区恒竞路以北、兴建路以东地块
地块四至:东至规划经十二路,南至恒竞路,西至兴建路,北至规划纬六路
地块所在的南京经开区兴智中心片区,将结合兴智路地铁站,依托兴智科技园及周边片区,重点发展商务办公、科技研发、产业服务、商业服务、酒店、公寓等功能打造整个新港片区的产业综合服务中心,建设南京经开区的城市客厅,打造一座拥抱生活的共享之城、活力便捷的宜居之城、面向未来的创新之城。地块临近在建地铁6号线兴学路站,紧邻绕城公路、栖霞大道等快速路和恒竞路景观大道,出行便捷。
地块位于兴智中心片区综合服务核两侧,周边规划有多所小学、中学,栖霞大道南侧有太平山公园、姚坊门文体公园和金地峯汇中心商业综合体,公共生活配套较为完善。地块周边有多个在建、在售住宅项目,区域市场关注度较高。区域内高净值产业人口丰富,居住需求较为丰富多元,可为地块的开发建设提供良好的需求支撑。
地块周边有去年8月成交的G48地块,以及今年8月30日成交的G18地块,均由南京经东置业有限公司分别以总价9.5亿元和10.9亿元底价摘得。
