昨天,南京的朋友圈又被一个楼盘刷屏了:金基山和月!

这个盘,位于紫金山下,距离山体只有900米,是妥妥地紫金山盘。这个盘从去年拿地的那一刻起就备受关注,很多富人都在等这个盘。
现在随着这个项目信息越来越多,很多豪宅最担心的事情终于发生了:富人购买力,要被它吸干。
1. 整个城东的改善,要被山和月吸干:
城东也好,仙林也罢,现在好的改善不多。一些千万级别的大平层,分布在仙林湖附近,也不便宜。现在山和月出来后,你觉得富人会怎么选?他们会头也不回地选择紫金山。山水强太多,地段近太多,品质更是高出一个level!
2. 整个城北的改善,要被山和月一网打尽
从鼓楼北侧,到玄武北侧,再到栖霞区,目前看豪宅代表作不多。但区域的富人还是不少的,你让他们去河西,未必愿意去。现在山和月来了,势头已经挡不住了。
3. 鼓楼和玄武的老干部,权智阶层,他们很喜欢
仁者乐山、智者乐水,何况这还是紫金山,到哪找这样的房子?一些有身份、有地位的人,谁不想在紫金山下改善?
况且,山和月这个产品,应该说是金基的集大成者。它既有九月森林的墅居,又有瞻月府的园居,还能拥抱紫金山,南京罕见。


【185㎡户型示意】
这个户型曝光后,有人向我反馈,这个露台也不大啊。但如果你仔细来揣摩这个户型就可以看到,这套185户型,满足了城市圈层群体对于居住的所有想象。
大客厅,大阳台,大主卧,大飘窗,四房,四开间朝南,北侧还有家政间。南侧有观山露台。是的,人家的露台是看紫金山用的...这款户型,对于南京99.9%的家庭来说已经相当满意了。

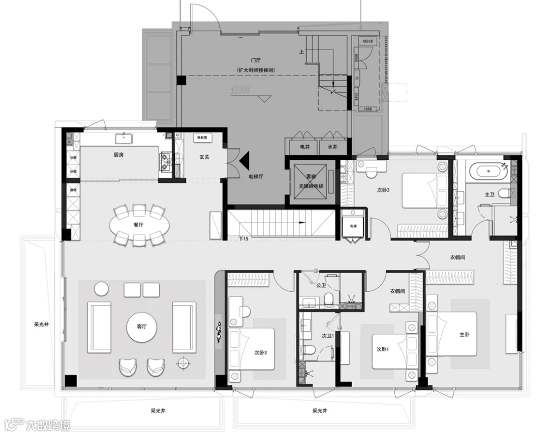
【230㎡底跃户型示意】
230底跃,1F示意图仅供参考,最终以实际呈现为准:

230底跃,-1F示意图仅供参考,最终以实际呈现为准:



