
买房选房,面积上的大小看个人的喜好,可是户型选择却不能那么随心所欲了,奇特的户型可能并不适合居住,而那些你认为千篇一律的户型却可能是经典、适合居住。那买房该怎么选?
不了解户型你怎么买房子?
从事这个行业之前对户型只有一个模糊的概念,印象中总是听到身边准备买房的人聊到这个名词,但是自己本身没有买房的经验,也没有买房的打算,所以每次听听就过去了。

对于户型的熟悉程度还不如经常听到的中国风水,风水是人们对居住环境进行的选择和处理,以达到趋吉避凶的目的。
虽然里面包含一些迷信思想,但终究是对于居住环境好的祈愿,后来做了这个行业,觉得两者倒是有共同之处。

▼
对户型有一个切身的认识是自己家换新房时候,一个120多平的三房,户型不常见,一开始还是猎奇心作怪,觉得挺好,不那么千篇一律,可是长辈们没有夸这个户型。
从事这个行业后认识到户型的重要性,再看那套房子,就有了新的认识。

(大概户型图)
进门右手边就是30多平的客厅,没有阳台只有一个外挂的飘窗,左手是餐厅和厨房。最明显的瑕疵应该是厨房的窗户和飘窗正对着。
洗手间甚至比旁边的次卧还大, 开间小,进深却很长,客厅、餐厅、厨房的“三进深”。
想想在这种户型的房子中生活,就明白户型对居住者的居住体验影响有多大。
房子户型看哪些标准?
选个好户型,是买房的重要步骤。房子户型好,是居住舒适度的重要保障。
▼
整体轮廓
这可以看出实际可利用的空间多不多,如户型图方方正正,有利于采光通风和空间的利用,基本合理。

(户型实例)
▼
窗户布局
窗户的分布和朝向直接影响采光和通风,决定了房子的舒适度。
▼
动静分离
动静活动路线是否合理,动区和静区的走动路径应该相对独立,没有交叉,两者各得其所。内部来看,静区是否满足私密性,卧室隐蔽性都比较好,客厅、厨房等活动区域不能直接看到卧室里面。
▼
尺寸比例
好的户型应该避免刚刚上面户型的错误——尺寸不合理,卧室、餐厅、客厅、以及阳台的比例应该更加贴合实际需求。
▼
干湿布局
常常提到的干湿分离,餐厅、厨房水渍多的地方应该和卧室区域隔开来。
以上这些方面均是在选房时要关注的点。
▼
拿下面这个户型为例。

户型整体轮廓上还算方正,基本每个空间都有窗户分布,通风有所保证。
但细看整个房子的空间布局并不合理,4室的房子只做到了3开间朝南,而且餐厅在整间房子的中心,无论去哪里都经过餐厅,动静路线重合且相互打扰。
水渍较多的餐厅与卧室分属干湿区域,这样的分布干湿不能完全分离。
整个房子结构缺少了入户玄关的设置,入户没有缓冲,对于居住者的私密性以及居住感受都有影响。同样影响私密性的还有东南位置的卧室,门不仅对着客厅,而且在靠北边的位置,不能保证通风需求。
刚刚说了进门没有缓冲的问题,但有的地方却缓冲过多,北面的小卧室进门前过道太长,影响美观与居住感受。
看了那么多相信大家已经明白,在看户型的时候不能够仅仅看一个方面,而是要每个因素都要关注。
中锐星湖名邸户型好在哪? 学会这么看
说了那么多,小编也带大家看一个实例。百家湖板块的中锐星湖名邸受到市场好评,除了配套,户型也被屡屡提及。
项目有107平的三房,以及132平、141平的四房3种户型。在目前现代生活背景下,三、四房户型已经成为改善型客户的主流选择,可以说中锐星湖名邸项目产品是非常实用的。
107户型

(107平)
107平是项目最小的户型,3房2厅2卫的设计,3开间朝南,大开间短进深,南北通透。
▼
主卧、次卧,以及客厅均是朝南,大进深的阳台在107平的户型中十分难得。每个独立空间都尽量配有窗户,包括洗手间都有窗户的设计,保证了独立的通风。
▼
在空间设计方面,动静分离。可以看出区分了居住动线、来客动线和家务动线这三条动线。两个卧室相邻,与厨房、客厅、餐厅之间没有交叉使用的区域,这就是居住动线,能生活保持一定的隐私。
▼
厨房和客厅空间也是分割开来,来客动线和家务动线互相不打扰。只有在餐厅的设计上有点瑕疵,在居住动线、来客动线和家务动线3线之间,不够独立,不过进门玄关的设计给了很好的缓冲。
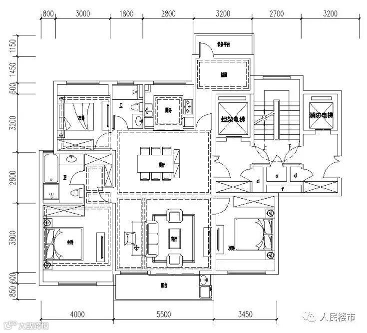
132平、141户型

(132平)

(141平)
▼
132平、141平的四房户型设计为四开间朝南,3个卧室均是南向。两个户型并没有明显区别,只是部分空间大小不同。
▼
主卧与书房相邻,便于业主使用的同时,又不会对其他区域活动造成干扰。而客卧则贴心的安排在了房间右侧,虽然距离客卫较远,但是可以保证空间独立,注重居住者的私密性。
▼
与上个户型不同的是动区,包括客厅、餐厅、厨房和次卫等活动较为频繁的区域靠近入户门,而静区,卧室、书房、主卫等位于户型内侧区域。
▼
厨房与卧室分离,作为家居生活中最主要的污染源,厨房远离客厅、卧室。又与住宅中水管同样集中的卫生间相邻,干湿分区这部分做的不错。

从风水的原理来看,一个好的户型对于居住者何尝不是“好风水”的一种,虽然不说趋吉避凶,但至少保证空间结构利用效率,以及居住者的居住心情。


