
位于地铁二号线马群站旁的马群综合换乘中心,是南京首个引入综合开发模式规划建设的区域停车换乘中心。3月10日,南京市规划局官方网站公示了该地块的规划设计方案,今年将开建,预计2019年建成。

效果图
规划显示,这里将成为同时拥有城市地铁、有轨电车、公交、小汽车、出租车、自行车等多种交通方式的综合换乘枢纽。
未来这里是一个集交通、商业、办公、居住、文化为一体的城市综合体。

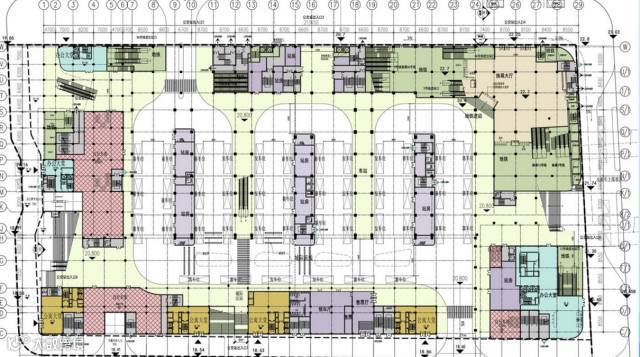
现有规划设计方案总建筑面积约22.7万平方米。为了方便市民停车,除了满足各项功能必须配建的停车泊位以外,还增设了面向社会开放的P(停车)+R(换乘)停车泊位500个。
据了解,马群换乘中心今年开建,预计2019年建成。

首层平面图
在此次公示的平面设计图上可以看到,地面一层设置有大型公交枢纽站和换乘大厅等。
换乘中心则位于现有地铁2号线马群站南侧,以后,市民换乘地铁线,可以从2号线马群站出来,通过地铁连桥,换乘S6宁句线、地铁12号线及其他地铁。

马群综合换乘中心是一种典型的P+R交通换乘系统。建成后,城东的市民可将车停在这里,再转乘公共交通工具到市中心。
宁句城际即将开工,这条线路的起点在马群;明年建成通车的麒麟有轨电车,也是把起点设置在马群;还有明年通车的地铁4号线和现有的地铁2号线……
马群将成为南京城东地区居民出行的综合换乘中心。
转自南京区街一号
综合南京市规划局、现代快报


