
当下,南京哪个板块的房子难买?买房人最先提到的就是河西。可你想不到的是,与河西相邻的鼓楼滨江,竟也有4个多月没出货了!

鼓楼滨江楼盘一览
1
超4月未推新 鼓楼滨江库存已见底
今年上半年,鼓楼滨江板块6家楼盘共推出了1730套住宅房源和205套公寓。当下,板块内除了一些140平以上的大面积户型和类似恒大滨江48平超小户型住宅外,其余面积段住宅已基本售罄。

鼓楼滨江上半年开盘情况一览
上半年开盘潮过去后,鼓楼滨江就陷入了长达4个月的沉寂。不少项目住宅房源清盘在即,开发商似乎并不想着急加推。以龙湖春江紫宸为例,根据南京网上房地产消息显示,项目最后一幢住宅(10号楼)的加推时间要到2018年的6月份!

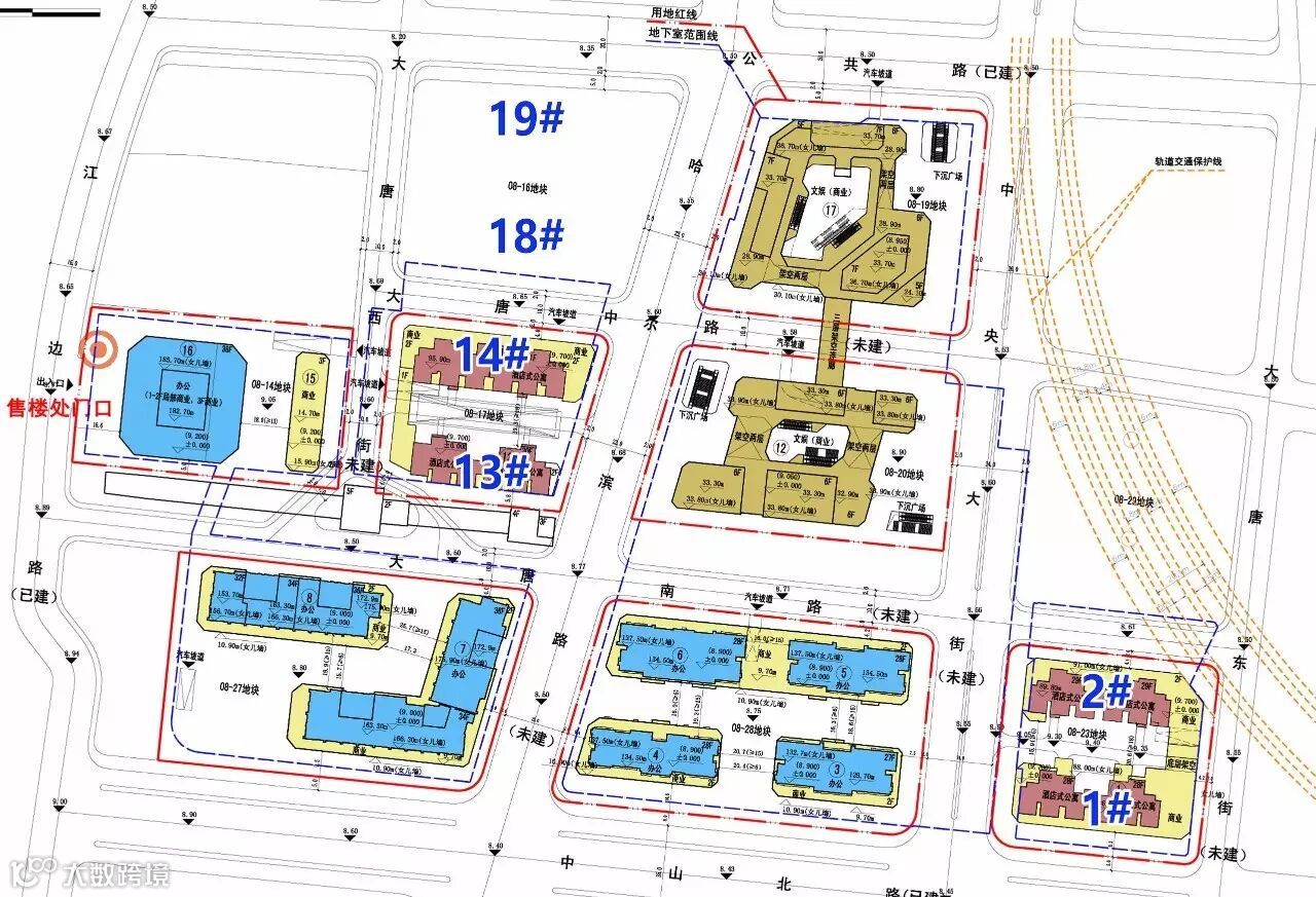
恒大滨江在推出了13#、14#、18#、19#楼4幢住宅后,项目仅剩在1#、2#楼2幢住宅。目前1#、2#楼已经动工,但是这两幢住宅何时能够入市尚未可知。

恒大滨江规划(蓝色为公寓,橘黄色为商业)
2
“金九银十”鼓楼滨江3项目有望入市
那如果想置业鼓楼滨江还有没有机会呢?据我粗略统计,近阶段只有证大阅公馆、中冶盛世滨江锦绣公馆和江山汇悦山府这3家近期有加推计划了。
证大阅公馆位于大观天地mall旁,有“江南第一楼”美誉的阅江楼近在咫尺,证大阅公馆是鼓楼滨江板块内众多65年产权公寓中视野最好的一个。据悉,项目近期首开推出A、B两栋楼,其中A栋26层,125套房源,B栋33层,288套房源。户型面积为76.6-113.3平米5种,放风售价3.5万元/平。

证大阅公馆效果图
创造了鼓楼滨江房价天花板的中冶盛世滨江前期已经推出了锦绣江山和锦绣华府两个组团,目前项目仅剩锦绣江山少部分40年产权公寓项目在售。
中冶盛世滨江预计9、10月份加推新组团——锦绣公馆,其中65年产权住宅面积段在85-120平米,70年产权住宅面积段较大,为140-230平米,具体套数和价格尚未确定。

中冶盛世滨江效果图
7月初,鼓楼滨江一平时不为大众熟知的项目——江山汇悦山府,公开了售楼处和样板间。江山汇悦山府位于地铁3号线上元门站旁,项目南面幕府山、北靠长江,是鼓楼滨江少有的依山傍水项目。
江山汇悦山府总体量约65万方,涵盖了商业、办公、酒店、公寓、高端住宅和景观平台。其中,住宅部分为2幢电梯洋房和7幢小高层。据了解,项目预计9月或10月首开小高层房源,面积约为79、93、96、139㎡,共399套房源。

江山汇悦山府效果图
3
小桃园3家高端改善盘今年不开了
其实鼓楼滨江除了刚才提到的几个楼盘外,还有不少定位高端改善的项目正蓄势待发。
鼓楼滨江小桃园一带是南京继河西中部之后比较著名的富人区。早些年,锋尚国际公寓、天正桃源等项目皆是区域标杆,现在,锋尚国际公寓二手房挂牌均价为4.5万元/平,而天正桃源二手房均价已经超过了5万元/平,远高于板块新房价格。
但是,土豪们想在小桃园买到新房,恐怕还得再等上一阵子,因为这儿的3家纯新盘,似乎都得上了“拖延症”,开盘之日遥遥无期。
位于三汊河桥旁、秦淮河畔的中海桃源里,项目总建筑面积约11万平米,共规划了7幢小高层,6幢住宅及1幢酒店式公寓。户型面积大多为140-195平米的全四房改善型大户。
从今年3月份在德基、环宇城、河西万达设置展点,到4月份悄然公开售楼处之后,中海桃源里就没了动静。前阵子去鼓楼滨江踩盘时,发现项目有些楼栋已经接近封顶,原计划5-6月份首开,然而并没有。有小道消息称,项目预计今年不会上市了。

中海桃源里现状
当代万国府ΜΟΜΛ,今年4月份与中海桃源里同期亮相,目前售楼处已经公开,但是首开时间尚未确定。当代万国府ΜΟΜΛ规划建设3栋小高层住宅和4栋商业,共140套户型面积在230-250平米的科技精装住宅,剑指河西客群。

当代万国府ΜΟΜΛ现状

当代万国府ΜΟΜΛ沙盘
鼓楼滨江地王项目——招商G01地块目前正在建设售楼处,该地块将由招商、仁恒和保利三家共同开发,并由仁恒操盘。项目疑似定案名为仁恒桃园世纪,据了解,产品将对标河西江湾城,不过该消息尚未获得开发商的确认。
鼓楼滨江G01地块规划共有4个部分组成,住宅4-16层不等,去年3月,招商以48.2亿元总价拿下该地块,楼面价29899元/平,成为鼓楼滨江的单价地王,项目预计今年年末正式亮相。

招商G01地块现状
老下关已经在南京的版图上消失了4年,变身后的鼓楼滨江正火速崛起。800亿重金打造的鼓楼滨江商务区,将重现昔日辉煌。既有深厚历史背景,又有前瞻规划的鼓楼滨江获得了越来越多南京买房人的认可,置业鼓楼滨江,你准备好了吗?



