搜索
首页
大数快讯
大数活动
服务超市
文章专题
出海平台
流量密码
出海蓝图
产业赛道
物流仓储
跨境支付
选品策略
实操手册
报告
跨企查
百科
导航
知识体系
工具箱
更多
找货源
跨境招聘
DeepSeek
首页
>
150㎡现代极简,高级黑白灰,无法拒绝的美!
>
0
0
150㎡现代极简,高级黑白灰,无法拒绝的美!
德雕装饰福州分公司
2020-01-15
1
导读:回归生活最初的模样
这是一套150平米的现代风格装修案例,整体空间以高级档次的黑白灰色调,搭配上优雅精致的质感与饰品,营造出一个充满艺术与优雅端庄氛围的空间感。
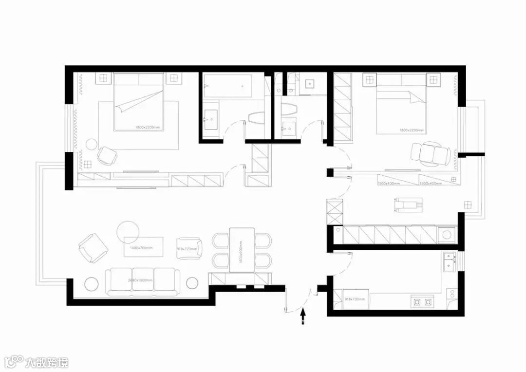
平面布置图
玄关
▲玄关在灰色地面布置基础,整体木饰面的墙面空间,搭配上一个暴力熊摆饰,简单整洁的布置,也透露出一种端庄舒适的现代感。
客厅
▲黑白灰空间的客厅,以粗犷自然的沙发墙,搭配现代优雅的电视墙,还有高级黑的皮沙发,营造出一种独特高档的现代大气感。
▲电视墙以亚灰色的
大理
石为背景与地台,右边还以灰木色的定制柜门与木饰面结合,装扮出一种现代优雅与实用结合的大方视觉感。
▲沙发墙是原始质感的岩石板为背景,挂上一个极简的框架钟,布置黑色的皮沙发,在这个现代高冷的空间里,带来的是一种高级的现代质感。
▲茶几与边几等细节处的精致小饰品,简简单单的布置,也无意间提升了空间的质感与档次。
▲电视墙边上的这个圆形落地音响,也为空间提供了时尚的体验。
餐厅
▲餐厅与客厅连贯的格局,灰色地面砖与木饰面、定制柜的墙面设计,布置上黑白配的优雅餐桌椅,让用餐氛围端庄而又华丽情趣。
▲灰色皮质坐垫的餐椅,餐桌挨着定制餐边柜,中间留空的展示架作为装饰品的放置位置,而一张黄铜质感的吊灯,还有餐桌上的镜面质感摆饰,也让空间显得更加端庄华丽档次。
卧室
▲木饰面床头墙以木色+深灰色竖条装饰,减缓了大面积木质感的墙面单一感,黑色皮质床铺,布置简约格纹床单,呈现出温润自然的睡眠氛围感。
次卧
▲次卧床头墙也是以木饰面为主,搭配一张米白色皮艺床,侧边以黑框玻璃推门作为衣柜门,整体设计简洁而又自然端庄。
▲黑色床头柜搭摆上简洁的绿植,搭配灰色窗帘,也显得更加的素雅端庄。
卫生间
▲卫生间在灰色调的地面墙基础,结合黑色质感的洗手盆与浴缸。在浴镜与壁龛等位置加入灯带藏光的设计,显得更加时尚雅致
杂物间
▲小杂物间摆着主人的藏品摆饰,也显得更加时尚精致。
— 长按识别获取装修报价 —
❤
微信后台留言
姓名丨联系方式丨楼盘丨面积
或联系装修
了解更多家装资讯
点击下方“阅读原文”查看更多精彩内容☺
【声明】内容源于网络
0
0
德雕装饰福州分公司
福州德雕装饰是一家立足东南,覆盖全国的整体家装企业品牌,我们企业的愿景:致力成为【中国高端】装修品牌公司!
内容
890
粉丝
0
关注
在线咨询
德雕装饰福州分公司
福州德雕装饰是一家立足东南,覆盖全国的整体家装企业品牌,我们企业的愿景:致力成为【中国高端】装修品牌公司!
总阅读
1.1k
粉丝
0
内容
890
在线咨询
关注