点击上方“德雕装饰福州分公司”
右上角“...”点选“设为星标”
点击加星★ 贴近你心 ❤

家无需很大,无需华丽
和温暖的人享受一辈子的小窝

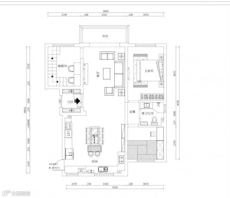
设计师重点对客厅进行改造,使得视觉效果更加通透。营造出一种自然舒适的质朴空间感,呈现出高档大方的自由气质。

平面布置图△
客 厅
温暖不期而遇

餐 厅
新味时所佳

厨 房
生活的浪漫与生机


卧 室
吵闹下的温暖与静谧


在温润的岁月里
记录每一刻幸福的对话
一同享受着家的静谧与美好
更多精彩推荐

— 长按识别关注我们 —
❤




