本案是一套面积为103平米的三居,屋主希望可以把去风格化、北欧+日式,原木,浅蓝和白色调、绿植等元素融入到家中,做到轻装修重装饰,且有身在城市住在森林的感觉 。
图赏

▲原始结构图

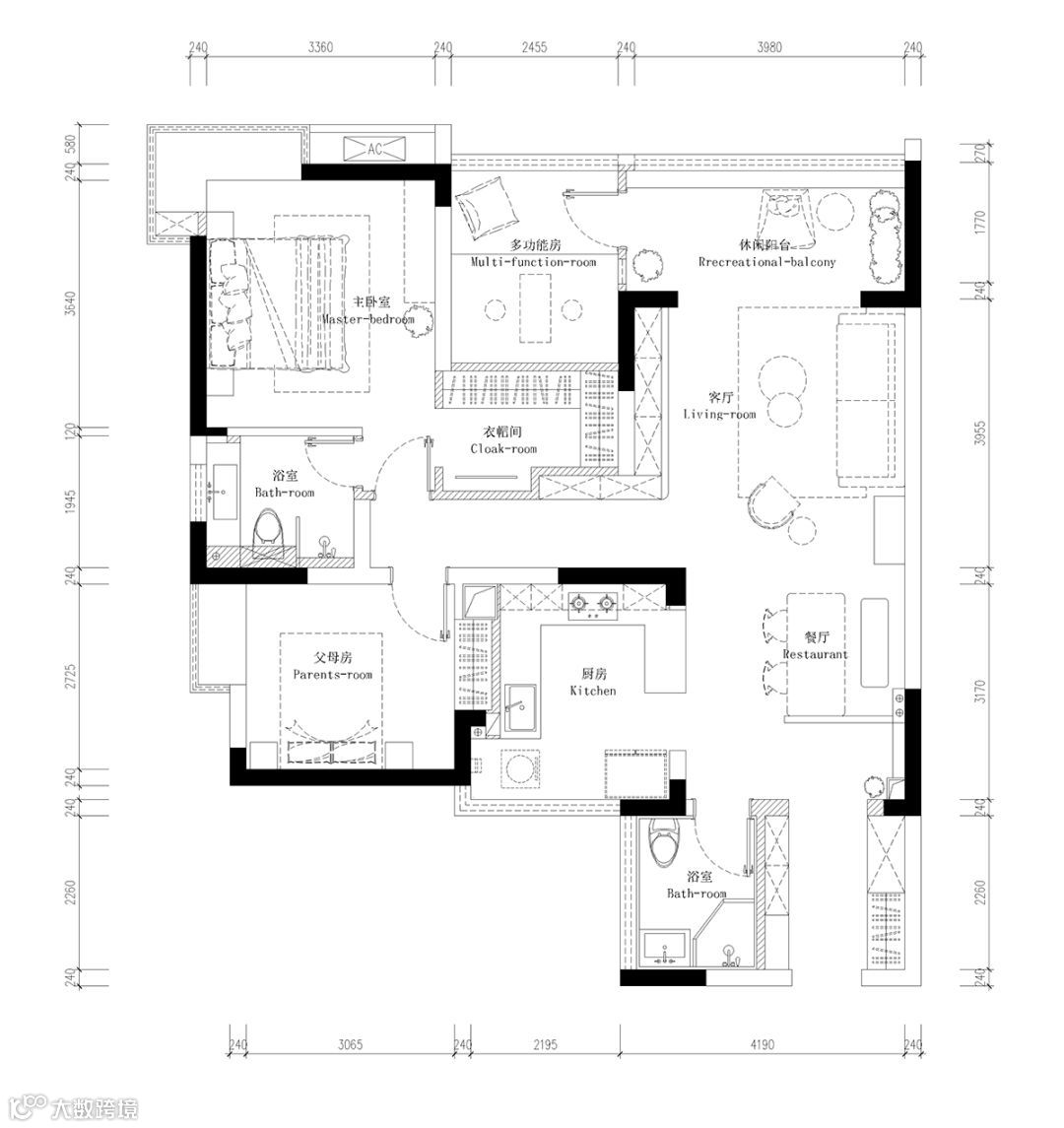
▲平面布置图
| 玄关 |

进门处的地面,专门做了一个非常规落尘区,不会将灰尘带入室内。玄关处增加整排储物柜作为收纳空间。

玄关与客餐厅增加长虹玻璃隔断,不影响通透性的情况下,又起到了视觉遮挡的作用,有效的避免了入户的一览无余。

黑板墙+隔板的设计,加上书籍与绿植的装点,让这个小小的角落,充满了文艺感。
| 餐厨 |

原木餐桌上记录着屋主们饮食生活习惯的点滴,春夏秋冬四季交替,在这个餐桌上记录着屋主一家的人生喜乐。

餐厅对面是半开放式的厨房,中间以一个小吧台相隔,增加了操作台面、收纳空间的同时,也增加了生活情调。

将生活阳台与厨房打通结合,功能性与采光都得到了改善。U型橱柜+吊柜+高柜,还有墙面的挂钩,厨房东西多也可以整洁有序。
| 客厅 |

拆除无用墙体,扩大了原始客餐厅的使用空间,整个空间呈现出简洁明朗,自然舒适,温馨家的感觉。

客厅与阳台打通,窗外的绿色背景跃然眼前,与室内的绿植相呼应,室内室外美景连成一片。

客厅幕布背景墙集收纳与装饰为一体,使原本狭窄的过道在视觉和使用上都显得更宽敞。

拉下窗帘,放下幕布,客厅就变成私人影院,享受难得的休闲时刻
| 书房 |

将原始书房一分为二,一部分成为了主卧的衣帽间,一部分空间与休闲阳台重组成为了现在集会客、书房、休息于一体的独立空间。
| 主卧 |

卧室床头背景墙的雾霾蓝满足了女主一开始对房屋的期许。其次这个低调的色调让真正休息放松的人们达到它最大的目的。

香薰机在床头散发着它独特魅力,为它的主人放松疲惫的灵魂。
| 次卧 |

次卧利用移动后的厨房墙体,使次卧原本狭窄的空间增加了嵌入式衣柜的空间,次卧作为父母或者亲朋好友来到家中的休息室。

床品与主卧背景墙色调相呼应,干净且温馨。床头的扎染装饰画是整个房间的点睛之笔。
| 卫生间 |

卫生间看上去简洁,却有很多细节的设计,比如长条地漏,壁挂马桶,壁龛储物柜、台上盆等,现代的设计感,舒适实用的功能,才是理想的卫浴空间。

次卫改造后视野上变得开阔,所有设施都整齐有序的摆放在这个空间内,卫生间右侧是一扇通向生活阳台的推拉门,保留了部分的生活阳台.
●● ●
—END—

点击下方“阅读原文”领0元设计省万元装修费☺


