
静享
美好
时光

new case
项目风格:现代轻奢
项目面积:120平
项目地址:融侨观邸
设计主创:陈隆建
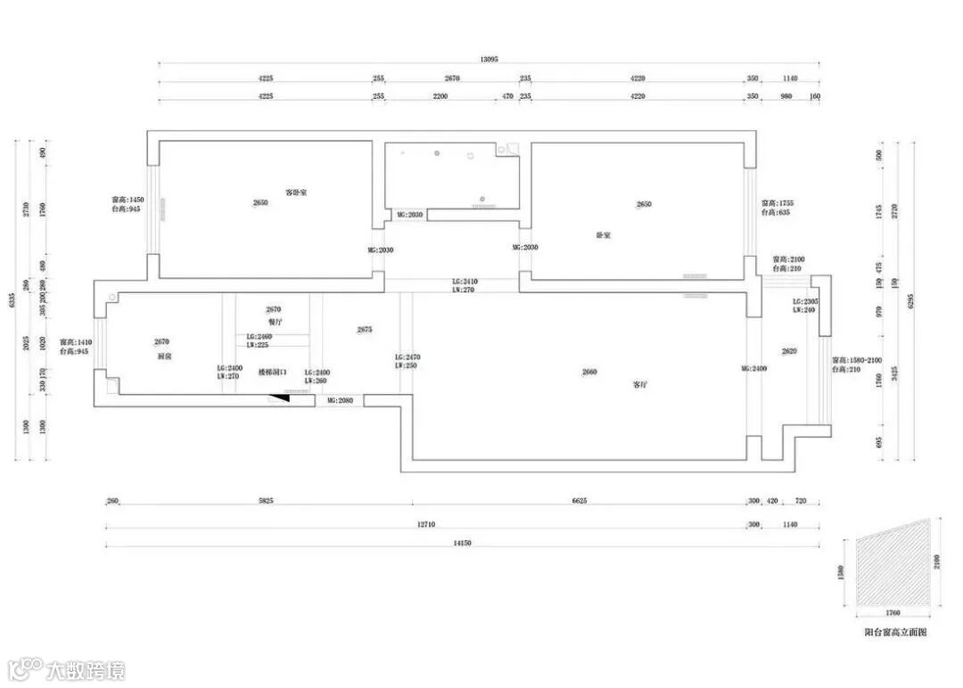
☆原始户型图☆

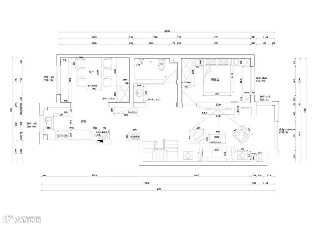
☆平面布置图☆

户型分析
本案是位于融侨观邸的一户复式,业主夫妻和他们2个孩子一起居住。业主是福州本地人,这是第一次装修,是朋友介绍的,喜欢现代轻奢
设计说明
1.客户女儿要平时练琴,希望在客厅的位置有个位置供孩子来练琴
2.色彩:在整体色彩搭配上,采用蓝色和橙色的搭配,时尚耐看,点缀其他的颜色让空间更加和谐统一
3.收纳:客户希望每个空间都有收纳元素的设计,来满足日常的生活需求
☆玄关☆

入户一进门,不浪费空间,做了组合柜用来增加收纳或者装饰,都是不错的选择,橙色的装饰画显得空间轻奢质感十足,小格子用来装饰收纳一举两得。
☆客厅☆
效果图
效果图
实景图
实景图
沙发背景墙采用最简单的线条设计,搭配金属元素,大气简约,对称的线条感,拉长了空间的视觉感受,轻奢落地灯,静谧。
大气沉稳又不乏时尚气质的家具陈设,与硬装的线条干净自然配合得天衣无缝,蓝色和金属元素的搭配,跃于高级灰之上,精致优雅感以一种自然克制的方式得以呈现。
☆餐厅☆
效果图


实景图
效果图


实景图
效果图在设计上原打算用线条设计的灯饰,爱马仕橙的搭配,高端大气,灰色大理石餐桌搭配墨绿色的金丝绒餐椅,让吃饭都变的有仪式感。
实景图考虑到日常生活打扫等因素,最终采用简单的灯饰,餐椅选择宝蓝色的颜色搭配
效果图

楼梯大理石设计,为了晚上下楼的安全,特意在楼梯安装了两个茶座,用来插小夜灯,细节额考虑真的处处都是惊喜。
- Designer
陈隆建

↓↓↓
点击查看年终活动详情
●● ●

点击下方“阅读原文”领0元设计省万元装修费☺


