美家信息
面积:65㎡
户型:二居
风格:原木风
设计理念:整体以原木为主,素雅的软装搭配+绿植,这个家自然又舒适,从客厅美到卧室!

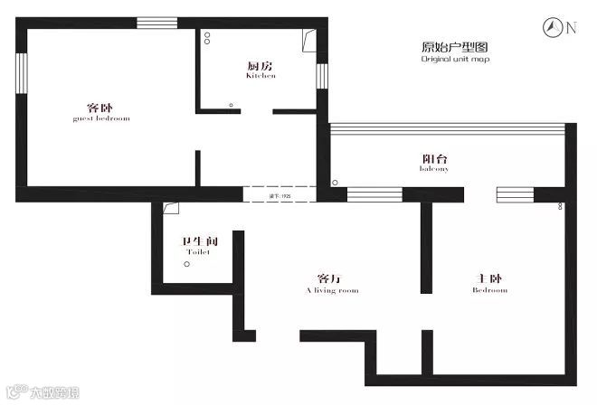
户型分析
1.整个房子都是一面开窗,空气无法形成对流。
2.客厅没有合理的储物空间,并且四面都有门洞,可以说整个客厅就是一个过道空间
3.电视没有合适的悬挂位置,采光也只能通过与阳台链接的小窗,相对来说光线比较差。
4.卫生间只有2.4平米,还要满足多功能需求,非常拥挤。
5.餐厅位置比较尴尬,小又没有采光,完全没办法使用。

户型改造
1.将客厅餐厅合二为一,原本的餐厅现在放置冰箱,洗衣机和洗手台,这样同时解放了厨房和卫生间的空间,可以满足洗手盘和马桶淋浴的同时使用,最大化的利用了原本的餐厅区域。
2.半开放式的厨房,铁艺推拉门既通透又时尚,并将光线引入室内。
客厅

木色和白色是最佳CP,就像沐浴春风,说不出的惬意和温暖。因为层高太矮的缘故,设计师在沙发空间顶部做了局部生态板吊顶,不仅使整个空间更有层次,还平添了一份时尚自然的风景。

阳台与客厅通道相连的窗户相互借景,同时满足客厅的采光和通风。如果每天都可以窝在柔软的沙发里,看宝宝嬉戏,追追剧,吃着老公刚洗好的水果,那一定是最美的气氛。

小户型设计的关键就是将空间物尽其用。比如卫生间的门,不仅仅只是门,也是一面全身镜,还能放射厨房透来的光,增加餐厅部分的光感。
餐厅

一抹绿色是不是瞬间感觉连呼吸都清新了不少~1.2米的餐桌足够这个三口之家的日常使用,金属质感的摆件,精致不言而喻,简单精致不就是现代人趋之若鹜的生活方式么,餐厅这一角更像是一个咖啡吧,悠闲自在。
厨房

原本的餐厅现在放置冰箱,洗衣机和洗手台。

u型厨房,利用了合理的动线,让空间更加的实用。文化砖+原木,让厨房更加的清爽,也显得更加的宽敞。上下柜设计,增加了收纳的空间,让厨房更加干净不杂乱。
主卧

卧室和阳台一起做成套间形式,不仅拥有了2.7米超大的衣柜,还有相对独立的办公休闲空间。原本的窗台也被做成了吧台的形式,情调满满呢~

孔雀绿的床头背景给了空间新的生命和活力,改善了空间狭长的视觉感受。
次卧

客卧便是简简单单,只如初见喽。
卫生间

卫生间仿天然石材的瓷砖,墙地通铺倒也有一种排列组合的趣味,时尚大方,减少了因面积小而带来的局促感。
●● ●

点击下方“阅读原文”领0元设计省万元装修费☺


