搜索
首页
大数快讯
大数活动
服务超市
文章专题
出海平台
流量密码
出海蓝图
产业赛道
物流仓储
跨境支付
选品策略
实操手册
报告
跨企查
百科
导航
知识体系
工具箱
更多
找货源
跨境招聘
DeepSeek
首页
>
77㎡小户型简约风,空间利用发挥到极致,大气舒适!
>
0
0
77㎡小户型简约风,空间利用发挥到极致,大气舒适!
德雕装饰福州分公司
2021-08-18
2
导读:高端整装首选德雕
装修,设计才是关键。一个好的设计方案,可以发挥每一平米空间的价值,让后期居家生活变得更舒适。反之就是各种不便,不是空间拥挤,就是收纳空间不足,再者就是清洁麻烦,让后期居家生活苦不堪言。这期案例就很好地诠释了设计重要性,同样是77㎡,我家小得可怜,他家三房住起来很舒适,真的是人比人气死人。
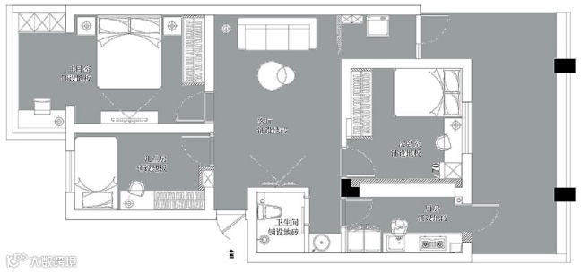
户型图
77㎡的学区房,房子是老式多层房,优点是公摊小,缺点是没有电梯,墙体多为承重墙,改造受限。设计上调整了厨房与紧邻卧室的空间比例,将墙体往卧室方向移动50公分,在不影响卧室空间的前提下,改善厨房紧凑格局
玄关设计
户型不大,没有独立玄关区域,开门见厅的格局。入户紧挨着儿童房,装修上做了隔断柜设计,平衡门洞尺寸又增加了入户区域的收纳,也不影响居家动线。分段式设计,让日常收纳变得轻松方便。
客厅设计
客厅以暖色系为主,墙面统一采用米色乳胶漆涂刷,视觉上更显舒适慵懒。顶面以白色为主,地面以灰色系地砖铺陈,空间层次感更明朗。黄色的沙发点缀,让空间多了几分活泼跳跃的气质。除了基础家具外,还摆放了一架钢琴,让孩子在家中也可以练习。
客厅与卫生间的隔断墙,变成了电视背景墙。尺寸不是很大,但也足够了。延用了米色乳胶漆,保持整体统一性。特意定制电视柜,保证尺寸一致,不长不短刚刚好。为了平衡视觉效果,左侧卫生间干区以深色系为主,不会显得突兀。
厨房设计
原有厨房比较狭长,设计上压缩了紧邻的卧室空间,将隔墙往卧室方向移动50公分,让厨房空间更宽敞一些。两一字型设计,拥有更宽松的操作台空间和收纳空间。为了避免空间压抑感,仅一侧做了长吊柜设计。
主卧设计
主卧慵懒舒适,墙面采用了屋主比较中意的米色,搭配一些深色原木家具,让空间拥有色彩对比,不单调空间又清爽。拆除推拉门,将卧室阳台合并,空间宽松采光也更直接。阳台两侧分别设计储物柜和梳妆台。
为了节省空间,衣柜采用移门设计,岩板色泽不仅耐看,也与空间格调相匹配。床头采用线性吊灯设计,多了几分线条美感,加上圆形吊灯设计,通过光源让卧室变得自由、随性。
儿童房设计
儿童房空间虽然不大,但功能配置还是很齐全的,同时满足了睡眠和学习需求。装修利用浅灰色搭配白色和粉色,明亮优雅又有几分可爱,很适合女孩子居住。窗帘采用卷帘的形式,避免了视觉臃肿体验,也可以灵活的空间采光。
另一间儿童房,同样的色彩搭配,不同的是家具换成了高低床,衣柜换成了移门,同时多了落地书柜。不管是装修还是实用性,都算得上无可挑剔了。
露台设计
厨房出来拥有一个小露台,墙面做了一些简单装饰,通过绿植和盆栽,让露台做了几分自然与生机感。休闲桌椅一摆,居家休闲好去处。
以上就是这期案例分享,尽管空间只有77㎡,通过装修实现意想不到的效果,带来一家四口的无限愉悦和对生活的热爱。
❤
关注并留言
了解更多家装资讯
免费量房验房,预约请留言
姓名丨联系方式丨楼盘丨面积
我们
将第一
时间
安排家装顾问和您联系
24小时为您解决你的家装需求
长按识别
免费获取最新家装报价
点击下方“阅读原文”领0元设计省万元装修
【声明】内容源于网络
0
0
德雕装饰福州分公司
福州德雕装饰是一家立足东南,覆盖全国的整体家装企业品牌,我们企业的愿景:致力成为【中国高端】装修品牌公司!
内容
890
粉丝
0
关注
在线咨询
德雕装饰福州分公司
福州德雕装饰是一家立足东南,覆盖全国的整体家装企业品牌,我们企业的愿景:致力成为【中国高端】装修品牌公司!
总阅读
1.5k
粉丝
0
内容
890
在线咨询
关注