「前言」
Preface
本次改造的是一个三口之家,原始户型是一个四居室,屋主希望改成三居室,女主人希望能拥有一个开放式的餐厨一体空间,同时因为只有一个卫生间,所以希望能够将卫生间做成干湿分离。关于风格方面,年轻夫妇一致喜欢简约的黑白灰的风格,希望能够最大化的利用空间。
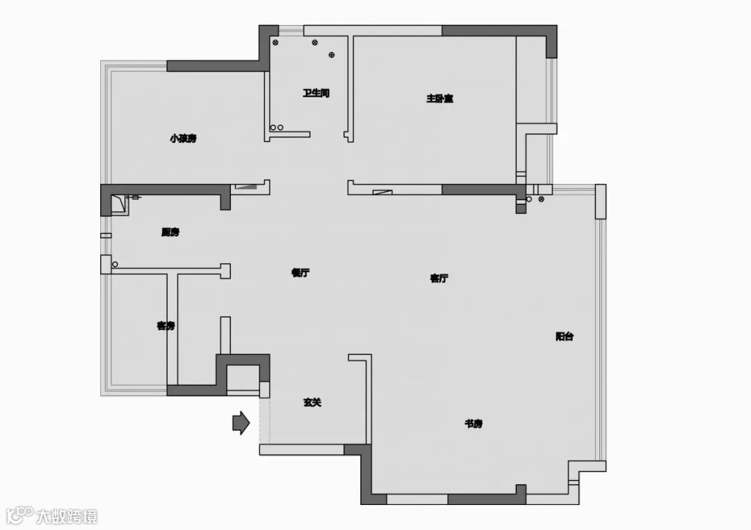
原始户型图
平面布局图
玄关
Porch
玄关在功能上设计鞋柜、换鞋凳、穿衣镜,门洞的位置做半弧形设计,鞋柜的收纳也考虑到底部镂空放置拖鞋、中间镂空放置包包、雨伞,当季换季鞋子的收纳。镂空的位置设计暖色灯带,增加氛围感。
客厅
Living room
整个公共空间以黑白灰的配色来实现,大面积使用奶白色,提亮空间,辅助以灰色、黑色,然后局部点缀棕色。
拆除电视墙墙体,利用剩余的承重墙来做悬浮电视柜,上下部镂空,让视线可以穿透过去。
将阳台纳入客厅,以玻璃砖的形式与书房隔而不断,取法自然,将阳光与自然引入室内。
留一个舒适的角落,既是给自己的,也是给未来的,给自己独处的惬意。
餐厨区
Kitchen area
原始的厨房小而局促,在这个空间内,女主人的手艺完全施展不开,故而决定拆掉边上的墙体,将客房整体纳入到厨房里,形成一个超大的“U"型厨房。
吊柜下做手扫灯带,增加氛围感,解放双手,减少油烟传播。
重新定义空间的分布,优化整体居家动线,为日常生活提供便利。另外更加重要的是,将景引入进门正对的视野开阔了空间感且达到了造景的效果。
将餐厅植入到厨房,形成一个餐厨一体的空间,原本餐厅的空间让给过道,优化动线。
餐桌使用白色圆桌,搭配两黑两白的餐椅。与整体配色一致。
把设计调性延续到空间的每一个部分,让家更纯粹。
卫生间
TOILET
借用原始卧室的空间达到三分离卫生间,独立淋浴房、独立马桶间、双面盆浴室柜,每个功能区互不干扰,都可独立使用。
超大镜柜满足日常收纳,隐藏式墙排下水+墙出水龙头。
主卧
Bedroom
主卧室由原有书房改造而成,增大面积,沿用整体黑白灰+棕色配色,背景墙采用上下拼色设计,点缀空间。
床头柜和衣柜衔接细节,内藏灯带。
让空间中每个空间都得到合理的尺寸,床头柜和梳妆台的结合体也方便了日常生活所需。
儿童房
Children's room
小孩房地面木纹砖人字铺贴,墙面薄荷绿颜色,窗帘、四件套也相应搭配,形成一个专属于宝宝的空间。
书桌、书柜、衣柜整体设计,所有插座都内藏到桌子抽屉后面,需要提前计算好高度,保证抽屉刚好盖住插座。
书房
Study
改造后书房是男屋主办公和游戏的地方,超长书桌和吊柜,在这里可以舒服的观影、游戏、办公。
左侧设计一组备用衣柜,为以后的收纳做储备。
过道
Aisle
玻璃砖成为此处的点睛之笔,通而不透,既是如此。
-END-
联系我们
18581878861(微信同号)
扫码添加 | 即刻咨询
免费上门量房
0元领取装修设计

