
业主是一对年轻夫妻,
女业主热情而有活力,
对生活充满了想法与期待,
男业主宁静而沉稳,
作为在企业中拥有绝对的话语权的他,
时刻保持着冷静与理智。
品茶、阅读、冥想……看似对立的二人,
却因为有着相同的爱好,
气场都变得“平衡”起来。
设计师以家为介质,
为他们的生活带来了些许“诗书茶韵”。
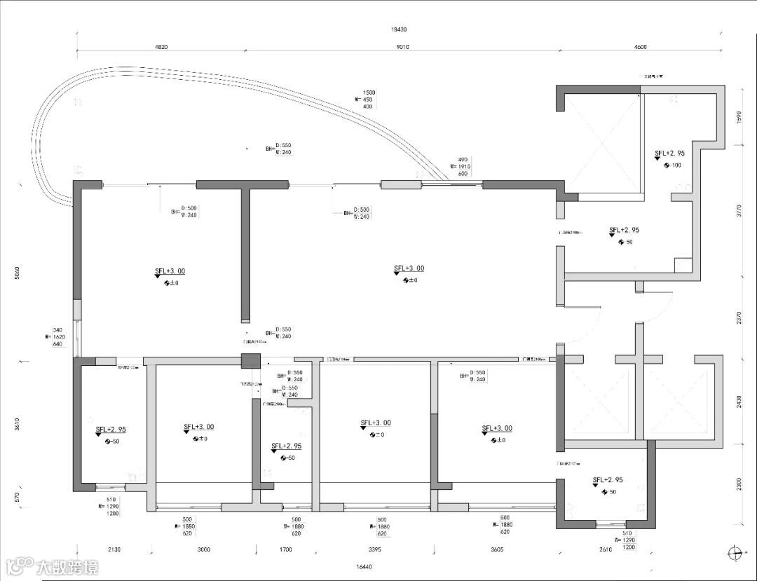
原始户型图

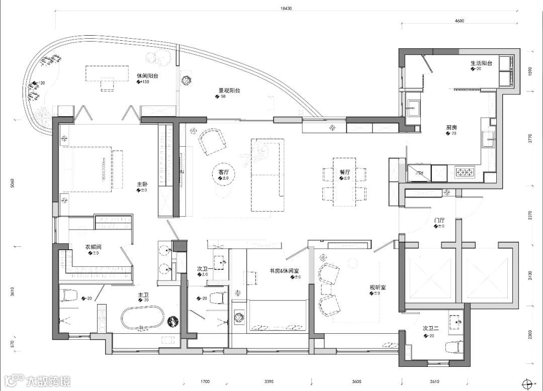
平面图

原始户型是典型的四室两厅格局,因为只有夫妻二人居住,所以不用太多卧室,但想要主卧是一个大套间。另外男业主想要一间独立的书房,女业主想要一间视听室……结合屋主的需求,设计师合理规划了空间布局:
1、将主卧设计成一个行走自由的大套间,拥有独立的衣帽间和四分离卫生间;
2、给夫妻两人一人一间“书房”
3、同时全屋设计了许多开架,用于展示女业主的收藏品;
客厅

东西的朝向使得整体空间通透,白天采光充足,落地窗将庭院景色与远方的风景引入室内,悄然拉近了人与自然的距离,让人一回家就得到舒缓,沉浸生活。

客厅电视机去中心化,定制电视柜用移门做隐藏式设计,推开移门,可以窝在沙发里看上一部精彩电影,关闭移门,还可展示柜内书籍或工艺品,格调尽显。

部分墙面使用了艺术漆涂刷,因其最后所呈现的不确定性纹理感,变幻的光线穿过梦幻帘,映射到墙面,家好像也有了生动的表情。那股缓缓运动着气息,似人心魂。

走廊一侧是白色与木色的墙板和同色的隐藏门,空间延伸性强,同时巧妙地以颜色将客厅与餐厅分割,使空间更有层次感。

在考虑地板、墙壁等要素时,也大量的采用自然的材质与没有刻板造型的修饰方式。木地板渗透着温润而自然的气质,其交错的纹理触感,会随着时间愈发润泽,富有生命力。

餐厅

餐厅一侧仿若展厅的开架,陈列屋主从各地收藏的器物,满足了屋主喜欢收藏的小爱好。


餐桌上的圆球形灯具是女业主的最爱,柔和的光线托温煦的用餐情景。

同时,餐桌背后的墙面被利用来做收纳空间,顺便将厨房的门一并隐藏。

厨房

将设备间面积缩小,厨房整体面积扩大,尽可能将功能设施做到完备,再用木格栅做镂空的隔断,用光影为烹饪空间增添一丝兴味。

卧室

原始的主卧太小,打通旁边的次卧,让卧室、衣帽间、卫生间、休闲阳台,共同围合成了一个大套间,动线流畅,在家也有“总统套房”的体验感。


休闲阳台地面整体抬高与卧室内部以屏风移门相隔,合起移门,可完全隔绝采光,营造安稳的睡眠空间;推开移门,卧室空间瞬间扩大三分之一,开阔而通透。


同时休闲阳台作为多功能区域又可以做女业主的茶室和书房,闲时插花、品茗、阅读,一书一茶,让居家生活充满仪式感,为心情放松减压。
卫生间

两个卫生间都扮演着中立的角色,主卫以岩板铺贴墙面,穿插原木质感的架子与百叶窗,品质与品味有了双重的保障;飘窗台上的木质灯具为卫浴空间增添了一丝活力。

书房

给喜静的男业主一间独立的书房用来办公和冥想,简单到仅有:榻榻米、书桌、座椅,以及一片与书桌相连可以放书的木台,与其说木百叶掌控着室内的明暗,不如说是他可以更游刃有余地与自我相处。

衣帽间

主卧一侧,我们将相邻的一个小房间并做衣帽间。衣帽间以开架为主,方便挂衣服、放包;梳妆台与卧室以玻璃窗相隔,两人在梳妆的时候也能有很好的互动性。
视听室

为喜欢追剧的女业主规划的视听室,好让两个沉浸在各自世界里的人互不打扰。带有一个卫生间,追剧时上厕所也不用走太远,等将来有了小孩还可以做儿童房。


点击下方“阅读原文”领0元设计省万元装修!


