本案以暖色调为主,棉麻质地搭配跳脱的芥黄,整个空间流露出温馨与舒适,在阳光的照耀下显得格外温暖,呈现出独特的美感,同时也充分表达了业主对浪漫与自由的向往。
「平面方案」
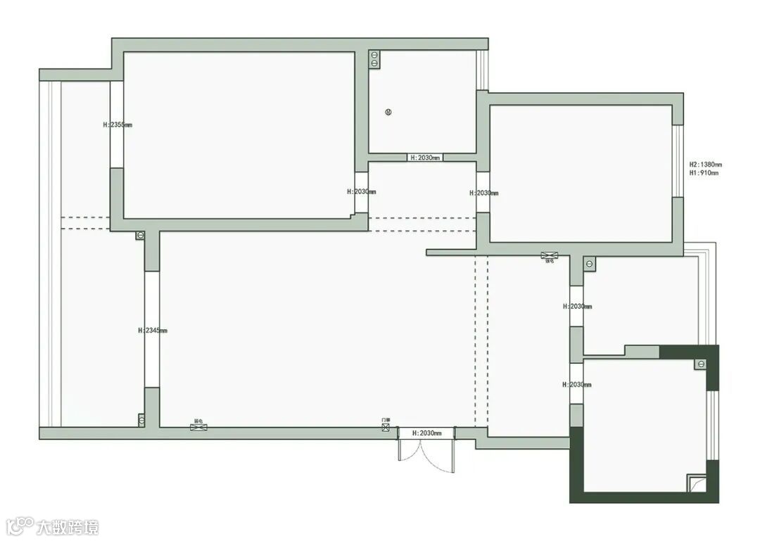
The PLAN
梳理出业主一家的逻辑动线,在不改变原始户型的基础上为各空间重新定义使用功能,以提升使用舒适度为目的,满足日常交流、吃饭、睡觉、工作/学习等基本需求的同时,设计方面也获得了业主的高度认可。
「客厅」
Living room
对于家,每个人都会有自己想要的感觉,而这种感觉来源于生活的积累与丰富的阅历。
线条简洁的现代空间中大面积运用暖白与原木,搭配浅草绿,趣味黄等色系,达到温馨且有格调的居家氛围。
整体采用无主灯设计,踢脚线也被艺术涂料代替,空间自上而下流畅一体,营造统一序列感,扩大空间视觉。
整铺的原木地板让空间延伸性更强,自然的行走触感也让紧凑的都市生活在回到家后得到释放。
「餐厅」
Dining room
餐桌上方的的原始结构梁采用镜面不锈钢包裹处理,两侧嵌入反光灯条,光线通过镜面的反射从而释放空间,塑造出更自然、舒适的用餐环境。
餐边柜分色处理,上部的白色满柜,在视觉上缓解过度饱和的压抑感。中间的镂空设计,延展视觉的同时又增加趣味性。
榻榻米是在满足居住需求的同时尽量减少房间对整体布局的分割,增加空间的连贯性,也能借此引入更充足的自然光线,与墙面浑然一体的弧形置物架,勾勒出有张力有层次的空间。
「厨房」
kitchen
厨房的细框长虹玻璃门,勾勒出有力的线条。通透的玻璃材质将外部采光很好地引入室内。低饱和的豆沙绿柜门结合水磨石砖与花砖的混合搭配,让不大的厨房空间温馨感十足。
「阳台」
balcony
灰色系石纹大砖通铺,简洁大气。同色系收纳柜搭配相得益彰,阳光穿透百叶帘,洒在地面,描绘温暖的生活场景。
「公用卫生间」
TOILET
重新定义卫生间功能用途,在基础的干湿分区之上,别出心裁加入一面长虹玻璃隔断。从造型上丰富了客厅的装饰元素,在功能上,让原本无自然采光的干区变得通透,为空间注入全新的材质结构。
「主卧」
Bedroom
背景墙分色处理,暖灰和粉橙色碰撞。利落的线性灯与简约的石膏线条通过纵横交错的重叠手法进行演绎,提升格调展现气质的同时在视觉上形成错位感,空间显得更加轻盈。衣柜转角处的风格延伸更是增加了空间的整体性。
抬高的地台,将阳光引入室内。光线在百叶窗过滤后与空间形成一种安静的交流。墙面与地面的光影交错,逐渐弱化了空间的重量。使人生的寂静与空白、独处与倦怠、都化作最简单的符号融入到生活里。
「儿童房」
Children's room
儿童房设计手法上多用柔和的曲线吸引眼球。木纹的温润,更贴合自然。浅灰色和豆沙绿柜门、栗色床头软包、白色墙面则是屋主内心世界里对舒适与优雅的情感表达。
侧墙的设计一半为封闭式的储物空间,一半则预留给未来购置的钢琴。内嵌的弧形灯条丰富空间层次,给人以自然随性之感,却又让每一处空间,都低调而不失精致。
「卫生间」
TOILET
典型的二分离卫卫浴同样保持了与外部空间风格的统一,跳脱的拼色玩在这里丝毫没有让人觉得出戏。
-END-
-
扫码添加 | 即刻咨询
免费上门量房
0元领取装修设计

