大数跨境
0
0

93㎡现代风小户型,简单的灰色调装修,效果简直太美了!

93㎡现代风小户型,简单的灰色调装修,效果简直太美了! 德雕装饰福州分公司
2022-08-16
2
导读:高端整装首选德雕
设计

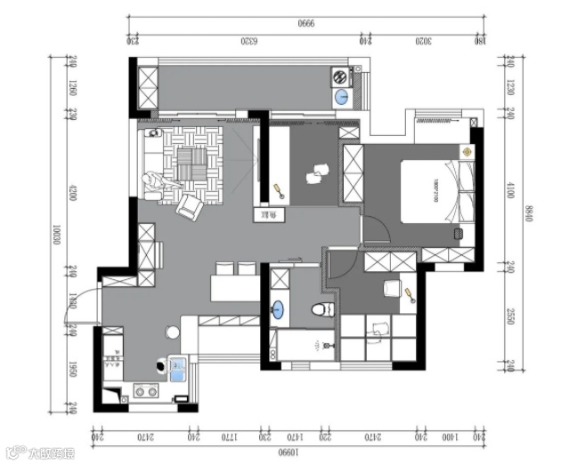
在这套93平米的房子中,整个空间采取现代简约风格的设计,低调舒适的灰色调、加上合理的空间布置,还有一些鲜艳色彩的融合,设计出了一个轻松惬意、活泼优雅的居住空间,让生活充满从容不迫的体验。

过道

过道位置定制一个收纳柜,冰箱嵌入在柜体里面,整体设计简洁又实用。

餐厅

餐厅与客厅空间互通,风格保持一致,深灰色的墙面,布置深色实木餐桌,带来一种沉稳端庄的用餐氛围感。

厨房

厨房深灰色的仿大理石墙面地面砖,加上现代简雅的橱柜定制与白色的操作台面,还有嵌入电器柜的设计,U字形的操作台空间布置,在开放式的空间下,带来了一个轻松舒适的烹饪氛围。

客厅

客厅整体现代风的装修氛围,蓝灰色的沙发墙+灰色布艺沙发;地面铺设紫灰色的地毯,搭配双拼圆的茶几组合,显得简洁朴素而舒适;电视墙以底部大理石+墙身长层板的组合,布置上实木电视柜与壁挂电视机,也充满了自然舒适的高级感。

主卧

卧室鲜蓝色的乳胶漆墙面,搭配灰色的床铺与床单,使得卧室显得简约清新而又有活力感。

书房

书房是个半开放的空间,与过道之间就隔着卷帘,里面悬空安装书桌,搭配简雅的办公椅,为主人提供了一个宽松舒适的工作加班与阅读的空间。

卫生间

卫生间以灰色墙面地面砖+白色浴室柜的组合,加上黑色的拉手,带来一种简洁实用的黑白灰设计感,布置浴缸、壁龛与收纳柜的卫生间,也实现了情趣优雅而实用的生活体验。

— 长按识别获取装修报价 —


微信后台留言

姓名丨联系方式丨楼盘丨面积

或联系装修

了解更多家装资讯

戳阅读原文,领取同款设计方案
【声明】内容源于网络
0
0
德雕装饰福州分公司
福州德雕装饰是一家立足东南,覆盖全国的整体家装企业品牌,我们企业的愿景:致力成为【中国高端】装修品牌公司!
内容 890
粉丝 0
德雕装饰福州分公司 福州德雕装饰是一家立足东南,覆盖全国的整体家装企业品牌,我们企业的愿景:致力成为【中国高端】装修品牌公司!
总阅读1.0k
粉丝0
内容890