「前言」
Preface
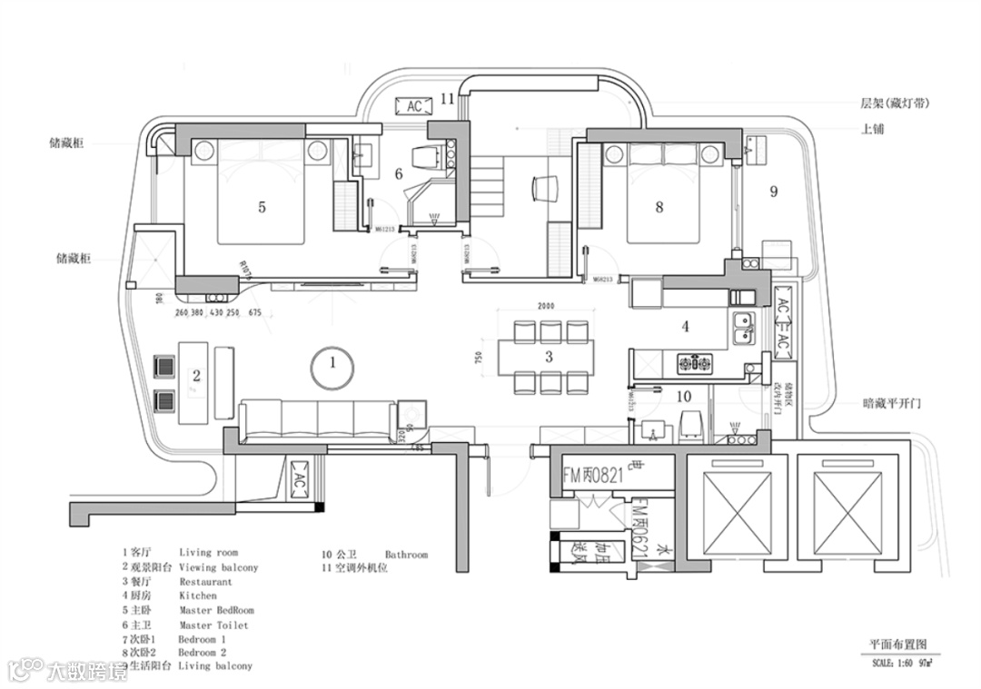
本案位于市中闹市区,鉴于业主喜欢简单不失割掉的设计风格,全屋没有过多的繁冗装饰,不大的户型,利用储物柜来提升收纳储物的效率和便利性,结合业主的生活习惯,打造出惬意的生活场景,在闹市中捕捉到的即刻宁静。
客厅
Living room
一体贯穿式设计,入户、客餐厅至观景阳台的共享空间,客厅电视墙连接阳台弧形墙体延伸感极强,视觉效果更开阔明亮。
设计师在整个空间当中选择了布艺和藤木家具,沙发墙采用软性装饰,柔化空间生硬感又降低路边车流所带来的噪音。
弧形主题墙与电视墙相呼应,让空间变得更加的灵动。
大面积巨幕玻璃,室外的景色一览无余,暖灰色调的营造让空间变得更加温馨舒适与放松。
材料的运用,软装的处理,相互糅杂却非常舒服,恰到好处。
餐厅
Dining room
人们常说,家的味道藏在厨房里;那么,家的幸福就体现在餐桌上。如今,人们生活方式不断更新,餐桌设计形式也在不断创新。
岛台与餐桌配置的设计,在面积不大的基础下,利用岛台做储存柜,它却是有着相当实用的实际功能。
女儿房
Daughter room
小小的女儿房,用灰色系做背景墙,高级感十足,搭配一幅潮玩积木的挂画,温馨且潮流,符合女孩自身独有的个性。
阁楼
Attic
设计师按小阁楼的设计模式规划了二层的睡眠区,满足业主拥有一个属于自己私密小天地的小心愿。
在设计阁楼楼梯的时候,还把楼梯的踏步空间充分利用为储物空间,让小空间的收纳倍增。
主卧
Bedroom
在有限的空间里,满足屋主睡眠、换衣需求。同时预留出休闲空间,俯瞰来往匆匆行人,自己却惬意地边晒太阳边翻翻书,简直再舒服不过。
马上私聊官方真人线上客服,
海量案例 & 最新优惠
领免费专属方案 !
扫码添加 | 即刻咨询
客服电话:18581878861




