屋主夫妻两人风格偏爱不一致,先生喜欢极简侘寂,太太喜欢美式复古,两种风格南辕北辙、无法调和。后来经过几轮沟通,他们共同选择了欧式复古又兼顾现代审美的轻法风格。
房子是两层送地下室的洋房,整体面积尚可,但承重梁多、空间破碎局促,很多问题都需要解决。在多次沟通需求后,设计师在设计时作出不同楼层的定位,按照屋主需求的底层逻辑,将几层空间的功能进行了梳理。
房屋面积:300㎡
装修风格:轻法+欧式复古
常住人口:4人
装修周期:1年

户型分析:
1. 原有户型是两层送地下室的洋房,整体面积尚可。
2. 地下室5米高,只有一个采光井,承重梁把空间完全切碎了,楼梯间左侧有一个暗角。
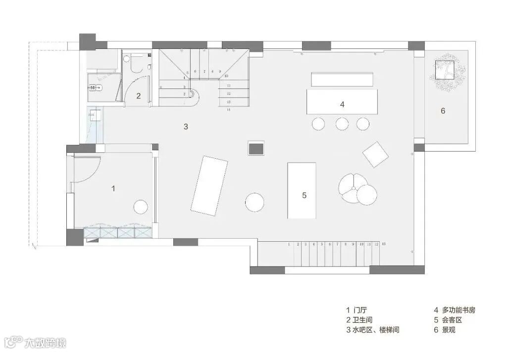
3. 一层入户玄关较小,卫生间面积太大,原始户型没有合适的餐厅位置,餐厅动线太长,客厅相应不好摆置。
4. 二层南北阳台没有有效利用,主卫开门正对主卧室。
设计策略:
1. 地下室完全打开引入光线,保留入户玄关和多功能书房两块挑空区域,地下室保留立体的空间变化。
2. 将休闲区设置在地下室,影音区、书房、健身房一应俱全,使用频率不高的客房也放在地下室,地下室自成独立。
3. 将一层定位为整套房子的起居室,释放一个房间的空间后,营造出完整、开放的一层空间。客餐厅LDK概念,更方便全家人使用和交流。
4. 社交厨房的引入、环绕岛台和餐桌的洄游动线让公共区行走更加灵活。
5. 二层空间是最安静、私密的,在设计时定位为睡眠静区。按屋主要求一共保留了三间卧室,主卧、儿童房、老人房。
6. 二层南北阳台都扩入房间,增大了房间面积,保证卧室活动空间。主卧空间经过调整后,储物增加,动线也更加合理。
▲ 车库入户玄关
因为地下室采光问题,玄关处设计了镂空的金属隔断,增强空间分割和仪式感,也营造了进门第一眼的艺术氛围。
玄关柜下方镂空,方便放鞋。整个玄关设计了多重感应灯带,在屋主进门时就会自动亮起,营造欢迎回家的仪式感。

穿衣镜方便屋主在出入时整理仪容,车钥匙随手放在旁边抽屉里。
地下室玄关穹顶巧妙模仿了欧式古建筑,墙顶面采用统一的奶油色乳胶漆,让空间更加纯净流畅。
一层入户玄关和地下室玄关用到同款柜体和地砖,设计上互为呼应。
装饰柜选择了雾霾蓝色,从浅奶油的背景里跳跃出来,配合法式风格选择了门板线条造型和金色拉手。
搭配小摆件和换鞋凳,一层的玄关镂空处可以放置房门钥匙和随身小物品。
一层舍弃一间卧室,作出了完全开放的格局,联通后的空间宽敞明亮,光线充足。
去客厅化设计,大横厅的结构,去掉电视为中心的模式,用围合式布局来布置家具。
这样的设计让亲人和朋友之间的交流和互动更为温馨亲密。
客厅不再是以往只作为电视观影的区域,同一空间下,玩耍、休息、休闲……在这个场景下可以作出多重选择。
客厅墙面采用了pu线条做造型,配合顶面线条和灯盘,奶油色乳胶漆,在硬装上营造了法式氛围感。
壁炉和钢琴做了空间呼应,装饰柜和墙面造型左右对称,所有家具虽然造型不同,在摆放的时候都做到了空间对称,增强趣味性。
沙发选用了Mario Bellini的经典设计Camaleonda,来自B&B Italia,羊羔毛休闲椅来自&Tradition,木质休闲椅来自Vitra。
三星画境电视放在一角,可以随时挪动到有需要的地方,不使用的时候就像客厅的一件装置艺术品。
客厅餐厅完全打通后,餐厅放在公共区一角,原有承重柱经过装饰后把餐区作出了隐形的区域划分。
圆形餐桌更具有法式氛围,墙面是屋主找画师画的壁画。
整个空间大面积运用了高级而有质感的、低饱和的奶油色,表达特殊而理性的温暖。

▲ 空间细节
LDK客餐厅一体化,整个空间非常开阔,吃饭做饭都在同一空间。采光和通风得到优化,视野也更加通透。
开放式厨房布局,做饭的同时可以看看电视和家人聊聊天,也可以时刻关注家人动向。
厨房用黑色橱柜来强化区域分隔,白色墙砖、白色吊顶和白色岩板台面起到提亮作用,让整个厨房空间既时尚,也不显压抑。
窗前配置水槽,洗、切、炒动线流畅,水槽边配置洗碗机,方便将餐具初步清理后放入洗碗机,整个动线最短,充满人性化考虑。
倚靠承重柱位置做了1米宽大岛台,一面增加厨房储物,另外一面作为休闲吧台。岛台上嵌入小水槽,平常可以清洗果蔬。
厨房繁忙时,岛台可以作为补充台面让家人帮厨,偶尔休闲场景下,亲友们围坐在岛台边上和做饭准备的人聊天。
主卧背景墙完全对称,顶面、柜门、墙面都设计了不同造型的pu线条。主卧整面墙衣柜满足大容量储存需求。
因为室内装饰氛围感很强,窗帘采用比墙面深一色号的米色,增加了空间颜色层次,也不会喧宾夺主。
屋主请专业画师用点彩的方式画出了男女主人的肖像画,温柔浪漫。
南边阳台被扩入儿童房,增加了室内活动空间,靠窗光线充足,阳台扩入后空间宽敞,放进1.2米的书桌。
床头做了半高背景墙,延伸到书桌后面营造一体感。床头衣柜中间镂空,作为床头柜使用。
在门板设计时,配合床头柜镂空高度作的线条造型,所有装饰线条都在统一水平线上,保证美观度。
颜色上选择和玄关接近的雾霾蓝色,保持设计上的连贯呼应,也提亮了儿童房氛围。
父母房衣柜部分在设计之初就预留了外置抽屉和开放挂衣区,外置抽屉更加方便拿取,平常可以放置经常换洗的小件衣物。
衣柜上方开放区可以悬挂次净衣,床头的大理石吊灯做为空间点缀。
地下室为了防潮好打理,选择了和楼上木地板非常接近的地板砖,呼应整体气质。
书房保留了挑高区域,光线从采光井洒进地下室,由最亮的区域把阳光透进室内。
横梁下方做了跨度2.5m的圆弧造型,自然的光影打亮了门洞,不同明暗营造了天井、书房和娱乐区的三重空间。
在这里没有明确的区域划分,只有模糊的界限和不同光影的对话。

屋主请专业画师画了一幅克里姆特的《吻》,金色背景和彩色点缀给地下室带来色彩张力。书桌是Cassina的经典款ventaglio。
地下室既要保留自然光,也要利用面积,所以在不遮蔽天井的区域做了一层现浇。
因梁体结构原因,无法从原有的楼梯区域直接进入现浇平台。几经思考后,我们在地下室墙边设计了另外一组楼梯,只通往现浇平台。
出于美观和轻量化考虑,这组楼梯采用悬浮钢架结构,比普通楼梯更有特色。
地下室本身就是一个自足完整的LOFT。客房设置在现浇平台,向地下室挑空方向开窗,采光得到完美解决。
客人偶尔入住时,因为地下室的独立完整性,可以和楼上的主人完全分开,保证了相互的私密性。
主卫选用和玄关同款的地面砖,顶面走了一圈法式线条,呼应了整套设计中的材质和法式氛围。
利用需要包管的位置砌筑壁龛,既美观也增加了空间进深,开放的储物位置更方便拿取物品。
▲ 次卫
次卫墙地面采用同款瓷砖,淋浴房下沉用到海棠角工艺,空间一体连贯。

花园做了白色台阶式的花圃,种满屋主喜欢的绿色植物。防腐木层板提供了休息座位,到晚上可以打开星星点点的户外防水灯。
配合法式风格设计的楼梯,定制了实木踏步和黑色实木扶手。
夜晚开灯后也是氛围感满满,我们还设置了踏步灯,方便屋主夜间行走。
