业主作为当代独立女性,拥有并践行着独属自己的生活方式,她有着不同的双面个性,既热爱机车与健身,又喜欢养猫以及一切美好可爱之物,可以是很燃的速度与激情,也可以是岁月静好的安心陪伴,是集酷飒与天真于一身的名副其实的“机车美少女”。
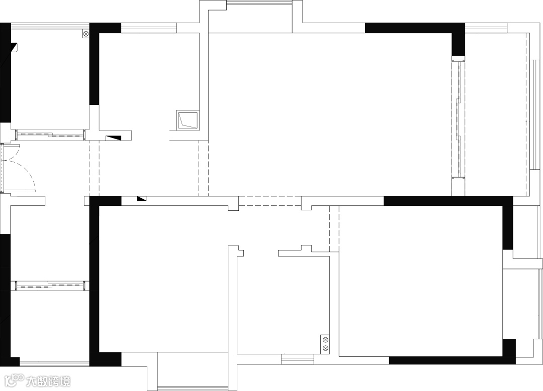
户型分析:
1.入户左右两边都有个小房间,但是造成了进门没有规划鞋柜位置的尴尬。
2.餐厨空间动线存在延长,做好饭到端菜上桌会绕个弯子,造成了使用体验在一定程度的下降。但是烟道的存在给开放式厨房的设计造成了一定的困难。
3.卫生间空间比较局促,还是给人居体验造成了一定的不便。
设计策略:
1.我们将进门左边房间规划为生活阳台,方便了衣物的清洗和晾晒。右边房间则是将墙体打掉,将鞋柜安排在进门就能触及的位置,同时上方可以摆放小姐姐喜爱收藏的机车头盔,里面的位置则是设计到顶柜体作为衣帽间,弥补主卧收纳的不足。
2.餐厨空间的交互性我们通过拆除墙体营造开放式空间的方式解决,烟道的位置则是保留并且用橘红的立柱修饰,设计感很棒。
3.我们将次卧的门改到了面朝餐厨空间的位置,这样卫生间的洗漱台可以拿出来,而里面规划了坐便和淋浴区,达到三分离的空间规划,使用体验提升不少。
进门的一刻,首先映入眼帘的便是贯通整个空间的纵深长廊,弧形门带来了更多的仪式感。










