大数跨境
0
0

离大谱!明明看起来没有什么设计,但就是好看,这家到底做了些什么啊?

离大谱!明明看起来没有什么设计,但就是好看,这家到底做了些什么啊? 德雕装饰福州分公司
2023-03-24
0
导读:德雕品质理想人居

说在前面

业主是一对年轻夫妻,热爱旅游、阅读,既喜欢有历史有底蕴的老家具又喜欢时尚的事物。两个人都非常喜欢宠物,家中养了5只狗狗和1只猫猫,活泼可爱的小家伙们为整个家带来了很多快乐。两个人都喜欢相对简单的空间,希望家以白色为主,干净纯粹,不需要太多色彩,材质的选择也倾向于简单自然。下面一起来看看设计师为他们打造的家吧!






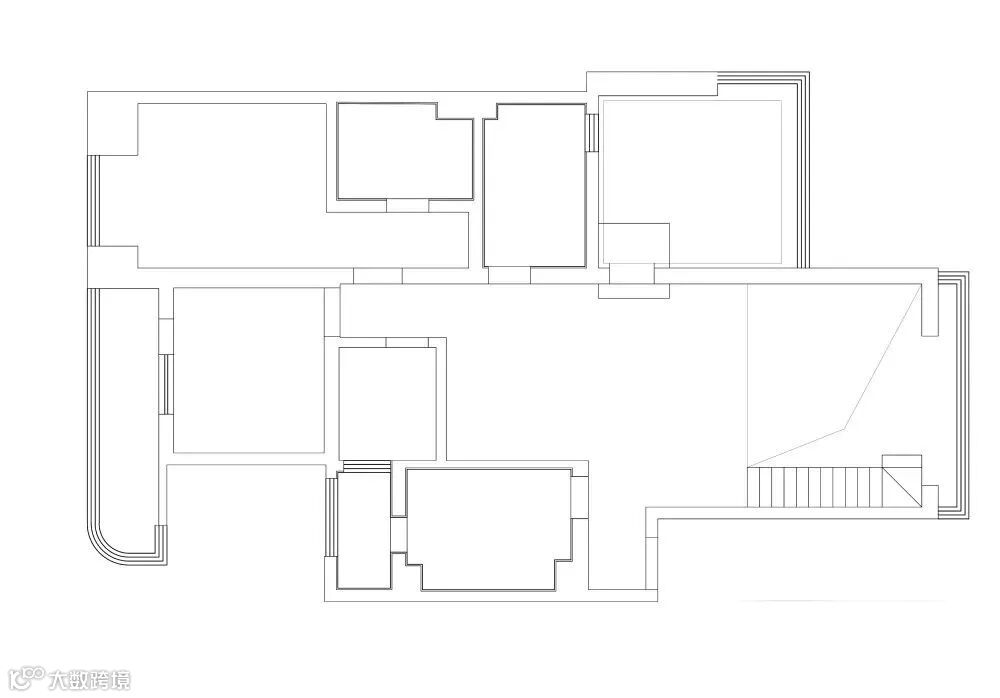
一层原始户型图

二层原始户型图

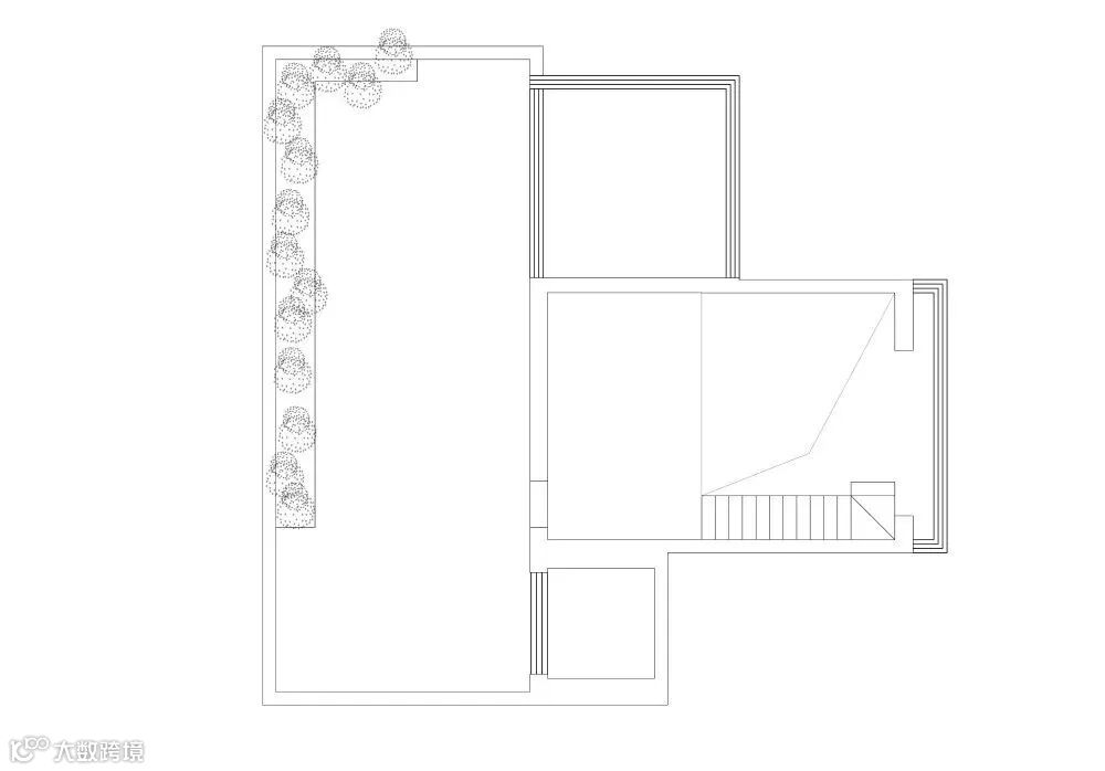
一层平面布局图

二层平面布局图


客厅

空间以白色作为主色调,利用柔美的弧线做串联,勾勒出空间优雅柔和的一面。
选取深色沙发,作为视觉的焦点,在用色上趋于简单与平衡。
挑高的客厅空间,因自然光入室内,显得格外的开敞明亮。
客餐厅相贯通的布局,让整个空间更加开阔通透,简单的动线让平时的生活更为便利。
茶几的大理石纹路自然肆意流淌,与空间的弧线元素在某个维度形成了呼应。让整个空间增添了一种艺术的动感。
利用最简单的颜色,与最简单的线条,打造出一派简雅之风的空间格局。
将楼梯与电视墙做融合,利用柔和的弧线完成过渡与转换,让弧线的延伸更加舒展流畅。

餐厨

餐厅延续空间的弧形元素,利用弧形门洞造型营造仪式感,同时增加了整个空间在视觉上的纵深感。
瓶盏之中插满美艳的红玫瑰,为空间增添一丝热情与生机。
餐厨同样将收纳做到极致,利用充裕的柜体做了完整的收纳空间,方便储物的同时,让整个空间看上去洁净有加。
厨房做成全开放式的,方便使用,同时也增加了家人间的交流与互动。


卧室

卧室将原有的推拉门进行了拆除,把阳台并入进来,拓展出了休息区,让整个空间在作为舒适的休憩场所的同时,增加了更具休闲与放松的附加功能。
空间的开阔也使之与自然的联系更加紧密,窗外的阳光可以肆意倾洒进来,良好的采光与通风,也将休息环境营造得更加健康。

花园

向花园过渡的二楼挑高区域,作为休闲区域,将业主从国外淘回的古董家具做了组合,营造出浓浓英式下午茶的氛围感。
将原有的花池部分改为家政区和休闲区相结合的功能区域,把下午茶概念融入休闲区中。


卫生间

卫生间干净整洁,同时延续整个家中对于理石纹路砖的应用,中和了空间的单调与沉闷。
粗线条的纹路,将粗犷与优雅相结合,充满着动感的张力。


往期推荐





【声明】内容源于网络
0
0
德雕装饰福州分公司
福州德雕装饰是一家立足东南,覆盖全国的整体家装企业品牌,我们企业的愿景:致力成为【中国高端】装修品牌公司!
内容 890
粉丝 0
德雕装饰福州分公司 福州德雕装饰是一家立足东南,覆盖全国的整体家装企业品牌,我们企业的愿景:致力成为【中国高端】装修品牌公司!
总阅读976
粉丝0
内容890