本案为精装修房改造项目,屋主是一对年轻的夫妻,他们刚刚迎来了宝贝女儿的出生,在新家设计时希望满足三口之家的正常功能需求,但也更注重两个人陪伴空间的营造,基于这一原则,设计师对空间、动线、功能、软装展开规划陈设。
装修风格:现代简约
房屋面积:170㎡
常住人口:3人
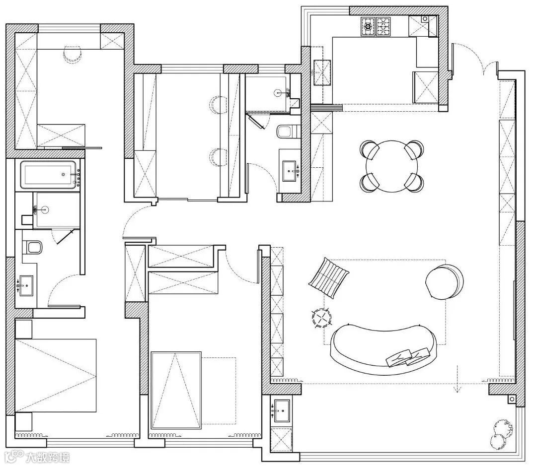
▲ 原始户型图
户型分析:
1. 170平米四房两厅一厨两卫的大平层,户型南北通透、动静分离、开阔舒适、布局合理,完全满足不同结构家庭的居住需要。
2. 厨房采光位置特殊,造成餐厨空间采光不足。
3. 精装交付千篇一律的设计毫无个性化可言。
4. 交付时配套的柜子和房门样式比较传统。
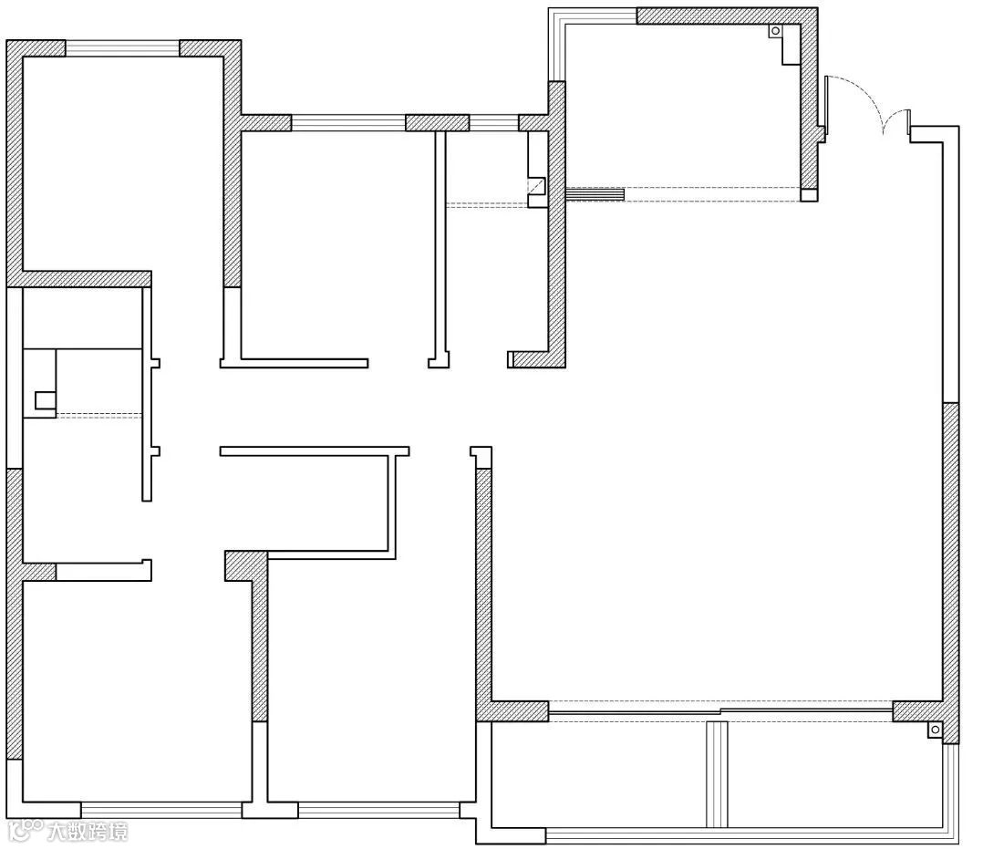
▲ 平面布局图
设计策略:
1. 拆除所有吊顶,同步调整室内的灯光设计,将千篇一律的回字形结合灯带的吊顶改为 主灯设计。
2. 改变原本的“大白墙”,增加一定的灰色和米色,使空间的基础色更加柔和舒适,软装家具以米灰、木色为主,用蓝色和焦糖色做跳色。
3. 整体家居的挑选和布置,没有中规中矩的约束,形制上更加随性,组合上更加自由。
4. 厨房和书房的门都更换了透光性更好的超白玻璃推拉门,弥补空间局部采光不足的问题。
5. 全屋尽可能多的增加储物,同时合理规划各个区域的收纳柜,确保不同物品的分类收纳。
6. 主卧室原衣帽间一分为三,主卧室、儿童房和公共区域都设计了储物柜。
7. 虽然是三口之家,但屋主仍然希望有更多的二人世界的陪伴空间,于是我们分别在客厅设计了影音功能、乐高展示区以及独立的电竞房。
8. 北次卧被纳入大主卧套间,改造为独立衣帽间,大大提升业主的生活品质。
墙面低明度和饱和度的灰色调,让整个空间变得柔和而沉静,同时布局的随性、造型的变化,丰富了空间的层次感。
出于对整体风格匹配度和收纳量的双重考虑,设计师拆除了原开发商交付的玄关柜,与电视背景墙巧妙衔接,收纳量和美观度都大大提升。
靠入户门的位置增加艺术造型的穿衣镜和换鞋凳,让归家更舒适也更有仪式感。
硬装改造主要集中于顶立面装饰的调整和部分功能区域的优化,再从灯光、色彩、家具、软装搭配着手,让整个空间更加丰富,氛围更加温馨。
原户型结构中阳台被一分为二,美观性和空间利用率都不高,拆除阳台与客厅之间的推拉移门和墙体隔断,阳台和室内连通形成开阔无障碍的空间。
原始户型交付时,回字形结合一圈灯带的吊顶设计千篇一律无个性。
拆除所有冗余的造型,将顶部的两个主光源改为点光源,满吊平顶实现无主灯设计,空间更加整洁清爽。
客厅作为家人互动交流和娱乐的空间,更加自由且随性。
写意空间Ploum贝壳沙发、毛毛虫懒人沙发搭配SUFAN复古单人椅,一张舒服的羊绒地毯,随意组合不拘泥于形式。
阳台纳入客厅将地面抬高,铺设鱼骨拼地板形成休闲区,加上充足的阳光和精心布置的绿植,让空间变得更加温馨舒适。
电视背景墙整体涂刷雅灰色乳胶漆,局部用同色格栅做出造型的层次感,悬挑的抽屉柜补充部分收纳功能,抽屉底部暗藏灯带增加空间的轻盈感。
电视背景墙上方的吊顶内暗藏了投影幕布。灯光渐暗,荧幕落下,客厅就变成了一个观影模式的家庭影院。
陪伴之外,一人独处时,也需要一些独立的自我释放空间。一张沙发、一盏台灯、一本闲书,就可以让整个人沉浸于静谧的氛围。
拥有共同的爱好,便可以一起消磨时光。屋主喜欢LEGO、喜欢电玩,于是在客厅定制了整面储物柜,收纳和展示他们共同的作品。
客餐厅公共空间的布置,没有中规中矩的约束,形制上更加随性,组合上更加自由。
餐厅沿墙增加一组餐边柜满足区域的收纳需求,契合整体轻松自由兼具设计感的调性。
挑选一款经典的象牙白岩板圆桌,彰显设计的高级感,带来舒展的空间体验。
一款电镀金属不规则圆球吊灯,与餐桌的基座金属质地呼应,不同款式的餐椅自由组合,随性而自然,焦糖色亚克力扶手餐椅,颜值高点亮空间。
沿墙定制的餐边柜,也是厨房厨柜的延伸,集合了西厨烘烤设备和零食储物,既保证充足的收纳容量,又合理分配不同功能需求的收纳。
高柜旁边是一组矮柜,矮柜上方设置层板置物架,或装饰或收纳。屋主喜欢咖啡,也喜欢自己手冲咖啡。
在家看一场电影或是拼着乐高、陪伴孩子,随时可以冲一杯咖啡,在醇香的味觉和嗅觉的享受下,感知生活平淡而幸福的美好。
将厨房原本的玫瑰金边长虹玻璃推拉门拆除,更换为黑色窄框不锈钢玻璃推拉门,更加符合简洁的空间风格。
同时透明玻璃的透光性更好,可以缓解餐厨采光不足的问题。
朝南的小房间作为儿童房,以孩子更喜欢的鲜亮色调为主,整体的布置温柔甜美,卡通的元素充满童真和趣味。
原本主卧室的衣帽间一分为三,扩大了儿童房的面积,使儿童房更加舒适敞亮。Bolin的儿童床,像小岛一样包裹式的设计,给孩子满满的安全感。
儿童房预留了充足的活动空间,家具的边角都做了弧度处理。
地面铺设了柔软的地毯,孩子可以尽情地在这里玩耍、学习,给孩子营造一个自由、安全的成长环境。
为了让屋主有最舒适的居住空间,设计师将主卧室和北边的次卧室改造成一个大的主卧套间,北次卧改为独立衣帽间。
超大容量衣帽间规划了衣柜、包区、鞋帽区、梳妆台等。从起床、洗漱、换衣、化妆、配饰,动线流畅,一气呵成。
朝北的次卧室改为多功能房,原本的平开门拆除,连同墙体也一起拆除,换成透光性更好的玻璃推拉门,解决走廊采光不足的问题。
多功能房的定制柜内隐藏了墨菲床,偶尔来人需要居住时又可以作为临时客房,实现一房多用。

