家的样子取决于屋主的性格,屋主给设计师的第一印象:温和、干净、做事有条有理,他们希望家里的氛围能够体现出他们的个性,不饰繁杂装饰与色彩,简单的模块与形状创建最震撼的高级感,不动声色却俘获人心。
200㎡高层复式,优秀的采光搭配挑空吊顶,空间的硬件条件首先赢在了起跑线上,纯白空间仙气飘飘,几何造型打造艺术格调,“清水出芙蓉”般沁人心脾,又治愈又高级。
全屋软装布置精简,却有“四两拨千斤”的效果,满足屋主阅读、品酒的生活爱好,客厅与吧台于一体,增进沟通爱意满满。拱形框下,落地窗边,梦幻气泡灯营造仙气的氛围,赏景阅读,展开治愈浪漫的居家生活。
房屋面积:200㎡
装修风格:混搭
常住人口:3人

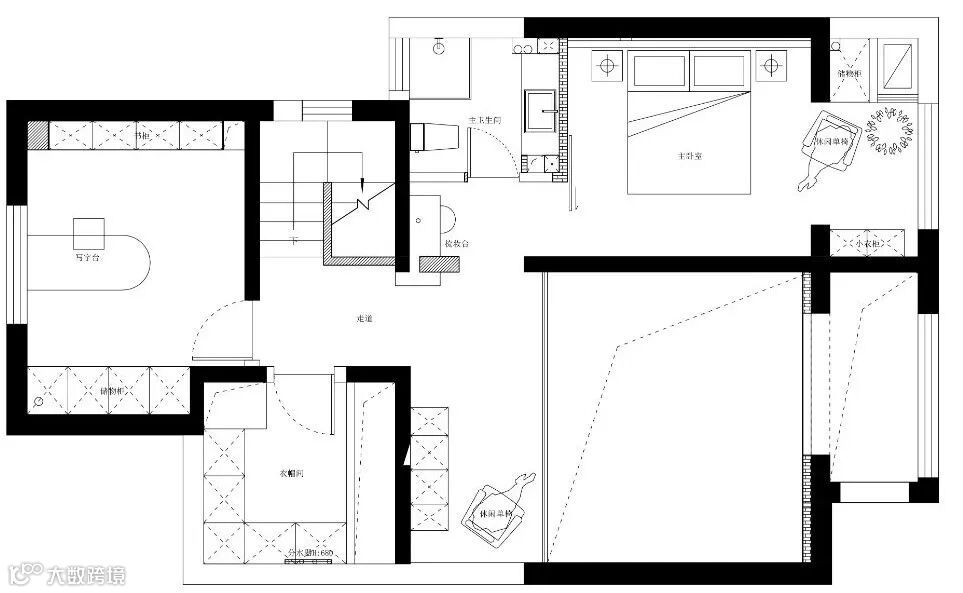
▲ 一层原始户型图
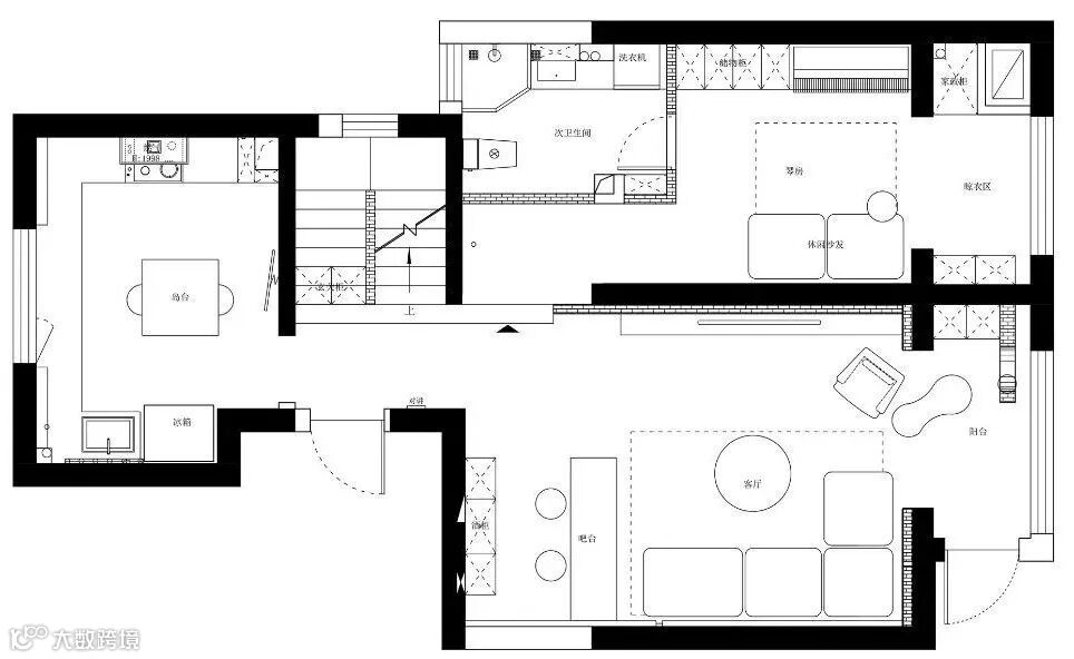
▲ 一层平面布局图
设计策略:
1. 一层分布生活核心区,客餐厅以及休闲琴房,客厅与琴房打造成半开放式布局。
2. 改变卫生间开门方向,避免直对卫生间,空间层次更丰富。
设计策略:
客厅挑空,二层所剩部分打造成主卧、书房以及衣帽间,满足屋主日常生活所需,动静分区,二层空间独立安静,给生活最大的便捷度。

挑空吊顶奠定客厅基调,超高拱形设计吸人眼球,空间顶部选用不规则形状打造梦幻的灯光效果。
简约风中透露出法式的浪漫,几何模块带来高级的艺术氛围感,令人一眼难忘。
沙发背景墙选用护墙板搭配岩板,三座的纯白豆腐块沙发,简洁的设计语言中拥有别致的浪漫。
全屋以纯白为底色,极致色彩迸发出来力量感,造就不施粉黛的高级美感,令人回味无穷。
软装呼应主题风格,大气精简,不置多余陈设,一盏不锈钢银白色钓鱼灯,精致清冷,点亮夜晚的温馨时光。
沙发与背景墙相互映衬,构建出不同材质的层次感,统一色调美观协调,尽显极简美学。
顶部洒落的球状灯具,像是自由梦幻的气泡,梦幻百叶帘温柔了岁月,烘托出一份浪漫治愈的窗边美景,将挑空的氛围感展现到极致。
艺术馆般的家居氛围,住在这样的家里,每一刻都在被治愈。
木地板人字拼中和纯白色调的清冷气质,打造温馨质感,既有家的柔情之处,也有艺术馆的高级之美。
客厅与休闲室打造成半开放式布局,电视墙隔断空间,悬空设计增加轻盈感,墙面以线条组成模块,削减白墙的枯乏单调,丰富空间质感。
悬空墙下方用电视柜填充,轻松实现简洁大方的电视墙,不饰繁杂造型,凹凸有致的几何模块,与整屋细节不谋而合。
从二楼看客厅,挑空气质无与伦比,简洁的家具布置,放空心灵,氛围治愈且轻快。
二楼挑空区以玻璃栏杆隔断,大气清透,契合洁净纯白的空间氛围,上下两层通透而关联,满满的自在呼吸感。
一层除挑空区域外,其他部分设计成吧台,黑色吊顶划分空间层次,黑白分明,尽显时尚之美。
客厅与吧台相融合,丰富家居生活场景,沟通畅快无阻。
吧台是屋主最爱的家庭区域,满足了夫妻二人品酒的爱好,而开放式的空间,方便屋主交流,让品酒时光更加有爱温馨。
吧台背后是悬空酒柜,有开有合的柜体满足不同的收纳需求,纯白家具与黑色墙漆搭配,别有一番高级质感,品酒区时尚度拉满。
开放格区域安装高脚杯收纳装置,酒柜搭配杯柜,作为吧台背景板,一方惬意角落,填满品酒人的内心,驱散生活中的坏情绪与疲惫。
一楼卫生间墙面使用玻璃砖隔断,通透又美观,引光入室,梦幻感呼应全屋氛围,美不胜收。
在纯白基调的空间里,厨房的橱柜选用黑色,黑与白碰撞出复古优雅感,顶部走一圈雕花石膏线,淡淡的法式气息萦绕空间之中。
厨房内部是宽敞的大“U”型布局,内置中央岛台,家电套装一应俱全,尽显豪宅风范,展现高品质生活环境。
地台一直延续至楼梯部分,成为第一踏步,加强楼梯的设计感,整体连贯统一。
踏步选用白色岩板包裹,实用且美观,搭配梦幻感应灯,楼梯散发清透的光芒,仙气飘飘。
墙面安装扶手,保证环境的安全性,纯白空间颇有艺术馆的气质氛围,意境唯美。
二楼走廊,拱形吊顶搭配线型灯条,软装上搭配一把线条感高背椅,高规格的艺术感填满空间,空间气质得到升华。
卧室在纯白的基调上加入充足的法式元素,吊顶的雕花线条,以及背景墙的石膏线,辅以金属不锈钢点缀,气质优雅且精致。
宝格丽大理石床头柜奠定卧室基调,优雅轻奢质感不言而喻,胡桃木护墙板包裹半墙作为床头,搭配精巧壁灯,复古感油然而生。
推拉移门作为睡眠区和衣帽间的隔断,大气且高级,门上优雅的雕花线条,呼应卧室质感,增添满满仪式感。
梳妆台搭配可爱造型梳妆凳,优雅的氛围中多了一丝趣味感,满满少女心,亦是生活中不可辜负的小甜蜜。
主卫墙地一体采用艺术漆涂抹,高级清透,完美契合全屋艺术感简约风格,细节彰显品质。
一体式台盆悬空而置,墙面打造壁龛方便储物,保持台面整洁清爽,全景镜面大气美观,尽显极简美感。
书房一改纯白面貌,大胆选用墨黑色墙漆上顶,搭配雕花走线,呈现精致的时尚优雅感,办公阅读环境静谧且高级。
红色樱桃状吊灯悬于书桌之上,红黑搭配烘托出艺术氛围,书柜上摆放的书籍和精美手办,色彩丰富,生活气息浓郁且治愈。
屋主给我的第一印象,干净、温和、做事有条理。我们希望设计风格能更加贴近屋主本身的气质,另外加入一丝浪漫氛围,形成了这个仙气飘飘的艺术宅。
房子的楼层较高,室内有非常好的采光,客厅是个挑空空间,阳台我们设计成拱门造型,配合球型的吊灯,营造出浪漫的氛围。
