
河西中豪宅户型图曝光!
预计年后首开
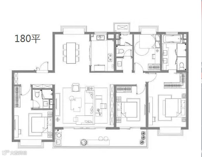
刚刚,位于河西中的保利G22地块项目3大户型图曝光。据置业顾问透露,项目预计最快三四月份首开,户型面积为140、160、180㎡。
户型鉴赏:
河西中的G22地块在去年6月18日的土拍中,在进行了39轮竞价后,被保利江苏房地产发展有限公司以总价21.4亿元竞得,成交楼面价为32356元/㎡。

项目效果图
最新消息!江北新区官方回应“公寓变办公”事件

近期,江北新区商办项目存在较为集中的信访投诉,因信访内容涉及各部门职责,受江北新区商办项目整治工作专班委托,对新区商办项目业主信访统一答复如下:
按照《关于加强商业办公项目等非住宅类建筑项目管理的通知》(宁政规字[2017]79号)的规定,在2017年3月8日之前已取得建设工程规划许可证的商业办公等非住宅类建筑维持现状,确保房屋及消防安全。对销售比例高的项目参照前款执行,不予追究。
根据JG67-2006《办公建筑设计规范》规定,办公建筑包含公寓式办公楼。开发商宣传的是“公寓”,购房人拿到的房子具备居住功能,虚假宣传证据不足,不构成虚假宣传。
房屋性质按照土地出让及规划确定的用途进行确权登记。
入学问题以教育部门当年招生工作实施方案为准。
开发企业与业主协商退房,协商未果的,经由司法途径处理。
民用水电问题,由业主统一委托代理人会同开发企业与水电运营单位协商处理。
这份回应文件中,强调了重要的时间点,即仅针对于在2017年3月8日之前已取得建设工程规划许可证的商业办公等非住宅类项目。而且,此份官方回复涉及虚假宣传、房屋性质、入学、退房、民用水电等诸多问题,给业主最关心的几个方面都提供了官方指导。
其实,南京已经发生过多起“公寓变办公”事件,而早在2019年8月,南京六部门也曾下发“关于印发《商业办公项目违规拆改专项排查工作方案》的通知”,全面排查南京近期普遍存在的公寓变办公现象。
其中,排查重点包含六项:延期减负、虚假宣传、违规拆改、水电设置违规及违规开通燃气等。
1、存在投诉和群访的,已销售的商业办公拆改为公寓项目。
2、不能按期交付的,开发企业在房屋竣工验收备案后到交付前,对房屋进行违规拆改后,无法办理相关手续导致延期交付。
3、存在虚假宣传误导的,开发企业在销售过程中将商办用房宣传为公寓房出售,涉嫌虚假宣传误导购房群众。
4、产生消防安全隐患的,改变房屋实际使用功能,开发企业违规拆改,导致消防设施破坏或消防通道堵塞。
5、水电气线路设置违规的,违规开通燃气设施,违规承诺按照民用水电气标准收费。

购买途中,做好宣传单页、宣传截图、样板间、合同等方面的材料保存,日后一旦有问题,可以作为证据使用。
重磅!
南部新城商办综合体规划出炉!

项目位于南京市秦淮区南部新城,北至西一路,南至机场路,东至响水河路,西至东风河路。
项目前身是南部新城G39地块,在去年8月7日的土拍中,仅经过一轮竞价,就被南部新城开发集团&南部新城会展中心以总价3.26亿元竞得。
项目总占地面积51508.86平方米(其中包含东侧部分公共绿地下方4558.66平方米),用地性质为Bb商办混合用地,容积率≤2.7、建筑高度≤100m、建筑密度≤55%、绿地率≥20%。

据规划方案显示,项目总建筑面积约216838平方米,主要功能为酒店、展览、办公、地下商业及停车场。根据项目总平面示意图,项目共规划有6栋楼,其中1#为办公,2#为酒店、展览,3#展览、办公,4#、5#、6#均用于展览。
其中,项目2号楼将引进引进的酒店为欧洲市场占有率最大的高端酒店——丽笙酒店。这也意味着板块内的商业配套将再上一层楼。



