
昨天,南京市规划和自然资源局官网公示了生态科技岛高级中学项目规划设计方案。

根据《南京市2020年经济社会发展重大项目计划》,生态科技岛高级中学即金陵中学江心洲分校,此次公示的设计方案不仅首次透露了学校的具体选址,同时还曝光了效果图、办校规模、功能模块等重磅信息。

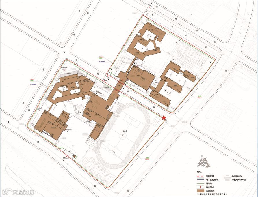
生态科技岛高级中学项目位于南京市建邺区江心洲街道青奥北路与中新大道交叉口西北角,西邻创意一路,北临东寿水道。
项目区位图:

据规划设计方案所示,该项目秉承中新南京生态科技岛“生态、科技、低碳、智慧”规划理念,打造特色鲜明、品质一流的教育配套,学校拟建规模为48班。

规划用地性质为高中用地,总用地面积约96661平方米,拟建总建筑面积约97487平方米,其中:地上建筑面积约74284平方米,功能包含教学楼、科创中心、艺体楼、宿舍楼、食堂等;地下建筑面积约23203平方米,功能包含地下停车场、风雨操场及设备用房等。
学校效果图:


根据2020南京市重大项目计划透露出的信息,该院校的建成起止年限为2020-2022年,也就是说这所生态科技岛高级中学只需要2年时间就可以和大家见面了!
作为中国与新加坡合作开发的新加坡•南京生态科技岛,江心洲的发展规划为:依托河西新城,衔接江北新区,打造环岛生态绿链和五大功能区,集生态环保、信息科技、文化旅游、现代都市服务、生态居住等功能为一体的“生态科技城、低碳智慧岛”。
虽然自然环境与规划十分优越,但是江心洲的教育配套却迟迟没有跟上。不过,按照最新教育规划,江心洲规划居住人口将达11万,总共将建设国际化学校1所、高中1所、初中3所、小学6所、幼儿园11所。
岛北(科技发展岛):4所幼儿园+2所小学+1所初中;
岛中(生态科技岛):3所幼儿园+1所小学+1所初中+1所国际学校;
岛南(文化创意岛):4所幼儿园+3所小学+1所初中+1所高中。
其中,高中确定为金陵中学,即公示规划设计方案的生态科技岛高级中学;而其他一部分教育资源也已经开始落实。

科技发展岛南部小学
科技发展岛南部小学位于江心洲街道中新大道与绿水街交叉口东北角,地块西邻中新大道,北邻住宅地块,东邻跃进水道,南邻绿水街。

整个学校分为综合区和教学区,包括地上五层,地下一层,其中:
教学区包括5F的教室、专业活动室和行政办公楼;
综合区包括阶梯教室、报告厅食堂、风雨操场和图书馆等;
地下功能包括地下停车场及设备用房等。



2019年9月,科技发展岛南部小学正式开工,根据项目工程信息,整个项目建筑面积约24754.71㎡,预计2021年7月15日竣工。


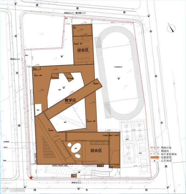
生态科技岛北部初级中学
生态科技岛北部初级中学位于江心洲街道科技路与绿水街交叉口东北角,地块西邻科技路,北邻星影街,东邻环岛东路,南邻绿水街,占地面积约8700平方米。
项目区位图:


学校效果图:


仁恒江湾世纪
仁恒江湾世纪预计将于本月推出最后2栋高层,共计132套房(包括40套人才房),建筑面积为179㎡,均为2梯2户,拟交付时间为2021年12月31日,前期均价44244-45994元/㎡。

(项目鸟瞰图)
此外,仁恒江湾世纪后期也有洋房和叠墅产品,价格或高于在售高层。其中,洋房为6-7层,叠墅为4层。多层洋房为200㎡四房,位于A、C地块;叠墅为222-245㎡四房,位于A、E、F地块。
国资新城江心洲G78


(项目鸟瞰图)
荣盛江心洲G08
今年1月20日,荣盛江心洲G08地块规划出炉,项目将打造12栋7层洋房,预计今年下半年上市。去年4月,江心洲G08地块经过112轮竞价,以15.6亿元总价被荣盛竞得,竞自持面积13000㎡,创下江心洲楼面地价新高。








