
买房人注意!新玄武板块又添新住宅!
昨天,铁北G86地块规划、效果图曝光,南京主城将再添10栋新住宅!
3月31日,南京市规划和自然资源局官网发布了铁北G86地块的规划设计方案。

据规划显示,项目拟建10栋住宅及配套用房,其中:1#为17F,2#为14F,3#、6#、7#、9#为26层,4#为23F,5#为11F,8#为9F,10#为10F。
该项目位于玄武区红山街道黑墨营101号31-01号地块,地块东至规划哲雨路,南至规划文四路,西至北苑东路,北至月苑南路。
项目区位图:

项目规划总建筑面积约为161800㎡,其中,地上建筑面积约为114000㎡,主要功能为住宅及其配套用房;地下建筑面积约47800㎡,地下两层,主要功能为配建机动车库、非机动车库及设备用房等。
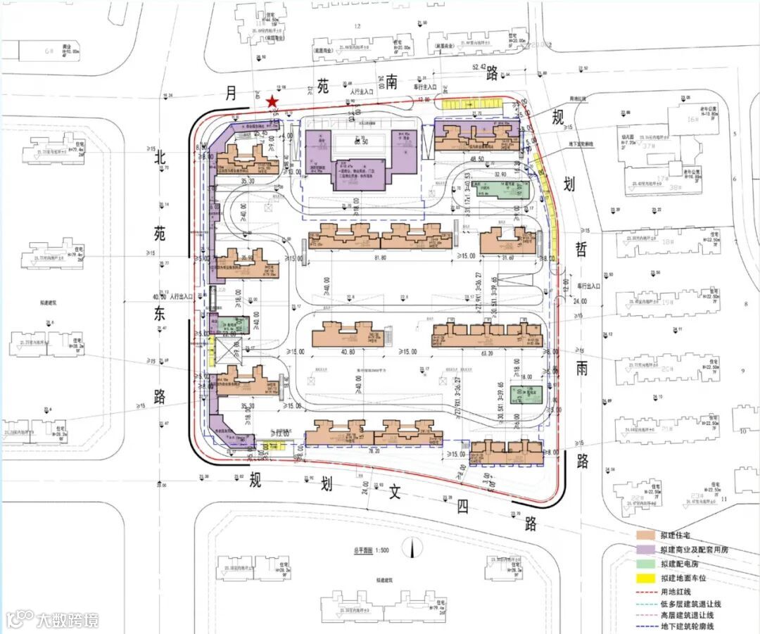
总平面示意图:

铁北G86地块在去年12月的土拍中,被南京崟晟企业管理有限公司,南昌市政公用房地产集团有限公司(融创&南昌市政)以总价31.5亿元竞得,成交楼面价为28163元/㎡。

项目效果图:



该项目距离地铁1号线仅2公里左右,地块旁就是规划6、9号线的丹霞路站;学区是南师附小铁北分校、科利华铁北分校,可以说是地铁、名校双环围绕,相信等到未来新房入市又将引起一番争抢。
铁北G86地块作为板块内时隔两年才出让的一幅纯宅地,周边新房市场早已紧缺,目前新房均价最高达4.3万/㎡,即便如此还是受到不少买房人争抢,而本次规划的10栋住宅无疑将解渴该区域的房荒困局。
项目周边在售楼盘仅星河国际一盘,于2019年8月首开,推出了1、3、5、7号楼,共计547套房源,销许均价42164元/㎡,户型建筑面积约115-180㎡,共吸引了1988组购房者报名,中签率27.5%,开盘当天去化九成。

(星河国际首开现场)
星河国际目前在售5号楼少量底跃,销许均价为40411-42810元/㎡,户型建筑面积为180㎡,装修房交付,拟交付时间为2021年6月30日前,后续加推计划待定。

(南京星河WORLD二期住宅星河国际效果图)
除星河国际外,还有纯新盘紫金悦峯等待入市,该项目前身为城北新玄武G17地块,于2018年5月30日进行出让,经过一轮竞价被北京电子城以34.2亿元拿下,楼面地价13730元/㎡。

项目共分为A、B、C、D、E五个地块,土地性质为商住混合用地、商办混合用地,预计今年面世。
二手房方面,铁北G86地块周边紧邻中海玄武公馆、恒大翡翠华庭等住宅小区。根据链家官网显示,中海玄武公馆目前二手房均价为45544元/㎡,但最高挂牌价已达到56930元/㎡。


中海玄武公馆最新成交的一套房源为户型面积约98.81㎡的三室两厅,成交总价为437万,成交单价为44227元/㎡。

而恒大翡翠华庭的二手房均价则为37306元/㎡,挂牌价最高为43526元/㎡。最新成交的一套房源为户型面积约114.78㎡的三室两厅,成交单价为37028元/㎡。



(数据来自链家)
铁北G86地块所在的红山新城规划面积7.13平方公里,是主城范围内人口最为密集,且唯一未完成城市现代化、可集中开发建设的居住区域。
规划建筑面积约170万平方米,属于产城融合型科技园区,将突出信息技术、高端商务产业,引入具备较强创新能力的总部经济和研发中心,综合办公、科研、商贸、人居等城市功能,致力于打造“产业融合的典范、科技创新的引领”。
该片区功能定位为“南京市重要的现代服务业基地”,将形成“一心、一轴、五片”的组团式布局结构。
而在3月18日举行的玄武区重点地块招商说明会上,红山新城又推出了4幅重磅地块:分别为科研设计4、5、9、11号地块,大壮观路以北B地块(6号地),大壮观路以北A地块(7号地),黑墨营100号南部地块(8号地)。总用地面积共计46.58公顷,其中涉宅用地面积近34公顷。

2019年10月,该批地块就已经现身于北京召开的南京玄武总部经济招商会。

(南京玄武总部经济招商会现场)
铁北红山新城未来将作为集高端商务、科技研发和文旅三大核心产业于一体的新中心,发挥交通、教育、商业、产业等各方面优势集聚资源、吸引人才。

(铁北红山新城鸟瞰图)
此次曝光的地块中,包含产业、商业和住宅,未来一批新地标将从中诞生,而中海玄武公馆、星河天赋、星河国际等楼盘的热抢已经说明了板块的市场认可度,未来随着地块出让、产业进驻、住宅建成将进一步提升南京玄武的影响力。




