
共有产权保障房销售价格都1.6万/㎡了!
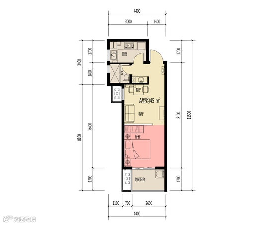
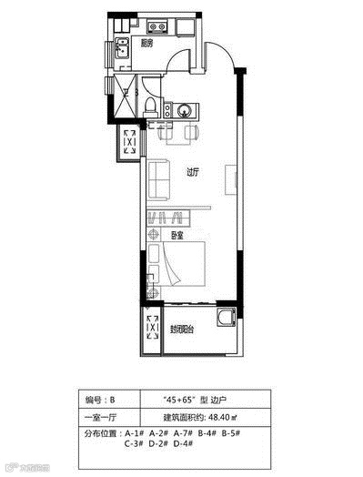
位于城北的丁家庄二期和马群的西花岗西保障房将于近期开始摇号选房,共1378套,户型建筑面积约为45㎡、55㎡、65㎡和85㎡4种,均为现房。

在南京房价大涨的市场环境下,保障房都已经要卖到1.6万/㎡,你买单吗?
项目将于3月30日,公布摇号名单,31号上午10点在南京公证处官网进行公证摇号。
具体网址如下:
● 南京公证处官网网址:
http://www.njnotary.cn/
● 南京市住房保障和房产局官网网址:
http://fcj.nanjing.gov.cn/
套型说明
城市低收入住房困难家庭1人户45㎡左右、2人户55㎡左右、3人及以上户65㎡左右。
城市中等偏下收入住房困难家庭、城镇居民无房家庭和新就业人员不受套型面积的限制。
但城市低收入住房困难家庭在首次购买的产权份额不低于70%时,可参照城市中等偏下收入住房困难家庭,选房时不受套型面积限制。
选房时间
4月15日-4月23日
本次通过审核、公示拟参加选房的家庭共1093户。疫情期间,为避免人员聚集,我们将采用分时段、分批次的方式安排申购人依次到场选房。

选房地点
为了保持空气流通,本次选房在露天场地进行,具体安排如下:
南京市栖霞区和悦街寅春路路口广场。
◆申购人如开车前往选房现场,导航地址是凤来北园。
◆申购人如乘坐公共交通,可选择公交车145路(尧佳路东-北苑西路网板路),在寅春路瑞平街站下;311路(瑞霞路华银路-长途东站)在燕新路和悦街站下;76路(尧化门-玉桥商业广场)在寅春路瑞福街站下。

注意事项
1、申购人联系方式以报名时填写的通讯地址和手机号码为准,选房前将通过电话、短信和挂号信的方式通知选房,请申购人务必保持电话畅通。
3、签到前请提前下载获取苏康码,及准备好手机漫游地查询结果;重点关注地区需来南京隔离满14天后,凭手机漫游地查询、苏康码方可参加选房。
4、请申购人勿早于通知时间15分钟到场。当天将逐一检查,该时段申购人由工作人员引导在马路一侧排队入场,每人间隔1.5米,非本时段申购人将引导至马路对面等候。
在疫情关注区的申购人,可由被委托人携手写委托书、身份证复印件,在现场视频连线申购人本人确认后入场。
根据《关于丁家庄二期及西花岗西项目共有产权保障性住房销售价格的通知》(宁发改服价字〔2019〕298号),丁家庄二期共有产权保障房销售价格为16840元/㎡。

户型图
丁家庄二期保障房在建造中融入绿色建筑的理念,采用配装式方式建造,并形成了一套系列化应用的装配式建筑体系。

值得一提的是,丁家庄二期保障房项目获得过有“地产界奥斯卡”之称的“广厦奖”、江苏省“建筑产业现代化示范目”、“2019年度江苏省绿色建筑创新项目一等奖”、“鲁班奖”等多个奖项。

丁家庄二期保障房犹如一座“绿色花园”,打破了对保障房“灰灰土土”的传统印象。


西花岗西保障房项目是南京市为安置栖霞区马群街道城中村危旧房改造、改善区域环境整治拆迁而配建的保障性住房,本次764套房源出售。

项目总平面图

户型图
部分内容来源:南京房产微政务、龙虎网等




