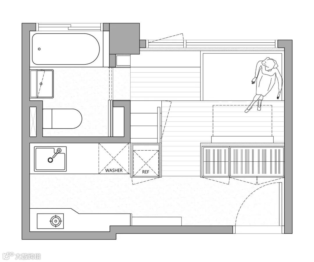
公寓前身为钢琴工作室,面积仅为17.6平方米,天花板高度为3.4米。横跨公寓的混凝土梁进一步限制了可用空间。

这个小公寓的房主忙碌的职业生涯需要她经常出差,偶尔在国外生活很短的时间。她很重视在较大的生活空间上短途通勤。尽管它的面积很小,但这个地方已被重新配置为包含实际比例的所有必需品。装饰方案也有助于小空间流动,具有平滑的木质效果家具和地板,清新的白色墙壁和存储设备,以及智能浅灰色调装饰。

紧凑休息室的沙发区也是简约的工作空间。一个匀称的桌面从对面的墙壁折叠出来,足够大,可以舒适地握住笔记本电脑,参考材料和强烈的黑咖啡。在壁柜内,在折叠式桌面下方,隐藏了几个鞋子存储空间。

由于夹层卧室没有站立高度,因此衣柜被整合到公寓的入口通道中。其他储物柜利用楼梯下方和浴室门上方的每一寸空间。

当折叠式办公桌/鞋柜关闭时,小型休息室显得更宽敞,通风。客人可以使用整洁的地板、阅读灯,通过沙发/沙发床提供工作照明。主要生活空间的狭窄通过门口通向入口通道,以及开放式双层楼梯的视野来对抗,并且在夹层平台上露出躲猫猫。

通往浴室门的一步会导致楼层的变化。该平台为木质沙发框架和相邻书柜的一部分进行整合,并且还在其盖子下面隐藏了存储空间。第二个书柜作为一个细长的白色塔单元爬上浴室门的一侧。

浴室门滑开,以免侵占地板空间。设计团队在项目期间改变了浴室和厨房的位置:“与整个空间的小面积相比,浴室相对较大,而厨房缺乏实用性 - 它甚至太小而不适合冰箱。”

设计团队还将入口通道和厨房相结合,创造了一个连续的空间。

新的厨房位置,现在有一个冰箱,洗衣机和两个墙壁安排的电炉的空间。


在小厨房厨房中实现了相对大量的厨房工作面,其还具有安装在工作台面高度上方和下方的充足存储架。

木制开放式厨房搁架温暖了浅灰色和白色厨房装饰的外观。

木制楼梯在夹层楼上爬上床。

现代简约的栏杆可以防止楼梯与房间的其他部分隔离。

陡峭的立管迅速爬上垂直空间。

桌面和抽屉位于混凝土梁下方,横跨公寓。一个小型室内植物和一个台钟令人愉快地装饰表面。

大号床垫在白色卧室的宽度上适合边缘到边缘。由于床边空间不足,现代壁灯提供阅读灯。

在团队将旧浴室位置与厨房交换后,其布置的规模略小。然而,新的灰色和白色浴室现在受益于自然阳光和更好的通风。一个高高的滑动镜面门穿过橱柜,使浴室看起来更加明亮,给人一种更多空间的错觉。

在镜面门的后面,有一个狭窄的凹槽,配有方便的毛巾和洗浴用品架子。当门位于罗纹玻璃浴室门前时,门也提供额外的隐私。

白砖效果瓷砖覆盖每面墙,并装饰浴缸匹配。


一层平面图

夹层平面图
公众号:
连江县饰海装修设计有限公司
联系电话:0591-26151800
地址:连江县万星城9号楼207
室内设计师
施工监理
业务客服
联系人:
13774569997 黄
19859139511 刘
地址:连江县万星城9号楼207

