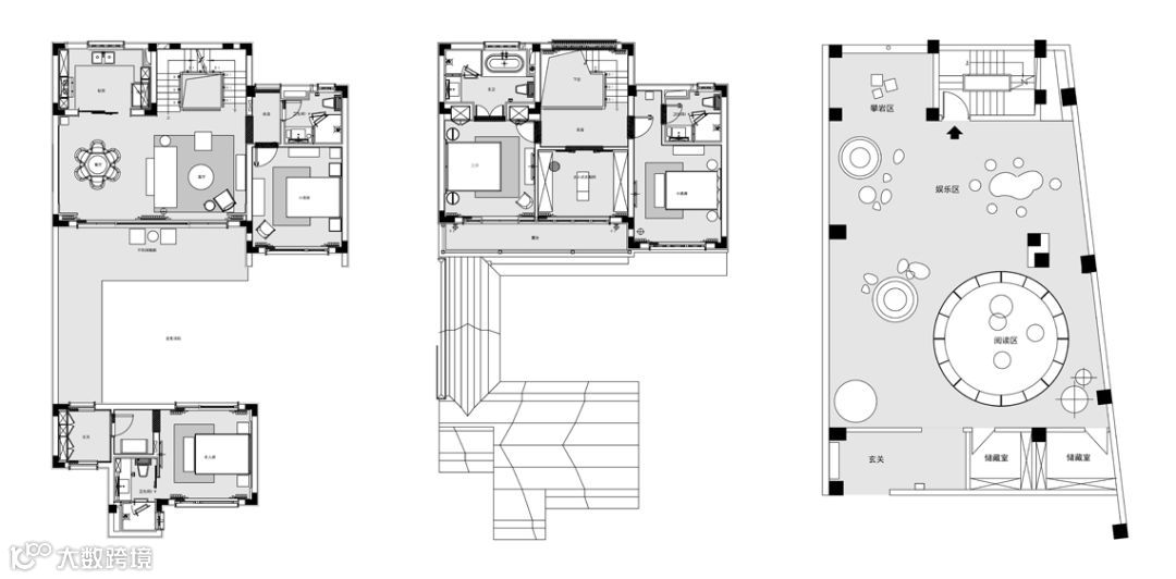
设计师对空间的处理,有安静的留白,有减法,也有游刃有余。


客厅的沙发和座椅构成一个围合区域,通过改变家居布局增进起居室内人与人的沟通。中式窗雕楞次分明地装点着窗户,暖黄色灯笼零星点缀着。窗景怡人,茶几上的绿枝将室外绿意引入室内。空间上室内外相呼应。传统中式的花器搭配上绿树,古朴、典雅、别有一番风味。墨色山水画为空间又添了几分平和宁静。

餐厅以圆为核心概念,充分体现"和"的意境。绿色抽象画和餐桌上的绿植在颜色和空间上延续绿意,也延续着一份自然与清新。六人座的圆形餐桌搭配圆形的餐布圆盘,金属餐巾扣点睛。筷架是山的模样,静静地托着筷子,沉稳、泰然、安和。

灰色丝缎窗帘与木色柜面为主卧奠定了素雅清新的基调。中式风格的床头柜,颇具风格。古朴温润的原木家具,不知不觉中抚平浮躁的心绪。淡淡的梅花香,听古老的吊灯讲述一段历史。大面积的落地窗设计,引入室外的景色与阳光,从视觉到心里,品味自然与生活之美。

男孩的房间则以大海的蓝色为主色,宁静辽远。床头几何抽象艺术作品,从颜色到形状激发着小朋友的想象力。置物架顶端引人注目的克莱因蓝KAWS手办,艺术与兴趣同行。
女孩房采用了粉白色调,整体明亮鲜艳。抽象装饰画肆意挥洒的笔触,一如孩童的天真烂漫。丝绒的材质凸显珍贵,粉色调恰到好处地平衡了厚重感。软糯的触感为小朋友提供了一份安全与柔软。精致的玩偶摆件在房间内错落地摆放着,守护可爱的少女心。
深色勾勒的中式窗框设计,以线条装点窗外景色。每一处院中景置于窗内即是一副浑然天成的风景画作。设计师从自然中取色,用不同层次的大地色系装点着老人房。将自然语言抽象运用到室内空间,听蝉鸣鸟叫,赏春红秋落。

深色勾勒的中式窗框设计,以线条装点窗外景色。每一处院中景置于窗内即是一副浑然天成的风景画作。设计师从自然中取色,用不同层次的大地色系装点着老人房。将自然语言抽象运用到室内空间,听蝉鸣鸟叫,赏春红秋落。

水滴状的吊灯贯穿着三层空间,装点了楼梯,也温暖了整个空间。

水滴吊灯,来自日本宗师级艺术家--荒川尚也的玻璃艺术品,纯碎而又充满想象力,共同诠释着独特的极简优雅美学。

云卷云舒,大隐于市,天使小镇。
公众号:
连江县饰海装修设计有限公司
联系电话:0591-26151800
地址:连江县万星城9号楼207
室内设计师
施工监理
业务客服
联系人:
13774569997 黄
19859139511 刘
地址:连江县万星城9号楼207

